Löggiltir fasteignasalar innan Félags fasteignasala:
Ástþór Reynir Guðmundsson
Vigdís R. S. Helgadóttir
Guðbjörg Helga Jóhannesdóttir
Gylfi Jens Gylfason
Sigrún Matthea Sigvaldadóttir
Sveinn Gíslason
Páll Guðmundsson
Þórarinn Arnar Sævarsson
Berglind Hólm Birgisdóttir
Þorsteinn Gíslason
Guðrún Lilja Tryggvadóttir
Brynjar Ingólfsson
Guðný Þorsteinsdóttir
Bjarni Blöndal
Þorsteinn Ólafs
Þórdís Björk Davíðsdóttir
Jóhann Kristinn Jóhannesson
Bjarný Björg Arnórsdóttir
Salvör Þóra Davíðsdóttir
Magga Sigríður Gísladóttir
Upplýsingar
Verðsaga
Byggt 2004
111,2 m²
4 herb.
1 baðherb.
3 svefnh.
Þvottahús
Sérinngangur
Lýsing
RE/MAX og Oddur fasteignasali kynna í einkasölu:
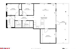
Falleg og mikið endurnýjuð 4ra herbergja íbúð í Asparholti 4 í Garðabæ. Íbúðin er 111,4 fm þar af geymsla í sameign 7,8 fm. Eignin skiptist í forstofu, opið eldhús, stofu/borðstofu, baðherbergi, þvottahús, þrjú góð svefnherbergi og skjólgóða verönd. Frábær staðsetning með leik- og grunnskóla í göngufæri ásamt íþróttasvæði og sundlaug.
Allar nánari upplýsingar veitir Oddur í síma 782-9282 eða á oddur@remax.is
Smelltu hér til að skoða eignina í 3-D
Smelltu hér til að fá söluyfirlit sent beint af vef remax.is
Nánari lýsing:
Forstofa: er rúmgóð með stórum fataskáp og flísum á gólfi.
Eldhús: er opið og bjart með parketi á gólfi.
Stofa / borðstofa: björt og rúmgóð sofa með útgengi á afgirta verönd. Parket á gólfi.
Hjónaherbergi: rúmgott með góðum fataskáp og parketi á gólfi.
Svefnherbergi I: parket á gólfi og fataskápur.
Svefnherbergi II: parketi á gólfi og fataskápur.
Baðherbergi: mikið endurnýjað, flísalagt í hólf og gólf, upphengt klósett, handklæðaofn og walk-in sturta.
Þvottahús: flísar á gólfi, innrétting fyrir þvottavél og þurrkara.
Í sameign er góð hjóla- og vagnageymsla. Frábær staðsetning með leik- og grunnskóla í göngufæri ásamt, íþróttasvæði og sundlaug.
Allar nánari upplýsingar veitir Oddur í síma 782-9282 eða á oddur@remax.is
Gjöld sem kaupandi þarf að standa straum af vegna kaupanna:
1. Stimpilgjald af kaupsamningi - 0,8% af heildarfasteignamati hjá einstaklingum. Sé um fyrstu kaup að ræða er stimpilgjald af kaupsamningi 0,4% af heildarfasteignamati.
2. Stimpilgjald af kaupsamningi - 1,6% af heildarfasteignamati hjá lögaðilum.
3. Þinglýsingargjald af kaupsamningi, veðskuldabréfi, veðleyfi og fl. 3.800 kr. af hverju skjali.
4. Lántökugjald lánastofnunar - samkvæmt gjaldskrá lánastofnunar.
5. Umsýslugjald til fasteignasölu 69.900 kr. m.vsk
Falleg og mikið endurnýjuð 4ra herbergja íbúð í Asparholti 4 í Garðabæ. Íbúðin er 111,4 fm þar af geymsla í sameign 7,8 fm. Eignin skiptist í forstofu, opið eldhús, stofu/borðstofu, baðherbergi, þvottahús, þrjú góð svefnherbergi og skjólgóða verönd. Frábær staðsetning með leik- og grunnskóla í göngufæri ásamt íþróttasvæði og sundlaug.
Allar nánari upplýsingar veitir Oddur í síma 782-9282 eða á oddur@remax.is
Smelltu hér til að skoða eignina í 3-D
Smelltu hér til að fá söluyfirlit sent beint af vef remax.is
Nánari lýsing:
Forstofa: er rúmgóð með stórum fataskáp og flísum á gólfi.
Eldhús: er opið og bjart með parketi á gólfi.
Stofa / borðstofa: björt og rúmgóð sofa með útgengi á afgirta verönd. Parket á gólfi.
Hjónaherbergi: rúmgott með góðum fataskáp og parketi á gólfi.
Svefnherbergi I: parket á gólfi og fataskápur.
Svefnherbergi II: parketi á gólfi og fataskápur.
Baðherbergi: mikið endurnýjað, flísalagt í hólf og gólf, upphengt klósett, handklæðaofn og walk-in sturta.
Þvottahús: flísar á gólfi, innrétting fyrir þvottavél og þurrkara.
Í sameign er góð hjóla- og vagnageymsla. Frábær staðsetning með leik- og grunnskóla í göngufæri ásamt, íþróttasvæði og sundlaug.
Allar nánari upplýsingar veitir Oddur í síma 782-9282 eða á oddur@remax.is
Gjöld sem kaupandi þarf að standa straum af vegna kaupanna:
1. Stimpilgjald af kaupsamningi - 0,8% af heildarfasteignamati hjá einstaklingum. Sé um fyrstu kaup að ræða er stimpilgjald af kaupsamningi 0,4% af heildarfasteignamati.
2. Stimpilgjald af kaupsamningi - 1,6% af heildarfasteignamati hjá lögaðilum.
3. Þinglýsingargjald af kaupsamningi, veðskuldabréfi, veðleyfi og fl. 3.800 kr. af hverju skjali.
4. Lántökugjald lánastofnunar - samkvæmt gjaldskrá lánastofnunar.
5. Umsýslugjald til fasteignasölu 69.900 kr. m.vsk
Ár
Fasteignamat
Kaupverð
Stærð
Fermetraverð
25. jan. 2024
68.450.000 kr.
83.000.000 kr.
111.2 m²
746.403 kr.
31. okt. 2022
48.300.000 kr.
79.000.000 kr.
111.2 m²
710.432 kr.
26. jún. 2012
20.450.000 kr.
25.000.000 kr.
111.2 m²
224.820 kr.
27. ágú. 2009
24.840.000 kr.
22.500.000 kr.
111.2 m²
202.338 kr.
2. nóv. 2007
22.420.000 kr.
27.200.000 kr.
111.2 m²
244.604 kr.
Byggt á upplýsingum úr Þjóðskrá Íslands frá 2006-2026