Upplýsingar
Verðsaga
Byggt 2001
84,5 m²
2 herb.
1 baðherb.
2 svefnh.
Þvottahús
Sérinngangur
Lýsing
Hraunhamar fasteignasala kynnir rúmgóða tveggja-þriggja herbergja íbúð á jarðhæð með sérinngangi á frábærum stað við Þrastarás í Áslandshverfinu í Hafnarfirði. Skóli og leikskóli í göngufæri.
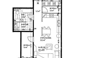
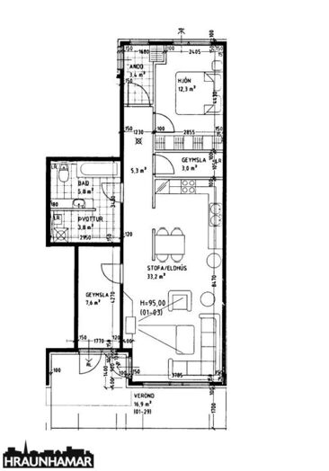
Íbúðin er skráð 84,5 fm skv. HMS.
Nánari lýsing eignarinnar.
Sérinngangur.
Flísalögð forstofa með fataskáp.
Hol.
Svefnherbergi með fataskápum, parket á gólfi.
Geymsla innan íbúðar með parket á gólfi.
Flísalagt baðherbergi, hvít innrétting, baðkar með sturtuaðstöðu í. Inn af baðherbergi er þvottahús. Tengi þar fyrir þvottavél og þurrkara, skolvaskur og skápur.
Eldhús með borðkróki. Eldhús er opið inn í rúmgóða stofu. Flísar á gólfi.
Útgengt frá stofu út á verönd.
Geymsla með sérinngang sem er hægt að nýta sem herbergi/skrifstofu.
Næg bílastæði, búið er að setja upp sameiginlega rafhleðslustöð. Róleg staðsetning í Áslandshverfinu í Hafnarfirði.
Nánari upplýsingar veitir Glódís Helgadóttir löggiltur fasteignasali í s. 659-0510 eða á netfangið glodis@hraunhamar.is
Skoðunarskylda:
Í lögum um fasteignakaup nr. 40/2002 er kveðið á um ríka skoðunarskyldu kaupenda á fasteignum. Hraunhamar fasteignasala vill benda væntanlegum kaupendum á að kynna sér vel ástand fasteigna fyrir kauptilboðsgerð og ef þurfa þykir að leita til sérfræðinga fyrir nánari ástandsskoðun.
Gjöld sem kaupandi þarf að standa straum af vegna kaupanna:
1. Stimpilgjald af kaupsamningi, fyrstu kaup (0,4%), almenn kaup (0,8%), lögaðilar (1,6%) af heildarfasteignamati.
2. Þinglýsingargjald af kaupsamningi, veðskuldabréfi, mögulegu veðleyfi o.fl. – kr. 3.800 kr. af hverju skjali.
3. Lántökugjald lánastofnunar er skv. verðskrá viðkomandi lánastofnunar.
4. Umsýslugjald til fasteignasölu skv. þjónustusamningi
Hraunhamar er elsta fasteignasala Hafnarfjarðar, stofnuð 1983.
Hraunhamar, í fararbroddi í rúm 40 ár. – Hraunhamar.is
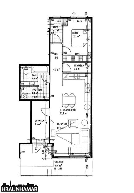
Íbúðin er skráð 84,5 fm skv. HMS.
Nánari lýsing eignarinnar.
Sérinngangur.
Flísalögð forstofa með fataskáp.
Hol.
Svefnherbergi með fataskápum, parket á gólfi.
Geymsla innan íbúðar með parket á gólfi.
Flísalagt baðherbergi, hvít innrétting, baðkar með sturtuaðstöðu í. Inn af baðherbergi er þvottahús. Tengi þar fyrir þvottavél og þurrkara, skolvaskur og skápur.
Eldhús með borðkróki. Eldhús er opið inn í rúmgóða stofu. Flísar á gólfi.
Útgengt frá stofu út á verönd.
Geymsla með sérinngang sem er hægt að nýta sem herbergi/skrifstofu.
Næg bílastæði, búið er að setja upp sameiginlega rafhleðslustöð. Róleg staðsetning í Áslandshverfinu í Hafnarfirði.
Nánari upplýsingar veitir Glódís Helgadóttir löggiltur fasteignasali í s. 659-0510 eða á netfangið glodis@hraunhamar.is
Skoðunarskylda:
Í lögum um fasteignakaup nr. 40/2002 er kveðið á um ríka skoðunarskyldu kaupenda á fasteignum. Hraunhamar fasteignasala vill benda væntanlegum kaupendum á að kynna sér vel ástand fasteigna fyrir kauptilboðsgerð og ef þurfa þykir að leita til sérfræðinga fyrir nánari ástandsskoðun.
Gjöld sem kaupandi þarf að standa straum af vegna kaupanna:
1. Stimpilgjald af kaupsamningi, fyrstu kaup (0,4%), almenn kaup (0,8%), lögaðilar (1,6%) af heildarfasteignamati.
2. Þinglýsingargjald af kaupsamningi, veðskuldabréfi, mögulegu veðleyfi o.fl. – kr. 3.800 kr. af hverju skjali.
3. Lántökugjald lánastofnunar er skv. verðskrá viðkomandi lánastofnunar.
4. Umsýslugjald til fasteignasölu skv. þjónustusamningi
Hraunhamar er elsta fasteignasala Hafnarfjarðar, stofnuð 1983.
Hraunhamar, í fararbroddi í rúm 40 ár. – Hraunhamar.is
Ár
Fasteignamat
Kaupverð
Stærð
Fermetraverð
9. des. 2022
41.850.000 kr.
41.850.000 kr.
84.5 m²
495.266 kr.
9. ágú. 2017
26.550.000 kr.
36.500.000 kr.
84.5 m²
431.953 kr.
4. nóv. 2011
16.000.000 kr.
21.500.000 kr.
84.5 m²
254.438 kr.
Byggt á upplýsingum úr Þjóðskrá Íslands frá 2006-2026