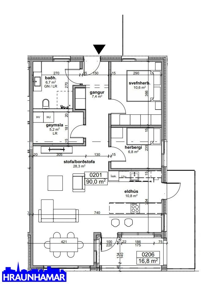
Stekkjarberg, 221 Hafnarfjörður