Upplýsingar
Verðsaga
Byggt 2005
115,1 m²
4 herb.
1 baðherb.
3 svefnh.
Þvottahús
Sérinngangur
Bílastæði
Lyfta
Lýsing
Fasteignasalan TORG kynnir :
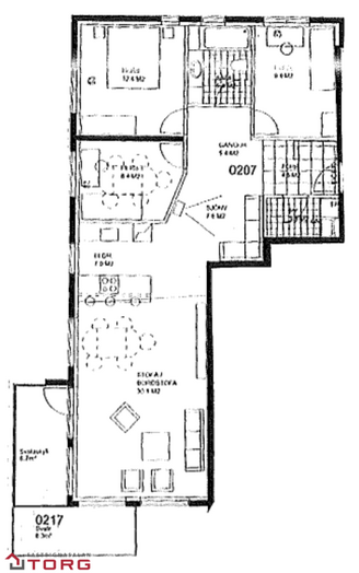
Mjög falleg og vel skipulögð 115,1fm 4 herbergja enda íbúð á annari hæð ásamt stæði í lokaðri bílageymslu í góðu lyftuhúsi. Eignin skiptist í : forstofu, sjónvarpshol, þvottahús, eldhús, borðstofu, stofu, þrjú herbergi, baðherbergi, geymslu og stæði. Nánari upplýsingar veitir Helgi Jónsson Löggiltur fasteignasali í síma : 780-2700 eða á Helgi@fstorg.is
NÁNARI LÝSING :
Komið er inn í forstofu með skápum. Sjónvarpshol með parketi á gólfi. Eldhús með fallegri viðar innréttingu, innbyggð tæki, flísar á milli skápa, parket á gólfi. Rúmgóð stofa og borðstofa með gluggum á tvo vegu, parket á gólfi, útgengt út á rúmgóðar yfirbyggðar suð/austur svalir með svalaopnun sem eykur notagildi til muna. Hjónaherbergi með skápum, parket á gólfi. Tvö góð herbergi með parketi á gólfi, skápar í öðru. Baðherbergi með baðkari með sturtuaðstöðu, innrétting við vask, upphengt salerni, flísar á gólfi og veggjum. Í kjallara er sér geymsla ásamt sameiginlegri hjóla- og vagnageymslu. Gott endastæði í bílageymslu fylgir íbúðinni. Sameign stigahússins er mjög snyrtileg, nýlega var skipt um teppi á sameigininni og hún máluð. Öll sameign hússins er til fyrirmyndar.
Björt og falleg eign á vinsælum stað í Norðlingaholtinu þar sem stutt er í leik- og grunnskóla og helstu þjónustu. Fallegar nátturúperlur eins og t.d. Heiðmörk, Elliðavatn og Rauðavatn eru í göngufæri.
Nánari upplýsingar veitir Helgi Jónsson Löggiltur fasteignasali í síma : 780-2700 eða Helgi@fstorg.is
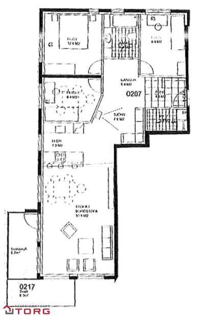
Mjög falleg og vel skipulögð 115,1fm 4 herbergja enda íbúð á annari hæð ásamt stæði í lokaðri bílageymslu í góðu lyftuhúsi. Eignin skiptist í : forstofu, sjónvarpshol, þvottahús, eldhús, borðstofu, stofu, þrjú herbergi, baðherbergi, geymslu og stæði. Nánari upplýsingar veitir Helgi Jónsson Löggiltur fasteignasali í síma : 780-2700 eða á Helgi@fstorg.is
NÁNARI LÝSING :
Komið er inn í forstofu með skápum. Sjónvarpshol með parketi á gólfi. Eldhús með fallegri viðar innréttingu, innbyggð tæki, flísar á milli skápa, parket á gólfi. Rúmgóð stofa og borðstofa með gluggum á tvo vegu, parket á gólfi, útgengt út á rúmgóðar yfirbyggðar suð/austur svalir með svalaopnun sem eykur notagildi til muna. Hjónaherbergi með skápum, parket á gólfi. Tvö góð herbergi með parketi á gólfi, skápar í öðru. Baðherbergi með baðkari með sturtuaðstöðu, innrétting við vask, upphengt salerni, flísar á gólfi og veggjum. Í kjallara er sér geymsla ásamt sameiginlegri hjóla- og vagnageymslu. Gott endastæði í bílageymslu fylgir íbúðinni. Sameign stigahússins er mjög snyrtileg, nýlega var skipt um teppi á sameigininni og hún máluð. Öll sameign hússins er til fyrirmyndar.
Björt og falleg eign á vinsælum stað í Norðlingaholtinu þar sem stutt er í leik- og grunnskóla og helstu þjónustu. Fallegar nátturúperlur eins og t.d. Heiðmörk, Elliðavatn og Rauðavatn eru í göngufæri.
Nánari upplýsingar veitir Helgi Jónsson Löggiltur fasteignasali í síma : 780-2700 eða Helgi@fstorg.is
Ár
Fasteignamat
Kaupverð
Stærð
Fermetraverð
23. maí. 2014
27.150.000 kr.
34.000.000 kr.
115.1 m²
295.395 kr.
20. sep. 2007
25.045.000 kr.
30.300.000 kr.
115.1 m²
263.249 kr.
Byggt á upplýsingum úr Þjóðskrá Íslands frá 2006-2026