Löggiltir fasteignasalar innan Félags fasteignasala:
Ástþór Reynir Guðmundsson
Vigdís R. S. Helgadóttir
Guðbjörg Helga Jóhannesdóttir
Gylfi Jens Gylfason
Sigrún Matthea Sigvaldadóttir
Sveinn Gíslason
Páll Guðmundsson
Þórarinn Arnar Sævarsson
Berglind Hólm Birgisdóttir
Þorsteinn Gíslason
Guðrún Lilja Tryggvadóttir
Brynjar Ingólfsson
Guðný Þorsteinsdóttir
Bjarni Blöndal
Þorsteinn Ólafs
Þórdís Björk Davíðsdóttir
Jóhann Kristinn Jóhannesson
Bjarný Björg Arnórsdóttir
Salvör Þóra Davíðsdóttir
Magga Sigríður Gísladóttir
Upplýsingar
Verðsaga
Byggt 1999
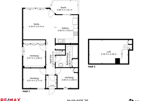
93 m²
4 herb.
1 baðherb.
3 svefnh.
Sérinngangur
Opið hús: 24. mars 2026
kl. 18:00
til 18:30
Opið hús: Hulduhlíð 26, 270 Mosfellsbær, Íbúð merkt: 02 02 01. Eignin verður sýnd þriðjudaginn 24. mars 2026 milli kl. 18:00 og kl. 18:30.
Lýsing
RE/MAX & BJARNÝ BJÖRG KYNNA: Fallega 4-5 herbergja eign að Hulduhlíð 26. Eignin er skráð 93,0 fm samkvæmt HMS með tveimur merktum bílastæðum. Íbúðin skiptist í stofu, borðstofu og eldhús í opnu alrými, baðherbergi, forstofu, gang og ca 15 fm rými á efri hæð sem er notað í dag sem barnaherbergi, þeir fermetrar eru ekki inn í skráðum 93 fermetrum eignarinnar sem sagt eru þá um 108 fm nýtanlegir fermetrar.
Eign sem vert er að skoða í sérlega fjölskylduvænu hverfi.
Allar nánari upplýsingar veitir:
Bjarný Björg Arnórsdóttir, lgf., í síma 694-2526 eða á bjarny@remax.is
** SMELLTU HÉR og skoðaðu EIGNINA í 3-D, þrívíðu umhverfi.**
Forstofa er með góðum fataskáp og harðparket á gólfi.
Eldhús er bjart með hvítri innréttingu, tvöfaldur ísskápur og uppþvottavél. Opið við borðstofu og stofu.
Borðstofa/stofa er rúmgóð með útgangi á suðvestur svalirnar.
Herbergin eru þrjú á hæðinni öll með hvítum fataskápum. Búið að setja stiga upp á loft undir súð og gera gott íveru herbergi þar, ca 15 fm gólfflötur sem er ekki skráð í fermetrum hjá FMR.
Baðherbergið hefur verið endurnýjað með ljósum flísum, sturtu í baðkar, handklæða ofni, hvítum handvaski í góðri innréttingu úr ljósum við.
Þvottavélarými stúkað af með ljósum viðarhurðum í stíl við baðinnréttinguna.
Sér geymsla er úti með inngangi við hlið íbúðarinngangs.
Geymsluloft sem liggur í kring um 15 fm íverurýmið. Hleri á gangi til að komast upp á það.
Bílastæði: Tvö sérmerkt bílastæði fyirir framan innkomu á lóðina fyrir þessa íbúð ásamt fleiri ómerktum stæðum.
Falleg sameiginleg lóð með trjágróðri, grasflöt og hellulagt að framan.
Framkvæmdir samkvæmt seljanda og eldri söluyfirlit:
Þak var yfirfarið og lagað á síðasta árið 2024.
Allar nánari upplýsingar veitir:
Bjarný Björg Arnórsdóttir, lgf., í síma 694-2526 eða á bjarny@remax.is
Um skoðunar- og aðgæsluskyldu kaupenda:
Í lögum um fasteignakaup nr. 40/2002 er kveðið á um ríka skoðunarskyldu kaupenda á fasteignum. Vill því RE/MAX skora á væntanlega kaupendur að kynna sér vel ástand fasteigna fyrir kauptilboðsgerð og leita til þar til bærra sérfræðinga um nánari skoðun ef með þarf.
Forsendur söluyfirlits: Söluyfirlit er samið af fasteignasala í samræmi við ákvæði laga nr. 70/2015. Þær upplýsingar sem fram koma í söluyfirliti þessu eru sóttar í opinberar skrár, til seljanda sjálfs og eftir atvikum til húsfélags. Seljandi veitir upplýsingar um eign í samræmi við upplýsingaskyldu laga um fasteignakaup nr. 40/2002. Fasteignasali sannreynir að þær upplýsingar séu réttar með sjónskoðun á eigninni. Fasteignasali getur ekki fullyrt um ástand og eiginleika þeirra hluta fasteigna sem ekki eru aðgengilegir og sjást ekki berum augum, t.d. lagnir, dren, skólp og þak.
__________________________
Ertu í söluhugleiðingum?
Vegna mikillar eftirspurnar vantar allar tegundir eigna á skrá. Hafið samband og við verðmetum þína eign þér að kostnaðarlausu
__________________________
Gjöld sem kaupandi þarf að standa straum af vegna kaupanna:
1. Stimpilgjald af kaupsamningi er af heildarfasteignamati - Einstaklingar 0,8% - Fyrstu kaupendur 0,4% - Lögaðilar 1,6%.
2. Þinglýsingargjald af kaupsamningi, veðskuldabréfi, veðleyfi og fl. 3.800 kr. af hverju skjali.
3. Lántökugjald lánastofnunar - almennt 45-75 þús.kr. Nánari upplýsingar á heimasíðu lánastofnana.
4. Umsýslugjald til fasteignasölu 69.900 kr. m.vsk
Eign sem vert er að skoða í sérlega fjölskylduvænu hverfi.
Allar nánari upplýsingar veitir:
Bjarný Björg Arnórsdóttir, lgf., í síma 694-2526 eða á bjarny@remax.is
** SMELLTU HÉR og skoðaðu EIGNINA í 3-D, þrívíðu umhverfi.**
Forstofa er með góðum fataskáp og harðparket á gólfi.
Eldhús er bjart með hvítri innréttingu, tvöfaldur ísskápur og uppþvottavél. Opið við borðstofu og stofu.
Borðstofa/stofa er rúmgóð með útgangi á suðvestur svalirnar.
Herbergin eru þrjú á hæðinni öll með hvítum fataskápum. Búið að setja stiga upp á loft undir súð og gera gott íveru herbergi þar, ca 15 fm gólfflötur sem er ekki skráð í fermetrum hjá FMR.
Baðherbergið hefur verið endurnýjað með ljósum flísum, sturtu í baðkar, handklæða ofni, hvítum handvaski í góðri innréttingu úr ljósum við.
Þvottavélarými stúkað af með ljósum viðarhurðum í stíl við baðinnréttinguna.
Sér geymsla er úti með inngangi við hlið íbúðarinngangs.
Geymsluloft sem liggur í kring um 15 fm íverurýmið. Hleri á gangi til að komast upp á það.
Bílastæði: Tvö sérmerkt bílastæði fyirir framan innkomu á lóðina fyrir þessa íbúð ásamt fleiri ómerktum stæðum.
Falleg sameiginleg lóð með trjágróðri, grasflöt og hellulagt að framan.
Framkvæmdir samkvæmt seljanda og eldri söluyfirlit:
Þak var yfirfarið og lagað á síðasta árið 2024.
Allar nánari upplýsingar veitir:
Bjarný Björg Arnórsdóttir, lgf., í síma 694-2526 eða á bjarny@remax.is
Um skoðunar- og aðgæsluskyldu kaupenda:
Í lögum um fasteignakaup nr. 40/2002 er kveðið á um ríka skoðunarskyldu kaupenda á fasteignum. Vill því RE/MAX skora á væntanlega kaupendur að kynna sér vel ástand fasteigna fyrir kauptilboðsgerð og leita til þar til bærra sérfræðinga um nánari skoðun ef með þarf.
Forsendur söluyfirlits: Söluyfirlit er samið af fasteignasala í samræmi við ákvæði laga nr. 70/2015. Þær upplýsingar sem fram koma í söluyfirliti þessu eru sóttar í opinberar skrár, til seljanda sjálfs og eftir atvikum til húsfélags. Seljandi veitir upplýsingar um eign í samræmi við upplýsingaskyldu laga um fasteignakaup nr. 40/2002. Fasteignasali sannreynir að þær upplýsingar séu réttar með sjónskoðun á eigninni. Fasteignasali getur ekki fullyrt um ástand og eiginleika þeirra hluta fasteigna sem ekki eru aðgengilegir og sjást ekki berum augum, t.d. lagnir, dren, skólp og þak.
__________________________
Ertu í söluhugleiðingum?
Vegna mikillar eftirspurnar vantar allar tegundir eigna á skrá. Hafið samband og við verðmetum þína eign þér að kostnaðarlausu
__________________________
Gjöld sem kaupandi þarf að standa straum af vegna kaupanna:
1. Stimpilgjald af kaupsamningi er af heildarfasteignamati - Einstaklingar 0,8% - Fyrstu kaupendur 0,4% - Lögaðilar 1,6%.
2. Þinglýsingargjald af kaupsamningi, veðskuldabréfi, veðleyfi og fl. 3.800 kr. af hverju skjali.
3. Lántökugjald lánastofnunar - almennt 45-75 þús.kr. Nánari upplýsingar á heimasíðu lánastofnana.
4. Umsýslugjald til fasteignasölu 69.900 kr. m.vsk
Ár
Fasteignamat
Kaupverð
Stærð
Fermetraverð
14. maí. 2025
68.350.000 kr.
85.000.000 kr.
20201 m²
4.208 kr.
25. apr. 2018
35.650.000 kr.
43.650.000 kr.
93 m²
469.355 kr.
5. júl. 2007
18.800.000 kr.
23.900.000 kr.
93 m²
256.989 kr.
Byggt á upplýsingum úr Þjóðskrá Íslands frá 2006-2026