Löggiltir fasteignasalar innan Félags fasteignasala:
Sigurður Maack Gunnarsson
Svanþór Einarsson
Theodór Emil Karlsson
Steingrímur Benediktsson
Vista
fjölbýlishús

Tröllateigur 51

270 Mosfellsbær

84.900.000 kr.

773.929 þ.kr./m2
Fasteignanúmer

F2272980

Fasteignamat

75.150.000 kr.

Brunabótamat

57.500.000 kr.

Áhvílandi

0 kr.

Arion banki – Reikna lán
Upplýsingar
Verðsaga
svg
Byggt 2004
svg
109,7 m²
svg
4 herb.
svg
1 baðherb.
svg
3 svefnh.
svg
Þvottahús
svg
Útsýni
svg
Sérinngangur

Lýsing

** Opið hús fellur niður - Eignin er seld með fyrirvara **



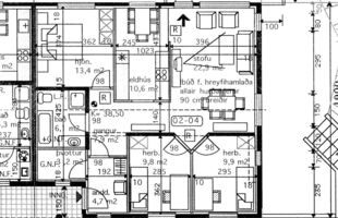
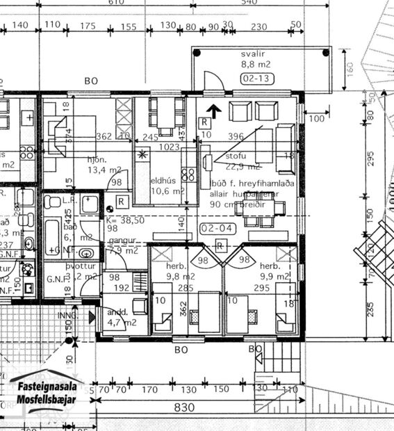
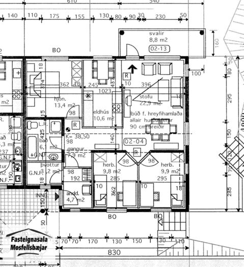
Fasteignasala Mosfellsbæjar kynnir:  Falleg og vel skipulögð 109,7 m2, 4ra herbergja endaíbúð með sérinngangi á jarðhæð við Tröllateig 51 í Mosfellsbæ. Eignin er skráð 109,7 m2, þar af íbúð 101,7 m2 og geymsla 8 m2. Eignin skiptist í þrjú svefnherbergi, baðherbergi, þvottahús, forstofu, eldhús, stofu og borðstofu. Sérgeymsla í sameign. Svalir í norðurátt með fallegu útsýni. Góð staðsetning miðsvæðis í Mosfellsbæ. Stutt í skóla, íþróttasvæði, verslun, heilsugæslu og alla helstu þjónustu.

Skv. upplýsingum frá eiganda og húsfélaginu þá má setja upp timburverönd fyrir framan hús líkt og hefur verið gert fyrir framan íbúð 201. Eignin hefur fengið talsverðar endurbætur en nýlega var eldhús endurnýjað, lagt nýtt parket, nýir fataskápar og nýjar innihurðir. Seljandi mun klára að setja upp gólflista, setja upp hurð á þvottahús og laga hurðargat í forstofu fyrir afhendingu.

Smelltu hér til að fá söluyfirlit sent strax.

Nánari lýsing:

Forstofa er með fataskápum og parketi á gólfi. 
Eldhús er með fallegri hvítri innréttingu og parketi á gólfi. Í innréttingu er ofn, helluborð og vaskur. Gert er ráð fyrir ísskáp og uppþvottavél í innréttingu.
Stofa/borðstofa er rúmgóð og með parketi á gólfi. Úr stofu er útgengt á svalir í norðurátt.
Svefnherbergi nr. 1 (Hjónaherbergi) er með fataskápum og parketi á gólfi.
Svefnherbergi nr. 2 er með fataskápum og parketi á gólfi.
Svefnherbergi nr. 3 er með fataskápum og parketi á gólfi.
Baðherbergi er flísalagt og með ljósri innréttingu, vegghengdu salerni, baðkari, sturtuklefa og handklæðaofni. 
Þvottahús er með flísum á gólfi. Tengi er fyrir þvottavél og þurrkara
Sérgeymsla er í sameign. Skráð 8,0 m2.
Íbúðinni fylgir hlutdeild að sameiginlegri hjóla- og vagnageymslu.

Verð kr. 84.900.000-.



Um skoðunar- og aðgæsluskyldu:
Í lögum um fasteignakaup nr. 40/2002 er kveðið á um ríka skoðunarskyldu kaupenda á fasteignum. Fasteignasala Mosfellsbæjar skorar því á væntanlega kaupendur að kynna sér vel ástand fasteigna fyrir kauptilboðsgerð og leita til þar til bærra sérfræðinga um nánari skoðun ef með þarf.

Forsendur söluyfirlits:
Söluyfirlit er samið af fasteignasala í samræmi við ákvæði laga nr. 70/2015. Þær upplýsingar sem fram koma í söluyfirliti þessu eru sóttar í opinberar skrár, til seljanda sjálfs og eftir atvikum til húsfélags. Seljandi veitir upplýsingar um eign í samræmi við upplýsingaskyldu laga um fasteignakaup nr. 40/2002. Fasteignasali sannreynir að þær upplýsingar séu réttar með sjónskoðun á eigninni.
Fasteignasali getur ekki fullyrt um ástand og eiginleika þeirra hluta fasteigna sem ekki eru aðgengilegir og sjást ekki berum augum, t.d. lagnir, dren, skólp og þak.

Gjöld sem kaupandi þarf að greiða vegna kaupa:
1. Stimpilgjald af kaupsamningi sem er hlutfall af fasteignamati. Stimpilgjald er 0,8% fyrir einstaklinga (0,4% við fyrstu kaup) og 1,6% fyrir lögaðila.
2. Þinglýsingargjald af kaupsamningi, veðskuldabréfum, veðleyfum o.fl. Þinglýsingargjald er kr. 3.800,- fyrir hvert skjal.
3. Lántökugjald lánastofnunar - er skv. gjaldskrá viðkomandi lánastofnunar.
4. Umsýslugjald til fasteignasölu skv. kauptilboði.
5. Þegar um nýbyggingu er að ræða greiðir kaupandi skipulagsgjald, 0,3% af endanlegu brunabótamáti, þegar það er lagt á af viðkomandi sveitarfélagi.

img
Svanþór Einarsson
Lögg.fasteignasali innan félags fasteignasala
Fasteignasala Mosfellsbæjar
Þverholti 2, 270 Mosfellsbæ
Fasteignasala Mosfellsbæjar

Fasteignasala Mosfellsbæjar

Þverholti 2, 270 Mosfellsbæ
phone
img

Svanþór Einarsson

Þverholti 2, 270 Mosfellsbæ
Ár
Fasteignamat
Kaupverð
Stærð
Fermetraverð
30. sep. 2014
24.100.000 kr.
29.500.000 kr.
109.7 m²
268.915 kr.
Byggt á upplýsingum úr Þjóðskrá Íslands frá 2006-2026
Fasteignasala Mosfellsbæjar

Fasteignasala Mosfellsbæjar

Þverholti 2, 270 Mosfellsbæ
phone

Svanþór Einarsson

Þverholti 2, 270 Mosfellsbæ