Löggiltir fasteignasalar innan Félags fasteignasala:
Björn Guðmundsson
Berglind Jónasardóttir
Greta Huld Mellado
Vista
fjölbýlishús

Þórunnarstræti 87 - 101

600 Akureyri

68.900.000 kr.

505.874 þ.kr./m2
Fasteignanúmer

F2151913

Fasteignamat

61.800.000 kr.

Brunabótamat

64.200.000 kr.

Áhvílandi

0 kr.

Arion banki – Reikna lán
Upplýsingar
svg
Byggt 1966
svg
136,2 m²
svg
5 herb.
svg
1 baðherb.
svg
4 svefnh.
svg
Þvottahús
svg
Sérinngangur
svg
Laus strax

Lýsing

    

Fasteignasalan Byggð 464-9955 - Einkasala

Þórunnarstræti 87 - 101

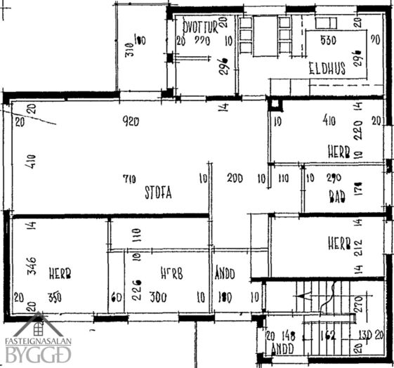
Mjög vel skipulögð 5 herbergja neðri hæð í þriggja íbúða húsi, beint á móti Menntaskólanum á Akureyri. Eignin er mikið upprunaleg en snyrtileg og er samtals 136,2 fm., þar af er sér geymsla í kjallara 7,2 fm. 


Eignin skiptist í forstofu, stofu, eldhús, þvottahús, 4 svefnherbergi og baðherbergi.  

Forstofa er með flísar á gólfi og opnu fatahengi. Þaðan er gengið um hurð niður í kjallara í sér geymslu. 
Stofa er afar björt og rúmgóð með parket á gólfi og gluggum til tveggja átta. 
Eldhús er með veglegri upprunalegri innréttingu og á vegg gegnt innréttingu er frístandandi ísskápur og bakaraofn í vinnuhæð. Við enda innréttingar er borðkrókur. 
Þvottahús er inn af eldhúsi, þar er stæði fyrir þvottavél, innrétting með vask og efri skápar. Úr þvottahúsi er útgengt út á svalir sem snúa til suðvesturs. 
Svefnherbergi eru fjögur, öll með parket á gólfi og fataskápum. 
Baðherbergi er upprunalegt að mestu, þar er baðkar með sturtutækjum vaskur, salerni og gluggi með opnanlegu fagi.

Annað:
-Í kjallara er góð geymsla með glugga og opnanlegu fagi. Einnig er þar lagnarými og bakinngangur
-Bílastæði við eignina og hefur hver íbúð aðgang að einu stæði
-Stéttar eru steyptar og upphitaðar með lokuðu kerfi
-Farið í þak fyrir um 10 árum
-Frábært staðsetning, miðsvæðis á Akureyri í göngufæri við framhaldsskóla, Sundlaug Akureyrar og miðbæinn
-Eignin getur verið laus til afhendingar fljótlega eða eftir samkomulagi
-Samkvæmt teikningum er hurð úr stofu inn í þvottahús en henni hefur verið lokað. Lítið mál að breyta til baka í fyrra horf


Gjöld sem kaupandi þarf að standa straum af vegna kaupanna:  
1. Stimpilgjald af kaupsamningi - 0.8% af heildarfasteignamati / 1.6% fyrir lögaðila.    (0.4% við fyrstu kaup einstaklinga m.v. að lágmarki 50% eignarhlut).
2. Þinglýsingagjald af kaupsamningi, veðskuldabréfi, veðleyfi o.fl.- kr. 2.700 af hverju skjali.
3. Lántökugjald lánastofnunar -almennt 0,5-1,0% af höfuðstól skuldabréfs (nánari upplýsingar m.a. á heimasíðum lánastofnanna).
4. Umsýsluþóknun til fasteignasölu, sbr.kauptilboð. 


Frekari upplýsingar:
olafur@byggd.is
greta@byggd.is
bjorn@byggd.is

Skipagötu 16 á 2. hæð.
S:464 9955 


 

Byggð fasteignasala

Byggð fasteignasala

Skipagata 16, 600 Akureyri
phone
Byggð fasteignasala

Byggð fasteignasala

Skipagata 16, 600 Akureyri
phone