Upplýsingar
Verðsaga
Byggt 1964
65 m²
3 herb.
1 baðherb.
2 svefnh.
Þvottahús
Sérinngangur
Lýsing
*BÓKIÐ SKOÐUN - Ævar Jóhanns Lgf. s: 861-8827 / aj@palssonfasteignasala.is*
-Jarðhæð með sérinngangi
-Timburpallur á suðurhlið
-Eldhús og baðherbergi uppgerð
-Raflagnir og neysluvatnslagnir endurnýjaðar
Mjög vel skipulögð þriggja herbergja íbúð á jarðhæð í norðurbæ Hafnarfjarðar.
Íbúðin er 65,0 fm samkvæmt HMS og nýtist hver einasti fermeter til hins ítrasta.
Sérafnotareitur í sameiginlegum skjólgóðum garði þar sem lögð hefur verið timburverönd.
Falleg aðkoma er að húsinu og sérgeymsla er undir tröppum.
Árið 2017 var drenað, neysluvatnslagnir endurnýjaðar ásamt því nýtt rafmagn var dregið í íbúðina.
Einnig hefur nýlega verið skipt um allar ofnalagnir í íbúðinni.
Vinsæl staðsetning þar sem stutt er í alla helstu þjónustu og gersemar Hafnarfjarðar.
Hellisgerði og Víðistaðatún í göngufæri.
Snyrtileg eign sem væri tilvalin fyrir fyrstu kaupendur.
Nánari upplýsingar veitir:
Ævar Jóhanns Lgf. s: 861-8827 eða aj@palssonfasteignasala.is
Nánari lýsing íbúðar:
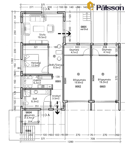
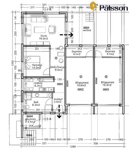
Gengið er inn í flísalagt anddyri með fatahengi bak við hurð.
Á vinstri hönd er baðherbergi sem er flísalagt hátt og lágt. Útbúið nýlegum sturtuklefa, innfelldum skápum og hillum. Vaskinnrétting er með góðu skúffuplássi. Salerni er upphengt og tengi er fyrir bæði þvottavél og þurrkara.
Inn af anddyri er gangur með góðu veggplássi.
Eldhús er flísalagt á gólfi og með nýlegri innréttingu.
Hjónaherbergi er parketlagt með góðu skápaplássi.
Aukaherbergi sem var útbúið inn af stofu er einnig parketlagt.
Stofan er parketlögð með útgengi út á nýlega lagðan pall.
Sérgeymsla undir tröppum.
www.eignavakt.is
www.verdmat.is
Góð ráð fyrir kaupendur / seljendur
Gjöld sem kaupandi þarf að standa straum af vegna kaupanna:
1. Stimpilgjald af kaupsamningi - 0.8% af heildarfasteignamati / 1.6% fyrir lögaðila. (0.4% við fyrstu kaup einstaklinga).
2. Þinglýsingagjald af kaupsamningi, veðskuldabréfi, veðleyfi o.fl.- kr. 3.800 af hverju skjali.
3. Lántökugjald lánastofnunar - samanber gjaldskrá viðkomandi lánastofnunar.
4. Umsýsluþóknun til fasteignasölu, sbr.kauptilboð.
Um skoðunarskyldu:
Í lögum um fasteignakaup nr. 40/2002 er kveðið á um ríka skoðunarskyldu kaupenda á fasteignum. Pálsson fasteignasala bendir væntanlegum kaupendum á að kynna sér vel ástand fasteigna við skoðun og fyrir tilboðsgerð og ef þurfa þykir að leita til sérfræðinga um nánari ástandsskoðun.
-Jarðhæð með sérinngangi
-Timburpallur á suðurhlið
-Eldhús og baðherbergi uppgerð
-Raflagnir og neysluvatnslagnir endurnýjaðar
Mjög vel skipulögð þriggja herbergja íbúð á jarðhæð í norðurbæ Hafnarfjarðar.
Íbúðin er 65,0 fm samkvæmt HMS og nýtist hver einasti fermeter til hins ítrasta.
Sérafnotareitur í sameiginlegum skjólgóðum garði þar sem lögð hefur verið timburverönd.
Falleg aðkoma er að húsinu og sérgeymsla er undir tröppum.
Árið 2017 var drenað, neysluvatnslagnir endurnýjaðar ásamt því nýtt rafmagn var dregið í íbúðina.
Einnig hefur nýlega verið skipt um allar ofnalagnir í íbúðinni.
Vinsæl staðsetning þar sem stutt er í alla helstu þjónustu og gersemar Hafnarfjarðar.
Hellisgerði og Víðistaðatún í göngufæri.
Snyrtileg eign sem væri tilvalin fyrir fyrstu kaupendur.
Nánari upplýsingar veitir:
Ævar Jóhanns Lgf. s: 861-8827 eða aj@palssonfasteignasala.is
Nánari lýsing íbúðar:
Gengið er inn í flísalagt anddyri með fatahengi bak við hurð.
Á vinstri hönd er baðherbergi sem er flísalagt hátt og lágt. Útbúið nýlegum sturtuklefa, innfelldum skápum og hillum. Vaskinnrétting er með góðu skúffuplássi. Salerni er upphengt og tengi er fyrir bæði þvottavél og þurrkara.
Inn af anddyri er gangur með góðu veggplássi.
Eldhús er flísalagt á gólfi og með nýlegri innréttingu.
Hjónaherbergi er parketlagt með góðu skápaplássi.
Aukaherbergi sem var útbúið inn af stofu er einnig parketlagt.
Stofan er parketlögð með útgengi út á nýlega lagðan pall.
Sérgeymsla undir tröppum.
www.eignavakt.is
www.verdmat.is
Góð ráð fyrir kaupendur / seljendur
Gjöld sem kaupandi þarf að standa straum af vegna kaupanna:
1. Stimpilgjald af kaupsamningi - 0.8% af heildarfasteignamati / 1.6% fyrir lögaðila. (0.4% við fyrstu kaup einstaklinga).
2. Þinglýsingagjald af kaupsamningi, veðskuldabréfi, veðleyfi o.fl.- kr. 3.800 af hverju skjali.
3. Lántökugjald lánastofnunar - samanber gjaldskrá viðkomandi lánastofnunar.
4. Umsýsluþóknun til fasteignasölu, sbr.kauptilboð.
Um skoðunarskyldu:
Í lögum um fasteignakaup nr. 40/2002 er kveðið á um ríka skoðunarskyldu kaupenda á fasteignum. Pálsson fasteignasala bendir væntanlegum kaupendum á að kynna sér vel ástand fasteigna við skoðun og fyrir tilboðsgerð og ef þurfa þykir að leita til sérfræðinga um nánari ástandsskoðun.
Ár
Fasteignamat
Kaupverð
Stærð
Fermetraverð
10. sep. 2019
24.800.000 kr.
32.500.000 kr.
65 m²
500.000 kr.
28. des. 2017
22.250.000 kr.
31.000.000 kr.
65 m²
476.923 kr.
30. des. 2015
19.700.000 kr.
15.000.000 kr.
71.8 m²
208.914 kr.
Byggt á upplýsingum úr Þjóðskrá Íslands frá 2006-2026