Upplýsingar
Verðsaga
Byggt 2024
155 m²
4 herb.
1 baðherb.
3 svefnh.
Þvottahús
Bílskúr
Sérinngangur
Lýsing
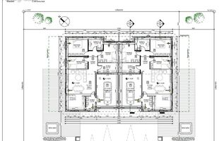
Hafsteinn Þorvaldsson löggiltur fasteignasali, ásamt HÚS fasteignasölu kynna í einkasölu Goðavík 4 sem er nýtt 4ra herbergja parhús í byggingu í nýju íbúðahverfi á Selfossi. Húsið er á einni hæð, klætt að utan með báruklæðningu í bland við sléttplötuklæðningu og bárujárn er á þaki. Bílaplan verður hellulagt með snjóbræðslukerfi. Íbúðin er er 155 fm að stærð, (íbúð 123,1 fm, bílskúr og geymsla 31,9 fm samtals 155,0 fm). Hönnun hússins tekur m.a. mið af því að viðhald sé í lágmarki og innra skipulag sett upp með það að markmiði að nýta sem best stærð íbúðar. Húsið er bæði hægt að kaupa tilbúið til innréttinga eða fullbúið.
Nánari lýsing m.v fullbúið:
Húsið telur þrjú svefnherbergi öll með fataskápum, forstofu með fataskáp, stofu- borðstofu og eldhúsi í opnu rými, gangur, baðherbergi og þvottahús. Innangengt er í bílskúr úr forstofu.
Eldhúsinnrétting frá IKEA með viðarmunstri og vönduð heimilistæki. Ísskápur og uppþvottavél eru innbyggð í innréttingu. Innihurðir eru yfirfelldar, hvítlakkaðar án þröskulda. Hljóðdúkur í lofti. Bílskúrsgólf er Epoxi.
Plejd ljósastýring er í húsinu. Gluggar eru vandaðir, ál/tré gluggar. Hitalagnir eru steyptar í gólfplötu og húsið því kynt með svæðaskiptum digital-gólfhita. Næturlýsing undir þakkanti. Lóð er þökulögð og bílaplan verður hellulagt. Gert er ráð fyrir heitum potti í garði og ídráttarrör fyrir lagnir til staðar.
Virkilega spennandi eign á fínum stað. Sorpskýli er staðsett á bílaplani.
Sjón er sögu ríkari - get sýnt samdægurs. Nánari skilalýsing hjá fasteignasala.
Nánari upplýsingar veita Hafsteinn Þorvaldsson viðskiptafræðingur/löggiltur fasteigna,- og skipasali s. 891-8891, hafsteinn@husfasteign.is
Okkar fagmennska eru þínir hagsmunir
Gjöld sem kaupandi þarf að standa straum að vegna kaupanna.
1. Stimpilgjöld af kaupsamningi - 0,8 % af heildarfasteignamati. (0,4% fyrstu kaup, 1,6% lögaðilar)
2. Þinglýsingargjald af kaupsamningi, veðskuldabréfi, mögulegu veðleyfi o.fl. kr. 2700 af hverju skjali.
3. Lántökugjald lánastofnunnar, almennt 0.5 - 1.5 % af höfuðstól skuldabréfs, Nánari upplýsingar t.d. á heimasíðum lánastofnanna.
4. Umsýslugjald til fasteignasölu sbr. Kauptilboð
Nánari lýsing m.v fullbúið:
Húsið telur þrjú svefnherbergi öll með fataskápum, forstofu með fataskáp, stofu- borðstofu og eldhúsi í opnu rými, gangur, baðherbergi og þvottahús. Innangengt er í bílskúr úr forstofu.
Eldhúsinnrétting frá IKEA með viðarmunstri og vönduð heimilistæki. Ísskápur og uppþvottavél eru innbyggð í innréttingu. Innihurðir eru yfirfelldar, hvítlakkaðar án þröskulda. Hljóðdúkur í lofti. Bílskúrsgólf er Epoxi.
Plejd ljósastýring er í húsinu. Gluggar eru vandaðir, ál/tré gluggar. Hitalagnir eru steyptar í gólfplötu og húsið því kynt með svæðaskiptum digital-gólfhita. Næturlýsing undir þakkanti. Lóð er þökulögð og bílaplan verður hellulagt. Gert er ráð fyrir heitum potti í garði og ídráttarrör fyrir lagnir til staðar.
Virkilega spennandi eign á fínum stað. Sorpskýli er staðsett á bílaplani.
Sjón er sögu ríkari - get sýnt samdægurs. Nánari skilalýsing hjá fasteignasala.
Nánari upplýsingar veita Hafsteinn Þorvaldsson viðskiptafræðingur/löggiltur fasteigna,- og skipasali s. 891-8891, hafsteinn@husfasteign.is
Okkar fagmennska eru þínir hagsmunir
Gjöld sem kaupandi þarf að standa straum að vegna kaupanna.
1. Stimpilgjöld af kaupsamningi - 0,8 % af heildarfasteignamati. (0,4% fyrstu kaup, 1,6% lögaðilar)
2. Þinglýsingargjald af kaupsamningi, veðskuldabréfi, mögulegu veðleyfi o.fl. kr. 2700 af hverju skjali.
3. Lántökugjald lánastofnunnar, almennt 0.5 - 1.5 % af höfuðstól skuldabréfs, Nánari upplýsingar t.d. á heimasíðum lánastofnanna.
4. Umsýslugjald til fasteignasölu sbr. Kauptilboð
Ár
Fasteignamat
Kaupverð
Stærð
Fermetraverð
1. apr. 2025
52.750.000 kr.
56.900.000 kr.
10101 m²
5.633 kr.
Byggt á upplýsingum úr Þjóðskrá Íslands frá 2006-2026