Upplýsingar
Verðsaga
Byggt 1934
133,2 m²
5 herb.
2 baðherb.
3 svefnh.
Þvottahús
Sameiginl. inngangur
Lýsing
Betri Stofan fasteignasala Borgartúni 30 kynnir nýtt í sölu: Mjög mikið endurnýjuð og nýstandsett 3ja herbergja íbúð á 1. hæð ásamt auka íbúð / tómstundarými á jarðhæð með sér inngangi og góðum bílastæðum á baklóð við Eiríksgötu 19, 101 Reykjavík.
Sjá myndband af Eiríksgötu 19
Til sölu er einnig allt húsið við Eiríksgötu 19, tvær íbúðir á 1. og 2. hæð og innréttaðar tvær einingar á jarðhæð með sér inngangi. Möguleiki á góðum leigutekjum.
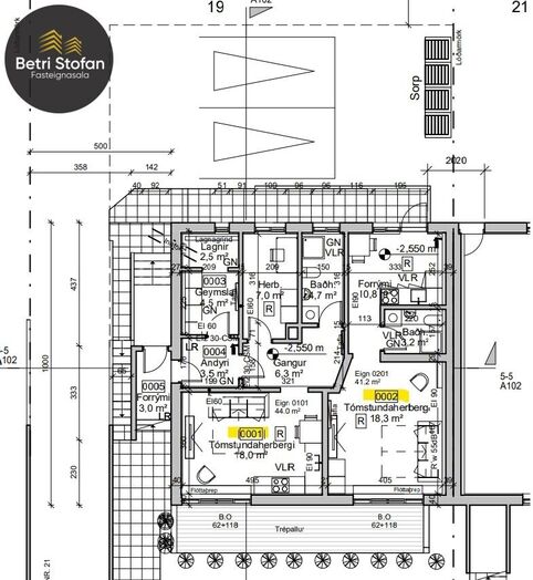
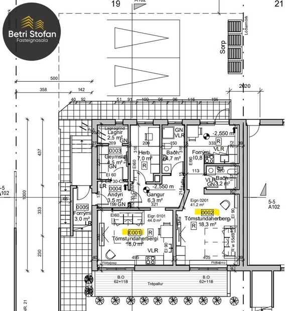
Skráð stærð íbúðarinnar á 1. hæð er 89,2 fm skv. skráningu hjá HMS, að auki fylgir íbúðinni um 44 fm ný standsett studió íbúð (skráð tómstundarými) á jarðhæð. Góð lofthæð og sér inngangur og gólfhiti. Samkvæmt núverandi skipulagi telja þessar tvær íbúðir um 133,2 fm. Á baklóð eru bílastæði sem getur rúmað nokkra bíla.
Endurbætur: Sigrún Einarsdóttir Hönnuður sá um innanhúshönnun og efnisval. Það sem hefur verið endurnýjað má nefna:
Pípulögn, ofnar, skólp og drenlögn út í götu, raflagnir og rafmagnstöflur, innréttingar, öll tæki, hurðar, gólfefni, gler að mestu, þakjárn ofl.
Íbúð á 1. hæð:
Forstofa / Hol parket á gólfi og stór fataskápur.
Stofa / borðstofa, bjart og sjarmerandi rými með parketi á gólfi, opið við eldhús.
Eldhús falleg innrétting með miklu skápa og borðplássi. Vönduð tæki og innbyggð uppþvottavél, stórir gluggar og parket á gólfi.
Svefnherbergin tvö eru rúmgóð og fín, stór fataskápur í öðru herberginu og innaf hinu er rými sem getr nýst sem fataherb, vinnuaðstaða osfv sem og svalir að baklóð.
Baðherbergi er mjög glæsilegt með fallegri innréttingu, vegghendu salerni, einhalla sturtu með gleri, hægt að koma fyrir þvottavél og þurrkrar. Hiti í gólfum.
Vandað vínilparket er á íbúðinni með undirlagi.
2ja herbergja íbúð á jarðhæð (skráð tómstundarými, merkt 0001), gólfhiti í öllum rýmum.
Opið stofu og eldhúsrými með parketi á gólfi. Eldhús með fínni innréttingu og innbyggðri uppþvottavél.
Svefnherbergið er parketlagt.
Baðherbergið er bjart og flísalagt með góðri sturtu, vegghengdu salerni, innréttigu og tengi fyrir þvottavél.
Íbúðin nýtist vel og er öll nýstandsett.
Raflagnir eru á sér mæli.
Þetta eru fallegar íbúðir í nýstandsettu húsi á eftirsóttum stað - flottir tekjumöguleikar fyrir fjárfesta.
Allar nánari upplýsingar veitir Atli fasteignasali í síma 899-1178 eða atli@betristofan.is
Sjá myndband af Eiríksgötu 19
Til sölu er einnig allt húsið við Eiríksgötu 19, tvær íbúðir á 1. og 2. hæð og innréttaðar tvær einingar á jarðhæð með sér inngangi. Möguleiki á góðum leigutekjum.
Skráð stærð íbúðarinnar á 1. hæð er 89,2 fm skv. skráningu hjá HMS, að auki fylgir íbúðinni um 44 fm ný standsett studió íbúð (skráð tómstundarými) á jarðhæð. Góð lofthæð og sér inngangur og gólfhiti. Samkvæmt núverandi skipulagi telja þessar tvær íbúðir um 133,2 fm. Á baklóð eru bílastæði sem getur rúmað nokkra bíla.
Endurbætur: Sigrún Einarsdóttir Hönnuður sá um innanhúshönnun og efnisval. Það sem hefur verið endurnýjað má nefna:
Pípulögn, ofnar, skólp og drenlögn út í götu, raflagnir og rafmagnstöflur, innréttingar, öll tæki, hurðar, gólfefni, gler að mestu, þakjárn ofl.
Íbúð á 1. hæð:
Forstofa / Hol parket á gólfi og stór fataskápur.
Stofa / borðstofa, bjart og sjarmerandi rými með parketi á gólfi, opið við eldhús.
Eldhús falleg innrétting með miklu skápa og borðplássi. Vönduð tæki og innbyggð uppþvottavél, stórir gluggar og parket á gólfi.
Svefnherbergin tvö eru rúmgóð og fín, stór fataskápur í öðru herberginu og innaf hinu er rými sem getr nýst sem fataherb, vinnuaðstaða osfv sem og svalir að baklóð.
Baðherbergi er mjög glæsilegt með fallegri innréttingu, vegghendu salerni, einhalla sturtu með gleri, hægt að koma fyrir þvottavél og þurrkrar. Hiti í gólfum.
Vandað vínilparket er á íbúðinni með undirlagi.
2ja herbergja íbúð á jarðhæð (skráð tómstundarými, merkt 0001), gólfhiti í öllum rýmum.
Opið stofu og eldhúsrými með parketi á gólfi. Eldhús með fínni innréttingu og innbyggðri uppþvottavél.
Svefnherbergið er parketlagt.
Baðherbergið er bjart og flísalagt með góðri sturtu, vegghengdu salerni, innréttigu og tengi fyrir þvottavél.
Íbúðin nýtist vel og er öll nýstandsett.
Raflagnir eru á sér mæli.
Þetta eru fallegar íbúðir í nýstandsettu húsi á eftirsóttum stað - flottir tekjumöguleikar fyrir fjárfesta.
Allar nánari upplýsingar veitir Atli fasteignasali í síma 899-1178 eða atli@betristofan.is
Gjöld sem kaupandi þarf að standa straum af ef að kaupum verður:
1. Stimpilgjald af fasteignamati fasteignar er 0.8%, en 0,4% fyrir fyrstu kaup og 1,6% fyrir lögaðila.
2. Þinglýsingargjald: kaupsamningi, skuldabréfi, veðleyfi, afsali o.s.frv. er kr. 3.800 af hverju skjali.
3. Lántökukostnaður samkvæmt verðskrá viðkomandi lánastofnunar.
4. Umsýslugjald til fasteignasölu skv. gjaldskrá.
Skoðunarskylda kaupanda:
Í lögum um fasteignakaup nr. 40/2002 er kveðið á um ríka skoðunarskyldu kaupenda á fasteignum. Betri Stofan fasteignasala bendir væntanlegum kaupendum á að kynna sér vel ástand fasteigna við skoðun og fyrir tilboðsgerð og ef þurfa þykir að leita til sérfræðinga um nánari ástandsskoðun.
Ár
Fasteignamat
Kaupverð
Stærð
Fermetraverð
7. des. 2023
72.750.000 kr.
108.250.000 kr.
181.8 m²
595.435 kr.
Byggt á upplýsingum úr Þjóðskrá Íslands frá 2006-2026