Upplýsingar
Byggt 2024
91,5 m²
3 herb.
2 svefnh.
Lyfta
Laus strax
Lýsing
BÓKIÐ SKOÐUN - SÝNUM SAMDÆGURS - Einar s 888-7979, Hlynur s. 698-2603, Glódís s. 659-0510, Helgi s. 893-2233
Hraunhamar kynnir: Glæsilegar nýjar 2-4 herbergja íbúðir á frábærum stað í vönduðu lyftuhúsi í Hamraneshverfinu í Hafnarfirði. Íbúðirnar skilast fullbúnar með gólfefnum og er sér lofskiptakerfi í hverri íbúð.
Íbúðirnar eru tilbúnar til afhendingar. Mögulegt er að kaupa sér bílastæði í bílakjallara á 4 milljónir kr.
Möguleiki á áðeins 10% útborgun!
UTS20 sjóðurinn býður sameignarlausn í sínum verkefnum.
Þú leggur fram að lágmarki 10% af kaupverði fasteignar og UTS20 leggur til allt að 20% á móti.
Þið kaupið eignina saman, en þú býrð í henni með 100% afnotarétti.
Sjá nánar á heimasíðu sjóðsins hér.
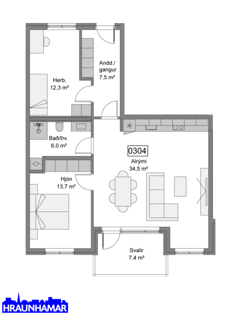
Íbúð 304 er 3ja herbergja íbúð skráð 91,5 fm þar af 5,7 fm geymsla.
Smelltu hér fyrir heimasíðu verkefnisins.
Nánari lýsing skv. teikningu :
Forstofa með fataskáp.
Gott opið alrými, með stórum gluggum.
Björt stofa og borðstofa og þaðan útgengt út á svalir.
Eldhúsinnrétting er frá Nobilia, steinplata á borðum.
Eldhúsinnrétting er fullbúin með blöndunartækjum og eldhústækjum þ.e. helluborði, viftu í innréttingu eða eyjuháfi yfir helluborði þar sem það á við, innbyggðum ísskáp, innbyggðri uppþvottavél og ofni.
Hjónaherbergi með skápum.
Rúmgott svefnherbergi með skápum.
Flísalagt baðherbergi með innréttingu, upphengdu salerni og sturta, þvottaaðstaða inn á baðherbergi.
Ath. myndir eru af annarri íbúð, efnisval innréttinga og gólfefna er það sama.
Kaupandi borgar skipulagsgjald þegar þess verður krafist sem er 0,3 % af væntu brunabótamati eignarinnar.
Hægt er að nálgast skilalýsingu og fá nánari upplýsingar hjá Hraunhamri fasteignasölu.
Bókið skoðun hjá sölumönnum Hraunhamars:
Einar Örn Ágústsson, löggiltur fasteignasali, s. 888-7979, einar@hraunhamar.is
Glódís Helgadóttir, löggiltur fasteignasali s. 659-0510, glodis@hraunhamar.is
Hlynur Halldórsson, löggiltur fasteignasali, s. 698-2603, hlynur@hraunhamar.is
Helgi Jón Harðarson, sölust. s. 893-2233, helgi@hraunhamar.is
Gjöld sem kaupandi þarf að standa straum af vegna kaupanna:
1. Stimpilgjald af kaupsamningi, fyrstu kaup (0,4%), almenn kaup (0,8%), lögaðilar (1,6%) af heildarfasteignamati.
2. Þinglýsingargjald af kaupsamningi, veðskuldabréfi, mögulegu veðleyfi o.fl. – kr. 3,800 kr. af hverju skjali.
3. Lántökugjald lánastofnunar er skv. verðskrá viðkomandi lánastofnunar.
4. Umsýslugjald til fasteignasölu skv. þjónustusamningi
Hraunhamar er elsta fasteignasala Hafnarfjarðar, stofnuð 1983
Hraunhamar, í farabroddi í 40 ár ! – Hraunhamar.is
Smelltu hér til að fá frítt söluverðmat.
Hraunhamar kynnir: Glæsilegar nýjar 2-4 herbergja íbúðir á frábærum stað í vönduðu lyftuhúsi í Hamraneshverfinu í Hafnarfirði. Íbúðirnar skilast fullbúnar með gólfefnum og er sér lofskiptakerfi í hverri íbúð.
Íbúðirnar eru tilbúnar til afhendingar. Mögulegt er að kaupa sér bílastæði í bílakjallara á 4 milljónir kr.
Möguleiki á áðeins 10% útborgun!
UTS20 sjóðurinn býður sameignarlausn í sínum verkefnum.
Þú leggur fram að lágmarki 10% af kaupverði fasteignar og UTS20 leggur til allt að 20% á móti.
Þið kaupið eignina saman, en þú býrð í henni með 100% afnotarétti.
Sjá nánar á heimasíðu sjóðsins hér.
Íbúð 304 er 3ja herbergja íbúð skráð 91,5 fm þar af 5,7 fm geymsla.
Smelltu hér fyrir heimasíðu verkefnisins.
Nánari lýsing skv. teikningu :
Forstofa með fataskáp.
Gott opið alrými, með stórum gluggum.
Björt stofa og borðstofa og þaðan útgengt út á svalir.
Eldhúsinnrétting er frá Nobilia, steinplata á borðum.
Eldhúsinnrétting er fullbúin með blöndunartækjum og eldhústækjum þ.e. helluborði, viftu í innréttingu eða eyjuháfi yfir helluborði þar sem það á við, innbyggðum ísskáp, innbyggðri uppþvottavél og ofni.
Hjónaherbergi með skápum.
Rúmgott svefnherbergi með skápum.
Flísalagt baðherbergi með innréttingu, upphengdu salerni og sturta, þvottaaðstaða inn á baðherbergi.
Ath. myndir eru af annarri íbúð, efnisval innréttinga og gólfefna er það sama.
Kaupandi borgar skipulagsgjald þegar þess verður krafist sem er 0,3 % af væntu brunabótamati eignarinnar.
Hægt er að nálgast skilalýsingu og fá nánari upplýsingar hjá Hraunhamri fasteignasölu.
Bókið skoðun hjá sölumönnum Hraunhamars:
Einar Örn Ágústsson, löggiltur fasteignasali, s. 888-7979, einar@hraunhamar.is
Glódís Helgadóttir, löggiltur fasteignasali s. 659-0510, glodis@hraunhamar.is
Hlynur Halldórsson, löggiltur fasteignasali, s. 698-2603, hlynur@hraunhamar.is
Helgi Jón Harðarson, sölust. s. 893-2233, helgi@hraunhamar.is
Gjöld sem kaupandi þarf að standa straum af vegna kaupanna:
1. Stimpilgjald af kaupsamningi, fyrstu kaup (0,4%), almenn kaup (0,8%), lögaðilar (1,6%) af heildarfasteignamati.
2. Þinglýsingargjald af kaupsamningi, veðskuldabréfi, mögulegu veðleyfi o.fl. – kr. 3,800 kr. af hverju skjali.
3. Lántökugjald lánastofnunar er skv. verðskrá viðkomandi lánastofnunar.
4. Umsýslugjald til fasteignasölu skv. þjónustusamningi
Hraunhamar er elsta fasteignasala Hafnarfjarðar, stofnuð 1983
Hraunhamar, í farabroddi í 40 ár ! – Hraunhamar.is
Smelltu hér til að fá frítt söluverðmat.