Löggiltir fasteignasalar innan Félags fasteignasala:
Sigurður Samúelsson
Andri Sigurðsson
Sveinn Eyland
Ingibjörg Agnes Jónsdóttir
Guðrún Diljá Lúðvíksdóttir
Monika Hjálmtýsdóttir
Júlíus Jóhannsson
Freyja Rúnarsdóttir
Jón Óskar Karlsson
Davíð Matthíasson
Erla Friðriksdóttir
Vista
fjölbýlishús

Lynggata 1

210 Garðabær

89.900.000 kr.

893.638 þ.kr./m2
Fasteignanúmer

F2362700

Fasteignamat

86.250.000 kr.

Brunabótamat

65.980.000 kr.

Áhvílandi

0 kr.

Arion banki – Reikna lán
Upplýsingar
Verðsaga
svg
Byggt 2018
svg
100,6 m²
svg
3 herb.
svg
1 baðherb.
svg
2 svefnh.
svg
Þvottahús
svg
Sameiginl. inngangur
svg
Bílastæði
svg
Lyfta
Opið hús: 10. apríl 2026 kl. 12:00 til 12:30

Opið hús: Lynggata 1, 210 Garðabær, Íbúð merkt: 03 04 01. Eignin verður sýnd föstudaginn 10. apríl 2026 milli kl. 12:00 og kl. 12:30.

Lýsing

Landmark fasteignamiðlun kynnir:

Virkilega fallega og vel skipulagða 3ja herbergja endaíbúð á efstu hæð ásamt stæði í bílageymslu.  Glæsilegt útsýni og aukin lofthæð í íbúðinni.  2 rúmgóð svefnherbergi og góðar suðursvalir.  Glæsilegar innréttingar og gólfefni.  Þvottahús innan íbúðar.  Sameign snyrtileg.  Stutt að keyra inn í hverfið.

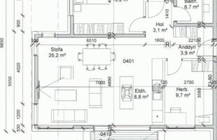
Samkvæmt HMS er eignin skráð 100,6 fm. Íbúð er 92,7 fm og sérgeymsla 7,9 fm. 

Nánari upplýsingar veita:
Þórarinn Thorarensen sölustjóri s. 770-0309 eða th@landmark.is
Sveinn Eyland lögg. fast. s. 6 900 820 eða sveinn@landmark.is

Nánari lýsing:

Forstofa:  Fataskápur og harðparket á gólfi.  Sérsmíður skóskápur með spegli fyrir ofan.
Miðrými:  Harðparket á gólfi.  
Stofa / borðstofa:  Afar rúmgóð og björt með gólfsíðum gluggum með glæsilegu útsýni.  Harðparket á gólfi.  Útgengt á góðar suðursvalir.
Eldhús:  Glæsileg innrétting með innbyggðum ísskáp og uppþvottavél.  Eldunareyja með háf yfir.  Harðparket á gólfi.
Svefnherbergi:  Tvö rúmgóð herbergi, bæði með fataskáp og harðparket á gólfum.
Baðherbergi:  Flísar á gólfi og hluta af veggjum.  Flísalögð sturta aðskilin með öryggisgleri.  Falleg innrétting í kringum handlaug, spegla skápar yfir.  Upphengt salerni og handklæðaofn.  Opnanlegur gluggi þar inni.
Þvottahús:  Flísar á gólfi.  Innrétting fyrir þvottavél og þurrkara í vinnuhæð.  Skolvaskur í borðplötu.  
Sérgeymsla í sameign ásamt sameiginlegri hjólageymslu.  
Stæði í bílageymslu, búið að leggja rafmagn að bílastæði fyrir hleðslustöð.





 

Skoðunar- og aðgæsluskylda:
Lög um fasteignakaup nr. 40/2002 kveða á um að kaupendur þurfi að skoða fasteignir vel áður en tilboð er gert. LANDMARK fasteignamiðlun ráðleggur kaupendum að skoða ástand eignar og leita sér aðstoðar sérfræðinga ef þörf er á nánari skoðun.

Söluyfirlit:
Söluyfirlit er gert af fasteignasala samkvæmt lögum nr. 70/2015. Upplýsingar í yfirlitinu eru fengnar úr opinberum skrám, frá seljanda og ef þarf frá húsfélagi. Fasteignasali sannreynir upplýsingar með skoðun á eigninni en getur ekki sannreynt ástand þess sem ekki er aðgengilegt eða sýnilegt, t.d. lagnir, dren, skólp og þak.

Gjöld sem kaupandi þarf að greiða:
1. Stimpilgjald: 0,8% af fasteignamati (0,4% fyrir fyrstu kaup) og 1,6% fyrir lögaðila.
2. Þinglýsingargjald: 3.800 kr. fyrir hvert skjal.
3. Lántökugjald: Fer eftir gjaldskrá lánveitanda.
3. Þjónustugjald kaupanda: 79.000 kr. m/vsk.
3. Skipulagsgjald: Ef um nýbyggingu er að ræða, 0,3% af brunabótamáti þegar það er lagt á.

Heimasíða LANDMARK
Pantaðu frítt söluverðmat

LANDMARK fasteignamiðlun

LANDMARK fasteignamiðlun

Hlíðasmári 2, 201 Kópavogur
phone
Ár
Fasteignamat
Kaupverð
Stærð
Fermetraverð
7. mar. 2024
76.800.000 kr.
77.900.000 kr.
100.6 m²
774.354 kr.
26. jan. 2018
3.940.000 kr.
48.900.000 kr.
100.6 m²
486.083 kr.
Byggt á upplýsingum úr Þjóðskrá Íslands frá 2006-2026
LANDMARK fasteignamiðlun

LANDMARK fasteignamiðlun

Hlíðasmári 2, 201 Kópavogur
phone