Löggiltir fasteignasalar innan Félags fasteignasala:
Sigurður Maack Gunnarsson
Svanþór Einarsson
Theodór Emil Karlsson
Steingrímur Benediktsson
Vista
einbýlishús

Úugata 66

270 Mosfellsbær

158.900.000 kr.

650.430 þ.kr./m2
Fasteignanúmer

F2524852

Fasteignamat

139.250.000 kr.

Brunabótamat

0 kr.

Áhvílandi

0 kr.

Arion banki – Reikna lán
Upplýsingar
svg
Byggt 2025
svg
244,3 m²
svg
5 herb.
svg
2 baðherb.
svg
4 svefnh.
svg
Þvottahús
svg
Bílskúr
svg
Sérinngangur
svg
Laus strax

Lýsing

** Hafðu sambandog bókaðu skoðun -  Laust við kaupsamning - Svanþór Einarsson, löggiltur fasteignasali - svanthor@fastmos.is eða 698-8555 - Theodór Emil Karlsson, löggiltur fasteignasali - teddi@fastmos.is eða 690-8040 - Steingrímur Benediktsson, löggiltur fasteignasali - steingrimur@fastmos.is eða 862-9416 ** 

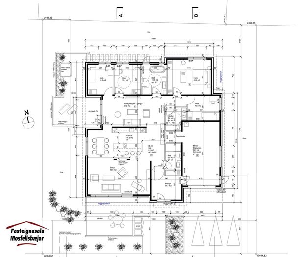
Fasteignasala Mosfellsbæjar kynnir: Nýtt - Glæsilegt 244,3 m2, steypt einbýlishús á einni hæð með innbyggðum bílskúr við Úugötu 66 í Mosfellsbæ. Eignin er skráð 244,3 m2, þar af einbýli 204,5 m2 og bílskúr 39,8 m2. Eignin skiptist í forstofu, tvö baðherbergi, stofu, borðstofu, eldhús, sjónvarpshol, hjónaherbergi, þrjú barnaherbergi, þvotthús og bílskúr. Frábært skipulag sem hentar vel fyrir fjölskyldufólk. Stutt í Helgafellsskóla sem er bæði grunn- og leikskóli. Stutt er í náttúruna og fallegar gönguleiðir. Eignin afhendist samkvæmt skilalýsingu seljanda á Byggingarstigi B3 - tilbúin til innréttinga en búið er að mála eina umferð á veggi, setja hljóðdúk í loft með lýsingu og ganga frá rafmagni, rafmagn fullfrágengið. Gólf eru rykbundin og bílskúrsgólf er frágengið með epoxy gólefni. Lagnaleið fyrir heitan pott er út á verönd og uppsett er heitapottastýring frá Danfoss. Möguleiki að fá húsið afhent fullbúið eða eftir samkomulagi, tillögur að innréttingum, flísum og hurðum liggja fyrir og eru verðlagðar á ca. 12 milljónir uppsett.
Til greina kemur uppítaka á byggingalóð eða minni eign.

Eignin er laus til afhendingar í kaupsamning.

Smelltu hér til að fá söluyfirlit sent strax.

Verð kr. 158.900.000,-


Frágangur utanhúss:
Burðvirki: Burðarvirki hússins, þ.e.a.s. sökklar, útveggir og berandi veggir eru forsteypar einingar frá BM vallá. Þak er timbursperruþak, plata er staðsteypt og einangrað er undir botnplötu með 100mm plasteinangrun. Útveggir eru burðarveggur að innan og 6cm steyptri veðurkápu að utan með einangrun á milli.
Þak er timbursperruþak með öndun ofan við þakull. Klæðning er bárujárn og þakkantar úr áli RAL 7011 . Þak er fullfrágengið ásamt niðurföllum.
Gluggar Í húsinu eru álklæddir timburgluggar frá Byko. Gluggar eru í gráum lit, RAL 7011. Ál-trégluggar er settir í eftir á. Inngangshurðar eru úr timbri og rennihurðar úr áli.
Lóð er frágengin að mestu. Á lóð er möl í bílastæði og gönguleið að húsi. Timburverandir eru við útganga úr stofu og sjónvarpsholi. Lóð er að þökulögð á sólarhlið og með snyrtilegri möl og Holtagrjóti að aftan. Sportunnuskýli fyrir 3 sorptunnur eru við bílaplan sem hægt er að staðsetja á lóðarmörkum milli þessa húss og nágranna eða færa yfir planið neðan við sólpall eins og aðaluppdrættir sýna.

Frágangur innanhúss:
Húsinu er skilað í núverandi ástandi, nema um annað sé um samið.
Gólf: Gólf eru steypt, flotuð og rykbundin. Kaupendum er bent á að leita til fagmanna fyrir hentugan frágang gólfefna er varðar skekkjumörk og gólfhita.
Veggir: Steyptir veggir og aðrir innveggir eru spartlaðir, grunnaðir og máluð 1 umferð með í hvítum Ral 9003 lit ekki er afhent með fullnaðarfrágang málningar. Innveggir eru ýmist steyptir eða gipshleðslusteinn. Veggir í baðherbergjum eru ófrágengnir, þar sem gert er ráð fyrir membrun og flísalögn.
Loft: Hljóðdúkur er frágenginn í öllum loftum að undanteknum baðherbergjum, þvottahúsi og bílskúr sem eru grunnuð og máluð.
Rafkerfi: Inntak og rafmagnstafla uppsett í bílskúr. Raflagnir eru frágengnar með Plejd dimmer kerfi og rofum eftir sem við á og Master rofa við útgangshurð. Innfelld ljós eru víða ásamt kösturum í stofu og kastarabraut í mögulegu hjóna-fataherbergi. Viðeigandi ljós eru í bílskúr, geymslu og þvottahúsi. Gert er ráð fyrir lögn að 2 rafbílahleðslum á veggjum við bílskúrshurð auk fleiri jarðvegsbarka út í bílaplan og við palla. Möguleiki er að fá uppsetta stöð með við kaupin. Útiljós eru uppsett á húsveggi og í þakkant eftir sem við á. Lagnir eru til staðar fyrir heitan pott og saunaklefa við sólpall. Einnig liggur jarðvegsbarki að hugsanlegri staðsetningu fyrir geymsluskúr á lóð.
Lagnir: Inntak hita og neysluvatns er frágengið með forhitara á heitt neysluvatn. Gólfhitakerfi er í húsinu frágengið með hitastýringu. Neysluvatn lagt í gólf og veggi skv. teikningum. Lagnaleið fyrir heitan pott er út á verönd og uppsett er heitapottastýring frá Danfoss. Húsið er hitað upp með hefðbundnu gólfhitakerfi. Hámarkshiti á heitu vatni er stillanlegt. Útsogsblásari er út um bílskúr fyrir minna baðherbergi , þvottahús, bílskúr og alrými við eldhús. Baðherbergisvifta fyrir stærra baðherbergið.
Eldhús: Lagnaleiðir fyrir eldavél, ofn, viftu, ísskáp og uppþvottavél eru lagðar með tvo möguleika fyrir hendi, annarsvegar eins og sýnt er á aðaluppdrætti og svo víxlun á ísskáp og bakarofn/örbylgjuofn skáp (vírar tengdir miðað við víxlun). Einnig er rör út aftur fyrir hús fyrir möguleika á gaseldavél og gas arinstæði.
Baðherbergi: Baðherbergi eru tilbúið undir membrun og flísalögn. Loft eru sandspörstluð, grunnuð og máluð 1 umferð. Það er virkt klósett og vaskur á minna baðherberginu og kassi er tilbúinn fyrir flísalögn. Það er innbyggt í veggi beggja baðherbergja HansaBluebox frá Tengi, það eru boks sem bjóða upp á nokkrar útfærslur af útliti.
Þvottahús: Gólf er tilbúið undir membrun og flísalögn. Loft og veggir eru sandsparstlaðir, grunnaðir og málað að mestu. Tengi er fyrir þvottavél og þurrkara gert er ráð fyrir þurrkara með rakaþétti.

Tengdir aðilar:
Byggingaraðili: Sigurtak ehf. Ásland 13, 270 Mosfellsbæ.
Hönnuður: Atli Jóhann Guðbjörnsson, TAG-teiknistofa ehf.
Hönnun burðarvirkis: BM Vallá
Lagnahönnun: Jón Kristjánsson fyrir hönd TAG teiknistofu.
Raflagnahönnun: Arnar Bjarnason, Tæknisýn
Byggingastjóri: Garðar Atli Jóhannsson, Verkþekking ehf.



Um skoðunar- og aðgæsluskyldu:
Í lögum um fasteignakaup nr. 40/2002 er kveðið á um ríka skoðunarskyldu kaupenda á fasteignum. Fasteignasala Mosfellsbæjar skorar því á væntanlega kaupendur að kynna sér vel ástand fasteigna fyrir kauptilboðsgerð og leita til þar til bærra sérfræðinga um nánari skoðun ef með þarf.

Forsendur söluyfirlits:
Söluyfirlit er samið af fasteignasala í samræmi við ákvæði laga nr. 70/2015. Þær upplýsingar sem fram koma í söluyfirliti þessu eru sóttar í opinberar skrár, til seljanda sjálfs og eftir atvikum til húsfélags. Seljandi veitir upplýsingar um eign í samræmi við upplýsingaskyldu laga um fasteignakaup nr. 40/2002. Fasteignasali sannreynir að þær upplýsingar séu réttar með sjónskoðun á eigninni.
Fasteignasali getur ekki fullyrt um ástand og eiginleika þeirra hluta fasteigna sem ekki eru aðgengilegir og sjást ekki berum augum, t.d. lagnir, dren, skólp og þak.

Gjöld sem kaupandi þarf að greiða vegna kaupa:
1. Stimpilgjald af kaupsamningi sem er hlutfall af fasteignamati. Stimpilgjald er 0,8% fyrir einstaklinga (0,4% við fyrstu kaup) og 1,6% fyrir lögaðila.
2. Þinglýsingargjald af kaupsamningi, veðskuldabréfum, veðleyfum o.fl. Þinglýsingargjald er kr. 3.800,- fyrir hvert skjal.
3. Lántökugjald lánastofnunar - er skv. gjaldskrá viðkomandi lánastofnunar.
4. Umsýslugjald til fasteignasölu skv. kauptilboði.
5. Þegar um nýbyggingu er að ræða greiðir kaupandi skipulagsgjald, 0,3% af endanlegu brunabótamáti, þegar það er lagt á af viðkomandi sveitarfélagi.

img
Svanþór Einarsson
Lögg.fasteignasali innan félags fasteignasala
Fasteignasala Mosfellsbæjar
Þverholti 2, 270 Mosfellsbæ
Fasteignasala Mosfellsbæjar

Fasteignasala Mosfellsbæjar

Þverholti 2, 270 Mosfellsbæ
phone
img

Svanþór Einarsson

Þverholti 2, 270 Mosfellsbæ
Fasteignasala Mosfellsbæjar

Fasteignasala Mosfellsbæjar

Þverholti 2, 270 Mosfellsbæ
phone

Svanþór Einarsson

Þverholti 2, 270 Mosfellsbæ