Upplýsingar
Verðsaga
Byggt 2005
190,1 m²
5 herb.
2 baðherb.
4 svefnh.
Þvottahús
Bílskúr
Sérinngangur
Lýsing
Hraunhamar fasteignasala kynnir: Glæsilegt, fullbúið og nýtískulegt einbýli á einni hæð með innb. bílskúr samtals 190,1 fm. Húsið stendur á frábærum stað í bænum, (Vogar Vatnsleysustr.) Jaðarlóð í enda botnlanga. Óbyggt svæði við húsið og mikið útsýni.
Mikil lofthæð er í húsinu og stórir gluggar. Fjögur til fimm svefnherbergi ofl. Pallur afgirtur í suður er óvenju stór. Allar innréttingar eru sérsmíðaðar frá HTH ehf (ljós eik). Hiti í gólfum. Nýlegt þráðlaust danfoss hitakerfi. Nýleg led lýsing.
Nýlega steypt rúmgott bílaplan. Nýlegt saunahús og rafmagnspottur á 200 fm suður veröndinni.
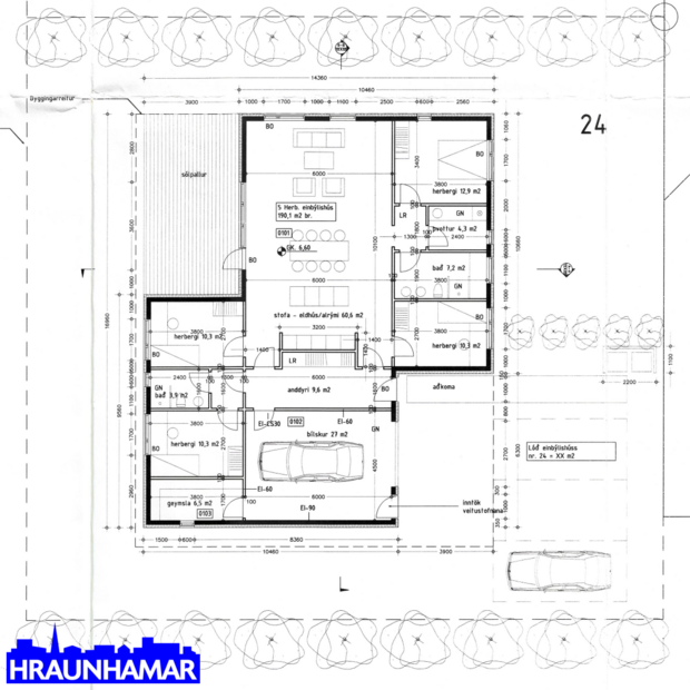
Húsið skiptist m.a. þannig: Rúmgóð forstofa/gangur, flísar og vandaður skápur. Eldhús, borðstofa, og rúmgóð stofan eru í opnu rými með hárri lofthæð. Eldhúsið er mjög fallegt með vandaðri eikar innréttingu, eyja og nýtt spanhelluborð.
Frá stofu er útgengt út á stóran pallinn í suður, en þar er rafmagnspottur og saunahús. Nýlegur 15 fm geymsluskúr við húsið (lögn f. rafmagn) Svefnálmur: 4 rúmgóð herbergi með eikarskápum þar af hjónaherbergi. Rúmgott þvottaherbergi með innréttingu og glugga.
Mjög fallegt baðherbergi með upphangandi salerni og vandaðri eikar innréttingu, baðkar, flísar. Síðan er annað baðherbergi með fínni sturtuaðstöðu og innréttingu. Innangengt er í rúmgóðan fullbúinn bílskúrinn og búið er að
breyta hluta af honum þar sem var geymsla á teikningu í herbergi (5. herbergið)
Harðparket og flísar á gólfum. (hiti í gólfum)
Samkvæmt uppl. seljenda:
2022: Innréttingar og eldhúsinnrétting sprautulakkaðar.
Hleðslustöð f.ragmagnsbíl, og tengja hita í bílaplanið, lokað kerfi.
2024: Gróðursettir runnar, pallur styrktur og stækkaður í rúmlega 200 fm.
Saunahús og rafmagnspottur sett á veröndina.
2025: Gluggar málaðir að utan. geymsluskúr, pallur (veröndin) og skjólveggir, borið á með viðarvörn.
Vogarnir eru barnvænt svæði og bærinn er í mikilli uppsveiflu. Akstur til Hafnarfjarðar ca 20 mín.
Nánari upplýsingar gefur Helgi Jón Harðarson sölustj. s 893-2233 eða helgi@hraunhamar.is og
Glódís Helgadóttir lgf s.659-0510 glodis@hraunhamar.is
Skoðunarskylda:
Í lögum um fasteignakaup nr. 40/2002 er kveðið á um ríka skoðunarskyldu kaupenda á fasteignum. Hraunhamar fasteignasala vill benda væntanlegum kaupendum á að kynna sér vel ástand fasteigna fyrir kauptilboðsgerð og ef þurfa þykir að leita til sérfræðinga fyrir nánari ástandsskoðun.
Gjöld sem kaupandi þarf að standa straum af vegna kaupanna:
1. Stimpilgjald af kaupsamningi, fyrstu kaup (0,4%), almenn kaup (0,8%), lögaðilar (1,6%) af heildarfasteignamati.
2. Þinglýsingargjald af kaupsamningi, veðskuldabréfi, mögulegu veðleyfi o.fl. – 3.800 kr. af hverju skjali.
3. Lántökugjald lánastofnunar er skv. verðskrá viðkomandi lánastofnunar.
4. Umsýslugjald til fasteignasölu skv. þjónustusamningi
Hraunhamar er elsta fasteignasala Hafnarfjarðar, stofnuð 1983.
Hraunhamar, í fararbroddi í rúm 40 ár. – Hraunhamar.is
Smelltu hér til að fá frítt söluverðmat.
Mikil lofthæð er í húsinu og stórir gluggar. Fjögur til fimm svefnherbergi ofl. Pallur afgirtur í suður er óvenju stór. Allar innréttingar eru sérsmíðaðar frá HTH ehf (ljós eik). Hiti í gólfum. Nýlegt þráðlaust danfoss hitakerfi. Nýleg led lýsing.
Nýlega steypt rúmgott bílaplan. Nýlegt saunahús og rafmagnspottur á 200 fm suður veröndinni.
Húsið skiptist m.a. þannig: Rúmgóð forstofa/gangur, flísar og vandaður skápur. Eldhús, borðstofa, og rúmgóð stofan eru í opnu rými með hárri lofthæð. Eldhúsið er mjög fallegt með vandaðri eikar innréttingu, eyja og nýtt spanhelluborð.
Frá stofu er útgengt út á stóran pallinn í suður, en þar er rafmagnspottur og saunahús. Nýlegur 15 fm geymsluskúr við húsið (lögn f. rafmagn) Svefnálmur: 4 rúmgóð herbergi með eikarskápum þar af hjónaherbergi. Rúmgott þvottaherbergi með innréttingu og glugga.
Mjög fallegt baðherbergi með upphangandi salerni og vandaðri eikar innréttingu, baðkar, flísar. Síðan er annað baðherbergi með fínni sturtuaðstöðu og innréttingu. Innangengt er í rúmgóðan fullbúinn bílskúrinn og búið er að
breyta hluta af honum þar sem var geymsla á teikningu í herbergi (5. herbergið)
Harðparket og flísar á gólfum. (hiti í gólfum)
Samkvæmt uppl. seljenda:
2022: Innréttingar og eldhúsinnrétting sprautulakkaðar.
Hleðslustöð f.ragmagnsbíl, og tengja hita í bílaplanið, lokað kerfi.
2024: Gróðursettir runnar, pallur styrktur og stækkaður í rúmlega 200 fm.
Saunahús og rafmagnspottur sett á veröndina.
2025: Gluggar málaðir að utan. geymsluskúr, pallur (veröndin) og skjólveggir, borið á með viðarvörn.
Vogarnir eru barnvænt svæði og bærinn er í mikilli uppsveiflu. Akstur til Hafnarfjarðar ca 20 mín.
Nánari upplýsingar gefur Helgi Jón Harðarson sölustj. s 893-2233 eða helgi@hraunhamar.is og
Glódís Helgadóttir lgf s.659-0510 glodis@hraunhamar.is
Skoðunarskylda:
Í lögum um fasteignakaup nr. 40/2002 er kveðið á um ríka skoðunarskyldu kaupenda á fasteignum. Hraunhamar fasteignasala vill benda væntanlegum kaupendum á að kynna sér vel ástand fasteigna fyrir kauptilboðsgerð og ef þurfa þykir að leita til sérfræðinga fyrir nánari ástandsskoðun.
Gjöld sem kaupandi þarf að standa straum af vegna kaupanna:
1. Stimpilgjald af kaupsamningi, fyrstu kaup (0,4%), almenn kaup (0,8%), lögaðilar (1,6%) af heildarfasteignamati.
2. Þinglýsingargjald af kaupsamningi, veðskuldabréfi, mögulegu veðleyfi o.fl. – 3.800 kr. af hverju skjali.
3. Lántökugjald lánastofnunar er skv. verðskrá viðkomandi lánastofnunar.
4. Umsýslugjald til fasteignasölu skv. þjónustusamningi
Hraunhamar er elsta fasteignasala Hafnarfjarðar, stofnuð 1983.
Hraunhamar, í fararbroddi í rúm 40 ár. – Hraunhamar.is
Smelltu hér til að fá frítt söluverðmat.
Ár
Fasteignamat
Kaupverð
Stærð
Fermetraverð
11. mar. 2022
59.500.000 kr.
86.000.000 kr.
190.1 m²
452.393 kr.
6. maí. 2016
28.300.000 kr.
38.250.000 kr.
190.1 m²
201.210 kr.
12. des. 2007
20.040.000 kr.
28.750.000 kr.
190.1 m²
151.236 kr.
Byggt á upplýsingum úr Þjóðskrá Íslands frá 2006-2026