Upplýsingar
Byggt 2026
259,1 m²
5 herb.
Bílskúr
Sérinngangur
Opið hús: 11. apríl 2026
kl. 13:30
til 14:00
Opið hús: Breiðuholt 1A, 190 Vogar. Eignin verður sýnd laugardaginn 11. apríl 2026 milli kl. 13:30 og kl. 14:00.
Lýsing
SKEIFAN og Halldór fasteignasali kynna í einkasölu: Breiðuholt 1A, 190 Vogum. Virkilega vel skipulagt og rúmgott 259,1 m² einbýlishús á einni hæð með innbyggðum bílskúr. Eignin afhendist á byggingarstigi 5 (tilbúin til innréttinga), sem gefur kaupendum frábært tækifæri til að setja sitt eigið mark á lokafrágang innanhúss.
Nánari upplýsingar veitir HALLDÓR / Sími: 618-9999 / HALLDÓR@SKEIFAN.IS
Helstu kostir:
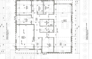
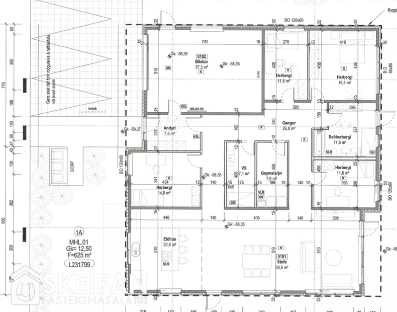
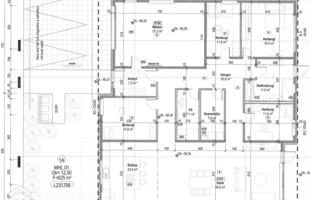
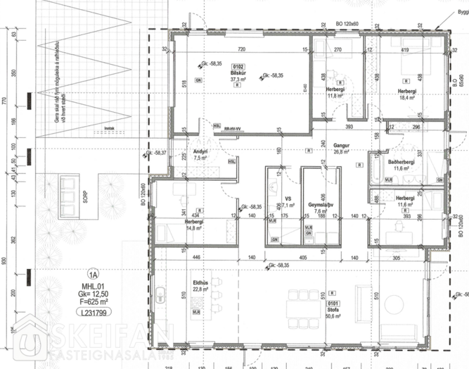
Stærð: Íbúðarhluti 216,7 m² og bílskúr 42,4 m².
Svefnherbergi: Fjögur rúmgóð svefnherbergi.
Baðherbergi: Tvö baðherbergi (annað með bæði sturtu og baðkari).
Skipulag: Opið flæði milli eldhúss og stofu með útgengi í garð.
Staðsetning: Fjölskylduvænt hverfi í Vogum, stutt í skóla, sund og alla þjónustu.
Nánari lýsing:
Forstofa: Björt með beinu innangengi í bílskúr.
Eldhús & stofa: Eldhús er hannað fyrir flotta innréttingu með góðu skúffuplássi. Alrýmið er bjart og opið með útgengi á lóð.
Svefngangar: Þar eru fjögur svefnherbergi, þar af rúmgott hjónaherbergi, ásamt þvottahúsi.
Baðherbergi: Samkvæmt teikningu eru tvö baðherbergi, bæði með sturtu og annað þeirra með baðkari. Útgengt er á lóð af öðru baðherberginu.
Bílskúr: 42,4 m² útgengi á baklóð.
Lóð: Afhendist grófjöfnuð í réttri hæð.
Hér er um að ræða einstaklega fallegt og fjölskylduvænt einbýlishús á frábærum stað í Vogum þar sem stutt er í alla helstu þjónustu s.s. verslun, grunn- og leikskóla, íþróttamiðstöð og sundlaug.
Nánari upplýsingar veitir HALLDÓR / Sími: 618-9999 / HALLDÓR@SKEIFAN.IS
Kaupendur greiða skipulagsgjald þ.e 0,3% af endanlegu brunabótamati þegar það verður innheimt.
Kostnaður kaupanda vegna kaupa: Stimpilgjald kaupsamnings einstaklinga er 0,8% og lögaðila 1,6% af fasteignamati eignar. Lántökugjald getur verið breytilegt eftir lánastofnunum, oftast 1%. Þinglýsingargjald er 2.700 kr fyrir hvert skjal. Þjónustu- og umsýslugjald til fasteignasölu skv. kauptilboði.
Um skoðunar- og aðgæsluskyldu: Í lögum um fasteignakaup nr. 40/2002 er kveðið á um ríka skoðunarskyldu kaupenda á fasteignum. Skeifan fasteignasala bendir öllum sem hugsa sér að kaupa, að kynna sér vel ástand fasteignarinnar við skoðun fyrir tilboðsgerð og leita til sérfræðinga um nánari ástandsskoðun ef þörf þykir.
Forsendur söluyfirlits: Söluyfirlit er samið af fasteignasala í samræmi við ákvæði laga nr. 70/2015. Þær upplýsingar sem fram koma í söluyfirliti þessu eru sóttar í opinberar skrár, til seljanda sjálfs og eftir atvikum til húsfélags. Seljandi veitir upplýsingar um eign í samræmi við upplýsingaskyldu laga um fasteignakaup nr. 40/2002. Fasteignasali sannreynir að þær upplýsingar séu réttar með sjónskoðun á eigninni. Fasteignasali getur ekki fullyrt um ástand og eiginleika þeirra hluta fasteigna sem ekki eru aðgengilegir og sjást ekki berum augum, t.d. lagnir, dren, skólp og þak.
Nánari upplýsingar veitir HALLDÓR / Sími: 618-9999 / HALLDÓR@SKEIFAN.IS
Helstu kostir:
Stærð: Íbúðarhluti 216,7 m² og bílskúr 42,4 m².
Svefnherbergi: Fjögur rúmgóð svefnherbergi.
Baðherbergi: Tvö baðherbergi (annað með bæði sturtu og baðkari).
Skipulag: Opið flæði milli eldhúss og stofu með útgengi í garð.
Staðsetning: Fjölskylduvænt hverfi í Vogum, stutt í skóla, sund og alla þjónustu.
Nánari lýsing:
Forstofa: Björt með beinu innangengi í bílskúr.
Eldhús & stofa: Eldhús er hannað fyrir flotta innréttingu með góðu skúffuplássi. Alrýmið er bjart og opið með útgengi á lóð.
Svefngangar: Þar eru fjögur svefnherbergi, þar af rúmgott hjónaherbergi, ásamt þvottahúsi.
Baðherbergi: Samkvæmt teikningu eru tvö baðherbergi, bæði með sturtu og annað þeirra með baðkari. Útgengt er á lóð af öðru baðherberginu.
Bílskúr: 42,4 m² útgengi á baklóð.
Lóð: Afhendist grófjöfnuð í réttri hæð.
Hér er um að ræða einstaklega fallegt og fjölskylduvænt einbýlishús á frábærum stað í Vogum þar sem stutt er í alla helstu þjónustu s.s. verslun, grunn- og leikskóla, íþróttamiðstöð og sundlaug.
Nánari upplýsingar veitir HALLDÓR / Sími: 618-9999 / HALLDÓR@SKEIFAN.IS
Kaupendur greiða skipulagsgjald þ.e 0,3% af endanlegu brunabótamati þegar það verður innheimt.
Kostnaður kaupanda vegna kaupa: Stimpilgjald kaupsamnings einstaklinga er 0,8% og lögaðila 1,6% af fasteignamati eignar. Lántökugjald getur verið breytilegt eftir lánastofnunum, oftast 1%. Þinglýsingargjald er 2.700 kr fyrir hvert skjal. Þjónustu- og umsýslugjald til fasteignasölu skv. kauptilboði.
Um skoðunar- og aðgæsluskyldu: Í lögum um fasteignakaup nr. 40/2002 er kveðið á um ríka skoðunarskyldu kaupenda á fasteignum. Skeifan fasteignasala bendir öllum sem hugsa sér að kaupa, að kynna sér vel ástand fasteignarinnar við skoðun fyrir tilboðsgerð og leita til sérfræðinga um nánari ástandsskoðun ef þörf þykir.
Forsendur söluyfirlits: Söluyfirlit er samið af fasteignasala í samræmi við ákvæði laga nr. 70/2015. Þær upplýsingar sem fram koma í söluyfirliti þessu eru sóttar í opinberar skrár, til seljanda sjálfs og eftir atvikum til húsfélags. Seljandi veitir upplýsingar um eign í samræmi við upplýsingaskyldu laga um fasteignakaup nr. 40/2002. Fasteignasali sannreynir að þær upplýsingar séu réttar með sjónskoðun á eigninni. Fasteignasali getur ekki fullyrt um ástand og eiginleika þeirra hluta fasteigna sem ekki eru aðgengilegir og sjást ekki berum augum, t.d. lagnir, dren, skólp og þak.
SKEIFAN SKILAR ÁRANGRI - SÍÐAN 1985
Skeifan fasteignasala | Suðurlandsbraut 46 | 108 Reykjavík | Opið frá kl. 9-17 mánudaga til föstudaga | www.skeifan.is
Skeifan á Facebook