Upplýsingar
Byggt 2024
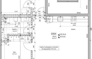
91,5 m²
3 herb.
2 svefnh.
Sameiginl. inngangur
Lyfta
Lýsing
Glæsilegar 2ja, 3ja, 4ra og 5 herbergja íbúðir, í nýju sex hæða lyftufjölbýli við Baughamar 3 í Hamranesinu, Hafnarfirði.
Íbúðirnar skilast fullbúnar með parketi og flísum á gólfi. Baðherbergi og þvottahús verða flísalögð. Hægt er að kaupa sér bílastæði í bílakjallara, verð á því er 4. milljónir.
Aðeins 10% í útborgun - kauptu hlut í íbúðinni, búðu í henni allri.
UTS20 sjóðurinn býður sameignarlausn í sínum verkefnum. Þú leggur fram að lágmarki 10% af kaupverði fasteignar og UTS20 leggur til allt að 20% á móti. Þið kaupið eignina saman, en þú býrð í henni með 100% afnotarétti.
Sjá nánar inná heimasíðu sjóðsins hér.
Stærðir: 73,9 - 190,9 fm
Herbergi: 2ja, 3ja, 4ra og 5 herbergja
Verð: 61,2 - 160 mkr.
Smelltu hér til að skoða sölusíðu verkefnisins og lausar íbúðir.
- Innréttingar frá Nobilia, steinplata á borðum í eldhúsi.
- Innbyggður ísskápur og uppþvottavél.
- Eignirnar skilast með Quick Step 2 harðparketi en flísum á votrýmum.
- Útveggir staðsteyptir, húsið einangrað að utan og klætt með álklæðningu.
- Ál-tré gluggakerfi.
Hamranesið er nýtt og glæsilegt hverfi þar sem stutt er í alla helstu þjónstu, s.s. verslanir, grunn- og leikskóla, útibú tónlistarskóla Hafnarfjarðar, íþróttasvæði Hauka, sundlaugar, líkamsræktarstöðvar, apótek og falleg útivistarsvæði.
Byggingaraðili er traustur verktaki: Skuggi 6 ehf.
Bókið skoðun og fáið nánari upplýsingar hjá sölumönnum Ás fasteignasölu:
Stefán Rafn Sigurmannsson löggiltur fasteignasali s. 655-7000 / stefan@as.is
Arnór Daði Eiríksson aðsoðarmaður fasteignasala s. 777-0939 / arnor@as.is
Svala Haraldsdóttir löggiltur fasteignasali s. 820-9699 / svala@as.is
Aron Freyr Eiríksson löggiltur fasteignasali s. 772-7376 / aron@as.is
Eiríkur Svanur Sigfússon löggiltur fasteignasali í s. 862-3377 / eirikur@as.is
Frábær staðsetning þar sem stutt er í helstu þjónustu og falleg útivistarsvæði.
Ás fasteignasala er rótgróið fyrirtæki sem hefur veitt alla almenna þjónustu í fasteignaviðskiptum frá árinu 1988.
www.facebook.com/asfasteignasala
www.instagram.com/as_fasteignasala
www.as.is
Íbúðirnar skilast fullbúnar með parketi og flísum á gólfi. Baðherbergi og þvottahús verða flísalögð. Hægt er að kaupa sér bílastæði í bílakjallara, verð á því er 4. milljónir.
Aðeins 10% í útborgun - kauptu hlut í íbúðinni, búðu í henni allri.
UTS20 sjóðurinn býður sameignarlausn í sínum verkefnum. Þú leggur fram að lágmarki 10% af kaupverði fasteignar og UTS20 leggur til allt að 20% á móti. Þið kaupið eignina saman, en þú býrð í henni með 100% afnotarétti.
Sjá nánar inná heimasíðu sjóðsins hér.
Stærðir: 73,9 - 190,9 fm
Herbergi: 2ja, 3ja, 4ra og 5 herbergja
Verð: 61,2 - 160 mkr.
Smelltu hér til að skoða sölusíðu verkefnisins og lausar íbúðir.
- Innréttingar frá Nobilia, steinplata á borðum í eldhúsi.
- Innbyggður ísskápur og uppþvottavél.
- Eignirnar skilast með Quick Step 2 harðparketi en flísum á votrýmum.
- Útveggir staðsteyptir, húsið einangrað að utan og klætt með álklæðningu.
- Ál-tré gluggakerfi.
Hamranesið er nýtt og glæsilegt hverfi þar sem stutt er í alla helstu þjónstu, s.s. verslanir, grunn- og leikskóla, útibú tónlistarskóla Hafnarfjarðar, íþróttasvæði Hauka, sundlaugar, líkamsræktarstöðvar, apótek og falleg útivistarsvæði.
Byggingaraðili er traustur verktaki: Skuggi 6 ehf.
Bókið skoðun og fáið nánari upplýsingar hjá sölumönnum Ás fasteignasölu:
Stefán Rafn Sigurmannsson löggiltur fasteignasali s. 655-7000 / stefan@as.is
Arnór Daði Eiríksson aðsoðarmaður fasteignasala s. 777-0939 / arnor@as.is
Svala Haraldsdóttir löggiltur fasteignasali s. 820-9699 / svala@as.is
Aron Freyr Eiríksson löggiltur fasteignasali s. 772-7376 / aron@as.is
Eiríkur Svanur Sigfússon löggiltur fasteignasali í s. 862-3377 / eirikur@as.is
Frábær staðsetning þar sem stutt er í helstu þjónustu og falleg útivistarsvæði.
Ás fasteignasala er rótgróið fyrirtæki sem hefur veitt alla almenna þjónustu í fasteignaviðskiptum frá árinu 1988.
www.facebook.com/asfasteignasala
www.instagram.com/as_fasteignasala
www.as.is