Löggiltir fasteignasalar innan Félags fasteignasala:
Sverrir Kristinsson
Kjartan Hallgeirsson
Guðlaugur Ingi Guðlaugsson
Daði Hafþórsson
Gunnar Helgi Einarsson
Gunnar Bergmann Jónsson
Jenný Sandra Gunnarsdóttir
Vista
fjölbýlishús

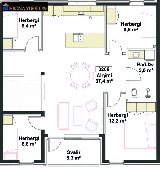
Eskiás 7 - íbúð 208

210 Garðabær

96.900.000 kr.

968.032 þ.kr./m2
Fasteignanúmer

F2512844

Fasteignamat

20.150.000 kr.

Brunabótamat

0 kr.

Áhvílandi

0 kr.

Arion banki – Reikna lán
Upplýsingar
svg
Byggt 2026
svg
100,1 m²
svg
5 herb.
svg
1 baðherb.
svg
4 svefnh.
svg
Sérinngangur

Lýsing

Eignamiðlun kynnir:

Íbúð 02-08 er 100.1 fm með 4 svefnherbergjum, baðherbergi með þvottaaðstöðu ásamt svölum og sérgeymslu innan íbúðar. 

Hafðu samband og bókaðu skoðun: 
Oddný María Kristinsdóttir - Löggiltur fasteignasali - sími 777-3711 eða oddny@eignamidlun.is

Fallegar íbúðir í nýju fjölbýli á góðum stað í Garðabæ.
Allar íbúðirnar eru með sérinngangi, vönduðum innréttingum og sérgeymslu innan íbúðar.
Afhending er áætluð í júní 2026.

Frágangur:
-     Íbúðirnar afhendast fullfrágengnar fyrir utan megingólfefni en flísar á baðherbergjum/þvottahúsi.
-     Innréttingar í eldhúsi verða af vandaðri gerð frá NOBILIA og fataskápar frá Trésmiðju GKS.
-     Eldhústæki verða; blástursofn, spanhelluborð og innbyggður ísskápur frá Whirlpool sem þjónustað er af Heimilistækjum.
-     Baðherbergi/þvottahús eru forframleidd og hífð inn í hús samhliða uppsteypu húsanna. Söluaðili baðherbergjanna er Wilbergs/Bitter ehf. (Parki) og eru þau hönnuð af Boxen samkvæmt norskum stöðlum. Mikið er lagt upp úr vönduðum frágang og er allt efni og búnaður af þekktri og viðurkenndri gerð.  
-    Öll hreinlætistæki eru af vandaðri gerð frá Grohe.
-    Ljósleiðarar frá OR og Mílu eru í hverri íbúð.
-    Rafbílahleðslukerfi verður fyrir hendi. 

Skoða heimasíðu verkefnis

Nánari upplýsingar veita fasteignasalar Eignamiðlunar:
Oddný María Kristinsdóttir 777-3711 | oddny@eignamidlun.is
Gunnar Bergmann Jónsson 839-1600 | gunnarbergmann@eignamidlun.is
Kári Sighvatsson 899-8815 | kari@eignamidlun.is
Alfreð B. Valencia 776-2150 | alfred@eignamidlun.is 
Lilja Guðmundsdóttir 649-3868 | lilja@eignamidlun.is

***
Ábyrg þjónusta í áratugi. Eignamiðlun var stofnuð 1957 og er elsta starfandi fasteignasala á Íslandi. Reynsla, heiðarleiki og þekking á fasteignamarkaðnum eru grunnur að farsælum viðskiptum. 

Eignamiðlun Grensásvegi 11, 108 Reykjavík - Opið frá kl. 9-17 mánudaga til fimmtudaga og 9-16 á föstudögum.

Heimasíða Eignamiðlunar

Eignamiðlun á Facebook

Eignamiðlun

Eignamiðlun

Grensásvegi 11, 108 Reykjavík
Eignamiðlun

Eignamiðlun

Grensásvegi 11, 108 Reykjavík