Löggiltir fasteignasalar innan Félags fasteignasala:
Hannes Steindórsson
Bogi Molby Pétursson
Guðrún Antonsdóttir
Heimir Hallgrímsson
Hrafnkell P. H. Pálmason
Viðar Marinósson
Elías Haraldsson
Kristján Þórir Hauksson
Albert Bjarni Úlfarsson
Ragnar Þorsteinsson
Þórey Ólafsdóttir
Andri Freyr Halldórsson
Upplýsingar
Byggt 2004
225,5 m²
6 herb.
3 baðherb.
4 svefnh.
Þvottahús
Opið hús: 20. apríl 2026
kl. 17:00
til 17:20
Opið hús að Gunnarssundi 4 í Hafnarfirði kl 17:00 á mánudaginn
Lýsing
LIND fasteignasala og Þórey Ólafsdóttir, löggiltur fasteignasali, kynna í einkasölu Gunnarssund 4 – einstaklega fallegt, sjarmerandi og vel skipulagt einbýlishús á þremur hæðum með aukaíbúð í kjallara á eftirsóttum stað við Austurgötu í hjarta Hafnarfjarðar. Stutt er í alla helstu þjónustu, skóla, samgöngur og fjölbreytt mannlíf.
Húsið er byggt árið 2004 og hannað með það að markmiði að falla vel inn í umhverfi gamla bæjarins. Um er að ræða bjarta og fjölskylduvæna eign með góðri lofthæð á efri hæð, fallegu alrými og skemmtilegum útisvæðum. Séríbúð í kjallara býður upp á möguleika til útleigu eða sem hluta af heimili.
Birt stærð eignarinnar er 225,5 fm samkvæmt Þjóðskrá Íslands.
Eignin er vel skipulögð og skiptist á þrjár hæðir með góðu flæði milli rýma og fjölbreyttum nýtingarmöguleikum. Á aðalhæð er forstofa, tvö svefnherbergi, vinnuherbergi, baðherbergi og gestasalerni, þvottahús og geymsla / fataherbergi. Á efri hæð er bjart og opið alrými með eldhúsi, stofu og borðstofu, auk útgengis á stórar yfirbyggðar svalir. Í kjallara er séríbúð með sérinngangi, forstofu, stofu og eldhúsi í opnu rými, svefnherbergi, baðherbergi, geymslum og útgengi í garð.
SMELLTU HÉR TIL AÐ FÁ SENT SÖLUYFIRLIT - Nánari upplýsingar veitir Þórey Ólafsdóttir, löggiltur fasteignasali, í síma 663 2300 eða thorey@fastlind.is
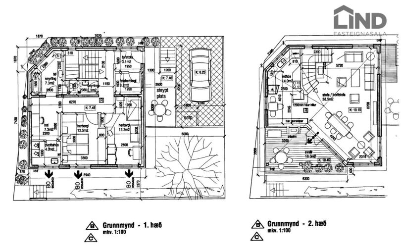
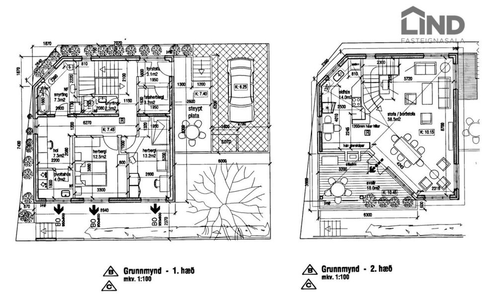
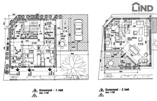
Nánari lýsing aðalhæð (77,7 fm)
Forstofa, rúmgóð með fataskáp, flísar á gólfi.
Geymsla/fataherbergi innaf forstofu, flísar á gólfi.
Gestasnyrting með upphengdu salerni og innréttingu, flísalagt í hólf og gólf með gólfhita.
Hjónaherbergi með fataskápum og opnum hillum, parket á gólfi.
Svefnherbergi, rúmgott með fataskáp, parket á gólfi.
Baðherbergi með góðri innréttingu, baðkari og sér hlaðinni sturtu, upphengt salerni, flísalagt í hólf og gólf með gólfhita.
Hol með góðri vinnuaðstöðu, flísar á gólfi.
Þvottahús með innréttingu og góðu skápaplássi, flísar á gólfi og veggjum að hluta.
Nánari lýsing efri hæð (64,7 fm)
Stofa og borðstofa í björtu og opnu rými með stórum gluggum og mikilli lofthæð, parket á gólfi og útgengi á svalir til suðvesturs.
Eldhús með ljósri innréttingu, tengi fyrir uppþvottavél og stór Smeg eldavél, mikið skápapláss og góð vinnuaðstöðu, parket á gólfi.
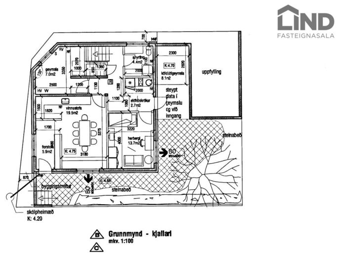
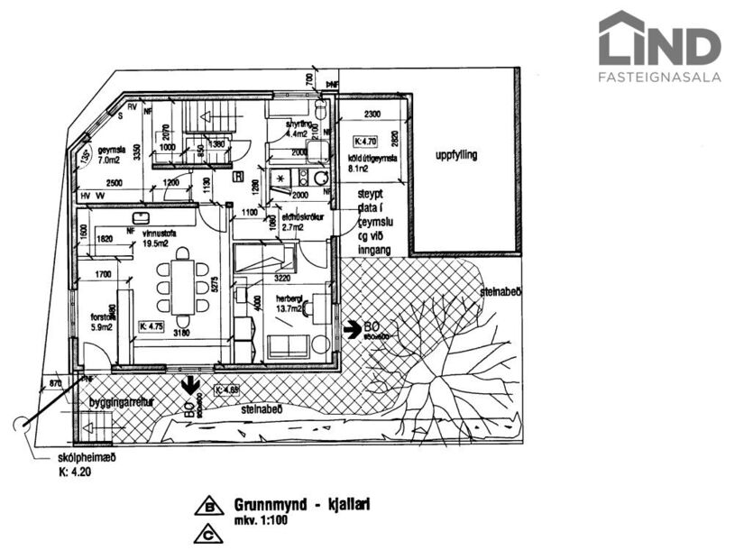
Nánari lýsing jarðhæð (83,1 fm) - sérinngangur neðan frá lóð ásamt innangengi frá efri hæðum.
Forstofa/hol með fataskáp, flísar á gólfi.
Stofa og eldhús í opnu rými, bjart og vel skipulagt, flísar á gólfi.
Svefnherbergi rúmgott með fataskáp, parket á gólfi.
Baðherbergi með sturtu, upphengdu salerni og handklæðaofni, flísalagt í hólf og gólf.
Geymsla, rúmgóð með glugga, möguleiki á að útbúa svefnherbergi.
Geymsla II lítil við stigann.
Yfirbyggt forrými með útgengi í skjólgóðan garð með hellulagðri verönd. Útigeymsla innaf forrými, ekki skráð í fermetratölu.
Nánari upplýsingar veitir Þórey Ólafsdóttir, löggiltur fasteignasali / B.Sc. í viðskiptafræði í síma 663 2300 eða gegnum thorey@fastlind.is
Á heimasíðunni minni www.thorey.is má skoða umsagnir ánægðra viðskiptavina og kynna sér þjónustuna mína.
Allir kaupendur okkar fá Vildarkort Lindar. Með því að framvísa kortinu færð þú 30% afslátt hjá samstarfsaðilum: Húsgagnahöllin, S. Helgason, Flugger litir, Húsasmiðjan, Z brautir og gluggatjöld, Vídd, Parki, Betra bak, Dorma og Sýn.
Húsið er byggt árið 2004 og hannað með það að markmiði að falla vel inn í umhverfi gamla bæjarins. Um er að ræða bjarta og fjölskylduvæna eign með góðri lofthæð á efri hæð, fallegu alrými og skemmtilegum útisvæðum. Séríbúð í kjallara býður upp á möguleika til útleigu eða sem hluta af heimili.
Birt stærð eignarinnar er 225,5 fm samkvæmt Þjóðskrá Íslands.
Eignin er vel skipulögð og skiptist á þrjár hæðir með góðu flæði milli rýma og fjölbreyttum nýtingarmöguleikum. Á aðalhæð er forstofa, tvö svefnherbergi, vinnuherbergi, baðherbergi og gestasalerni, þvottahús og geymsla / fataherbergi. Á efri hæð er bjart og opið alrými með eldhúsi, stofu og borðstofu, auk útgengis á stórar yfirbyggðar svalir. Í kjallara er séríbúð með sérinngangi, forstofu, stofu og eldhúsi í opnu rými, svefnherbergi, baðherbergi, geymslum og útgengi í garð.
SMELLTU HÉR TIL AÐ FÁ SENT SÖLUYFIRLIT - Nánari upplýsingar veitir Þórey Ólafsdóttir, löggiltur fasteignasali, í síma 663 2300 eða thorey@fastlind.is
Nánari lýsing aðalhæð (77,7 fm)
Forstofa, rúmgóð með fataskáp, flísar á gólfi.
Geymsla/fataherbergi innaf forstofu, flísar á gólfi.
Gestasnyrting með upphengdu salerni og innréttingu, flísalagt í hólf og gólf með gólfhita.
Hjónaherbergi með fataskápum og opnum hillum, parket á gólfi.
Svefnherbergi, rúmgott með fataskáp, parket á gólfi.
Baðherbergi með góðri innréttingu, baðkari og sér hlaðinni sturtu, upphengt salerni, flísalagt í hólf og gólf með gólfhita.
Hol með góðri vinnuaðstöðu, flísar á gólfi.
Þvottahús með innréttingu og góðu skápaplássi, flísar á gólfi og veggjum að hluta.
Nánari lýsing efri hæð (64,7 fm)
Stofa og borðstofa í björtu og opnu rými með stórum gluggum og mikilli lofthæð, parket á gólfi og útgengi á svalir til suðvesturs.
Eldhús með ljósri innréttingu, tengi fyrir uppþvottavél og stór Smeg eldavél, mikið skápapláss og góð vinnuaðstöðu, parket á gólfi.
Nánari lýsing jarðhæð (83,1 fm) - sérinngangur neðan frá lóð ásamt innangengi frá efri hæðum.
Forstofa/hol með fataskáp, flísar á gólfi.
Stofa og eldhús í opnu rými, bjart og vel skipulagt, flísar á gólfi.
Svefnherbergi rúmgott með fataskáp, parket á gólfi.
Baðherbergi með sturtu, upphengdu salerni og handklæðaofni, flísalagt í hólf og gólf.
Geymsla, rúmgóð með glugga, möguleiki á að útbúa svefnherbergi.
Geymsla II lítil við stigann.
Yfirbyggt forrými með útgengi í skjólgóðan garð með hellulagðri verönd. Útigeymsla innaf forrými, ekki skráð í fermetratölu.
Nánari upplýsingar veitir Þórey Ólafsdóttir, löggiltur fasteignasali / B.Sc. í viðskiptafræði í síma 663 2300 eða gegnum thorey@fastlind.is
Á heimasíðunni minni www.thorey.is má skoða umsagnir ánægðra viðskiptavina og kynna sér þjónustuna mína.
Allir kaupendur okkar fá Vildarkort Lindar. Með því að framvísa kortinu færð þú 30% afslátt hjá samstarfsaðilum: Húsgagnahöllin, S. Helgason, Flugger litir, Húsasmiðjan, Z brautir og gluggatjöld, Vídd, Parki, Betra bak, Dorma og Sýn.