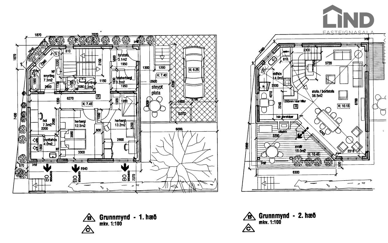
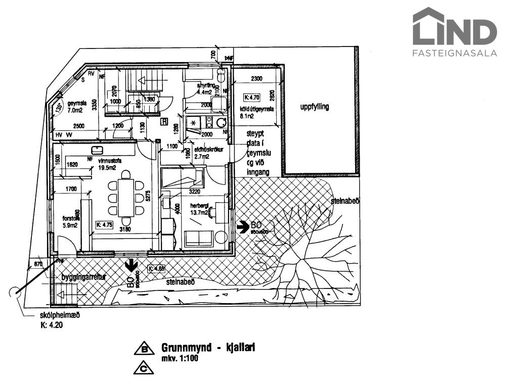
Gunnarssund, 220 Hafnarfjörður