Upplýsingar
121,4 m²
3 herb.
1 baðherb.
3 svefnh.
Þvottahús
Bílskúr
Sérinngangur
Lýsing
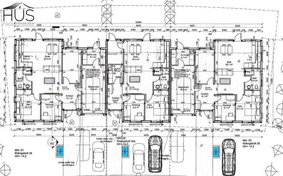
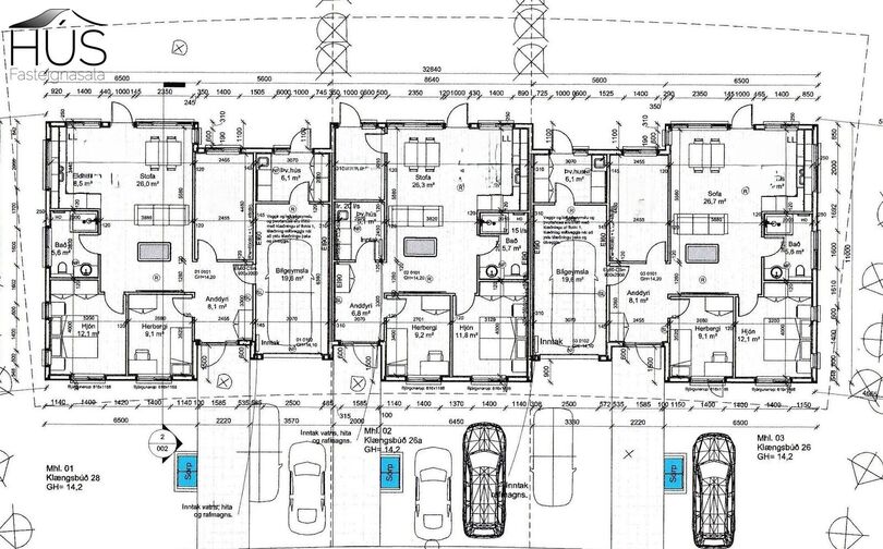
Steindór Guðmundsson löggiltur fasteignasali 862 1996 og HÚS fasteignasala kynna í einkasölu nýtt, vandað endaraðhús að Klængsbúð 32, Þorlákshöfn. Eignin er í byggingu og afhendist fullbúið í samræmi við skilalýsingu vorið 2026. Eignin er alls 121,4 fm þar af sambyggður bílskúr 22,2 fm. Steypt bílaplan með skilveggjum með innfeldri lýsingu.
Traustur byggingaraðili með áratuga reynslu. Húsið er staðsett örstutt frá skóla-, leikskóla og íþróttasvæði.
Innra skipulag.
Rúmgóð forstofa með góðum skáp. Úr forstofu er innangengt í bílskúr.
Þrjú rúmgóð svefnherbergi, öll með skápum. (herbergi innaf forstofu er skráð geymsla skv. teikningu er 11,0 fm með glugga.)
Frekar stór og björt stofa þaðan sem utangengt er í garðinn og svo fallegt eldhús með innrétting með vönduðum tækjum, innfeld uppþvottavél og ísskápur.
Baðherbergi með opinni sturtu með sturtugleri, upphengdu salerni og innréttingu. Opnanlegt fag er á baðherbergi en jafnframt er vélrænt útsog.
Mjög rúmgott þvottahús er inn af bílskúr. Góðir búrskápar verða á einum vegg og innrétting undir þvottavél og þurrkara á öðrum vegg. Flísar á gólfi. Utangengt er úr þvottahúsinu.
Bílskúr með epoxy á gólfi og flekahurð.
Gólfefni harðparket og flísar á votrýmum. Hvítar yfirfeldar innihurðir. Gifs í loftum og innfeld lýsing. Gólfhitalagnir með stýringum.
Húsið er byggt úr timbri árið 2025. Að utan er húsið klætt með bronslituðu liggjandi báruáli. Gluggar, hurðir og þakkantur eru svartir. Bárujárn er á þaki. Útihurðir og gluggar eru Rational frá Húsasmiðjunni.
Bílaplan er steypt. Skilveggir á milli eigna uppsettir bæði að framan og aftanverðu. Lýsing undir þakkanti og skilveggjum að framanverðu. Lóðin er þökulögð. Búið er að jarðvegsskipta fyrir palli.
Nánari upplýsingar veitir Steindór Guðmundsson löggiltur fasteignasali s. 862 1996 steindor@husfasteign.is
,,Okkar fagmennska eru þínir hagsmunir"
Gjöld sem kaupandi þarf að standa straum að vegna kaupanna.
1. Stimpilgjöld af kaupsamningi - 0,8 % af heildarfasteignamati. (0,4% fyrstu kaup, 1,6% lögaðilar)
2. Þinglýsingargjald af kaupsamningi, veðskuldabréfi, mögulegu veðleyfi o.fl. kr. 3.800 af hverju skjali.
3. Lántökugjald lánastofnunnar, breytilegt. Nánari upplýsingar t.d. á heimasíðum lánastofnanna.
4. Umsýslugjald til fasteignasölu sbr. kauptilboð.
5. Skipulagsgjald og inntaksgjöld skv. gjaldskrá.
Traustur byggingaraðili með áratuga reynslu. Húsið er staðsett örstutt frá skóla-, leikskóla og íþróttasvæði.
Innra skipulag.
Rúmgóð forstofa með góðum skáp. Úr forstofu er innangengt í bílskúr.
Þrjú rúmgóð svefnherbergi, öll með skápum. (herbergi innaf forstofu er skráð geymsla skv. teikningu er 11,0 fm með glugga.)
Frekar stór og björt stofa þaðan sem utangengt er í garðinn og svo fallegt eldhús með innrétting með vönduðum tækjum, innfeld uppþvottavél og ísskápur.
Baðherbergi með opinni sturtu með sturtugleri, upphengdu salerni og innréttingu. Opnanlegt fag er á baðherbergi en jafnframt er vélrænt útsog.
Mjög rúmgott þvottahús er inn af bílskúr. Góðir búrskápar verða á einum vegg og innrétting undir þvottavél og þurrkara á öðrum vegg. Flísar á gólfi. Utangengt er úr þvottahúsinu.
Bílskúr með epoxy á gólfi og flekahurð.
Gólfefni harðparket og flísar á votrýmum. Hvítar yfirfeldar innihurðir. Gifs í loftum og innfeld lýsing. Gólfhitalagnir með stýringum.
Húsið er byggt úr timbri árið 2025. Að utan er húsið klætt með bronslituðu liggjandi báruáli. Gluggar, hurðir og þakkantur eru svartir. Bárujárn er á þaki. Útihurðir og gluggar eru Rational frá Húsasmiðjunni.
Bílaplan er steypt. Skilveggir á milli eigna uppsettir bæði að framan og aftanverðu. Lýsing undir þakkanti og skilveggjum að framanverðu. Lóðin er þökulögð. Búið er að jarðvegsskipta fyrir palli.
Nánari upplýsingar veitir Steindór Guðmundsson löggiltur fasteignasali s. 862 1996 steindor@husfasteign.is
,,Okkar fagmennska eru þínir hagsmunir"
Gjöld sem kaupandi þarf að standa straum að vegna kaupanna.
1. Stimpilgjöld af kaupsamningi - 0,8 % af heildarfasteignamati. (0,4% fyrstu kaup, 1,6% lögaðilar)
2. Þinglýsingargjald af kaupsamningi, veðskuldabréfi, mögulegu veðleyfi o.fl. kr. 3.800 af hverju skjali.
3. Lántökugjald lánastofnunnar, breytilegt. Nánari upplýsingar t.d. á heimasíðum lánastofnanna.
4. Umsýslugjald til fasteignasölu sbr. kauptilboð.
5. Skipulagsgjald og inntaksgjöld skv. gjaldskrá.