Löggiltir fasteignasalar innan Félags fasteignasala:
Halla Unnur Helgadóttir
Elín Urður Hrafnberg
Guðmunda Björnsdóttir Stackhouse
Herdís Valb. Hölludóttir
Ingibjörg Reynisdóttir
Ellert Bragi Sigurþórsson
Daði Runólfsson
Vista
svg

382

svg

686  Skoðendur

svg

Skráð  12. jan. 2026

einbýlishús

Ólafsgeisli 101

113 Reykjavík

169.500.000 kr.

728.719 þ.kr./m2
Fasteignanúmer

F2256510

Fasteignamat

162.050.000 kr.

Brunabótamat

118.400.000 kr.

Áhvílandi

0 kr.

Arion banki – Reikna lán
Upplýsingar
Verðsaga
svg
Byggt 2001
svg
232,6 m²
svg
5 herb.
svg
2 baðherb.
svg
4 svefnh.
svg
Þvottahús
svg
Bílskúr
svg
Útsýni
svg
Sérinngangur
Opið hús: 15. janúar 2026 kl. 17:00 til 17:30

Opið hús: Ólafsgeisli 101, 113 Reykjavík. Eignin verður sýnd fimmtudaginn 15. janúar 2026 milli kl. 17:00 og kl. 17:30.

Lýsing

Gimli og Inga Reynis kynna fallegt, rúmgott fjölskylduvænt einbýlishús með 4 svefnherbergjum og tveim baðherbergjum ásamt gufu
á glæsilegum útsýnisstað  í Grafarholti. Húsið er glæsilegt og vel skipulegt, möguleikar að bæta við svefnherbergjum ásamt auka eru 45 fm sem eru óskráðir.
Stór garður með pöllum, heitum pott og yfirbyggðri verönd, tvöfaldur innbyggður bílskúr ásamt stóru upphituðu bílplani.
Sjón er sögu ríkari , hægt er að bóka einkaskoðun.

Myndband af eigninni má sjá hér með að smella á linkinn.

Nánari upplýsingar veitir: Inga Reynis löggiltur fasteignasali í síma 820-1903 eða ánetfanginu inga@gimli.is.

Eignin er skráð samkvæmt Þjóðskrá Íslands 232,6 fm þar af er bílskúrinn 49,7 fm. Óskráðir fermetrar eru 45.
Fasteignamat 2026 er 162.050.000 mkr. Húsið er byggt 2001.


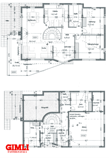
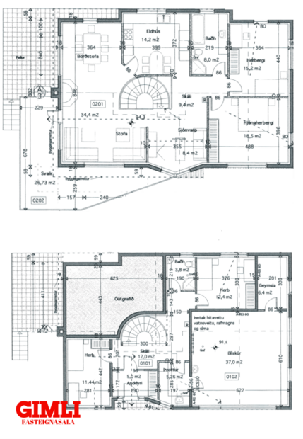
Eignin skiptist í anddyri, rúmgóða stofu, opið sjónvarpsrými og eldhúsi, 4 svefnherbergi, 2 baðherbergi, þvottahús og geymslu. Auk þess eru 45 óskráðir fm, þar sem búið er að koma fyrir geymslu, búri, vinnuherbergi, gufu og sturtu og tvöfaldur innbyggður bílskúr.

NÁNARI LÝSING: 
Efri hæð:
Stofa er rúmgóð og björt í sameiginlegu rými með borðstofu. Marmari á gólfi. Útgengt úr stofu út á yfirbyggða verönd.
Eldhús er opið með stofunni. Innrétting með góðu skápaplássi, eldhústækjum, granít á borðum. Marmari á gólfi. 
Hjónaherbergi er rúmgott með góðum fataskápum. Parket á gólfi.
Barnaherbergi er rúmgott með fataskáp og parket á gólfi. 
Baðherbergi er með fallegri innréttingu, sturtu og baðkari, gluggi er á baðherberginu og er það flísalagt í hólf og gólf. 

Neðri hæð:
Forstofa er rúmgóð með góðum skápum og marmari á gólfi. 
Svefnherbergi rúmgott með fataskáp og parket á gólfi. 
Baðherbergi er með glugga, handlaug, salerni og sturtuklefa. Flísar á gólfi og veggjum. 
Þvottahúsið er snyrtilegt með vaski og borði. Tengi fyrir þvottavél og þurrkara, flísar á gólfi og veggjum. 
Einnig er 45 fm rými með gufu, vinnuherbergi, búri, geymslu og svefnherbergi.
Fallegur stigi á efri hæðina með marmara á gólfi og fallegu handriði.

Garðurinn er gróinn og hellulagður með yfirbyggðri verönd. Glæsileg aðkoma að húsinu og næg bílastæði.
Bílskúr er innangengur frá þvottahúsinu í snyrtilegan bílskúr,  hellulagt plan er fyrir framan hann sem er upphitað.


Mjög eftirsótt staðsetning í göngufæri við Golfvöllinn í Grafarholti, Ingunnarskóla, leikskóla og á frisbí golfvöll.
Fallegar gönguleiðir og ósnortin náttúra allt um kring. 

Nánari upplýsingar veitir: Inga Reynis löggiltur fasteignasali í síma 820-1903 eða á inga@gimli.is eða gimli@gimli.is

Gimli fasteignasala leggur áherslu á traust, áreiðanleika og góða þjónustu.

Það er okkar trú að það skipti öllu máli í fasteignaviðskiptum að viðskiptavinurinn fái trausta og góða þjónustu. Við hjá Gimli höfum stundað fasteignaviðskipti með farsælum hætti í meira en fjóra áratugi. Hjá okkur starfa sérhæfðir og reyndir fasteignasalar sem sinna stórum sem smáum verkefnum af nákvæmni og þekkingu sem skilar árangri.

Hvar erum við?
Gimli Fasteignasala er staðsett á jarðhæð í Skipholti 35 í Reykjavík en einnig rekum við söluskrifstofu að Eyrarvegi 29. 2 hæð á Selfossi.

Við höfum opið frá 10-15 mánudaga til föstudaga. Sláðu á þráðinn eða líttu við hjá okkur í Skipholtinu næst þegar þú átt leið hjá. Við erum alltaf með heitt á könnunni.

Gimli gerir betur...

img
Ingibjörg Reynisdóttir
Lögg.fasteignasali innan félags fasteignasala
Gimli fasteignasala
Skipholt 35, 105 Reykjavík
Gimli fasteignasala

Gimli fasteignasala

Skipholt 35, 105 Reykjavík
phone
img

Ingibjörg Reynisdóttir

Skipholt 35, 105 Reykjavík
Ár
Fasteignamat
Kaupverð
Stærð
Fermetraverð
28. nóv. 2014
58.500.000 kr.
62.000.000 kr.
232.6 m²
266.552 kr.
23. mar. 2007
46.730.000 kr.
66.000.000 kr.
232.6 m²
283.749 kr.
Byggt á upplýsingum úr Þjóðskrá Íslands frá 2006-2026
Gimli fasteignasala

Gimli fasteignasala

Skipholt 35, 105 Reykjavík
phone

Ingibjörg Reynisdóttir

Skipholt 35, 105 Reykjavík