Upplýsingar
Verðsaga
Byggt 2020
100,3 m²
3 herb.
1 baðherb.
2 svefnh.
Þvottahús
Sameiginl. inngangur
Bílastæði
Lyfta
Lýsing
Fasteignasalan TORG kynnir: LÆKKAÐ VERÐ: Falleg og vel skipulögð 3ja herbergja enda-íbúð með suðursvölum ásamt stæði í bílageymslu með rafhleðslu. Íbúðin er á fyrstu hæð í nýlegu lyftufjölbýli og er skráð 90,7 fm og skiptist í anddyri, alrými með eldhúsi með eyju og stofu með útgengi út á svalir, tvö svefnherbergi, baðherbergi, þvottaherbergi og sér geymslu í sameign sem er 9,6fm. Sameiginleg hjólageymsla á hæðinni með sér inngangi og sérstöku aukaöryggi auk þess sem önnur hjólageymsla er fyrir utan húsið. Allar nánari upplýsingar veitir Jóhanna Kristín Tómasdóttir, löggiltur fasteignasali, í síma 8378889 eða hjá johanna@fstorg.is
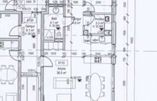
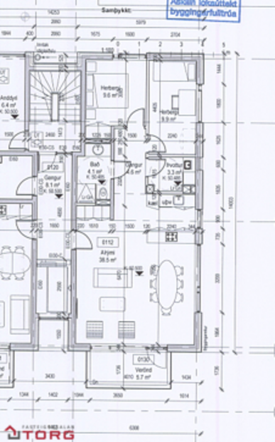
Nánari lýsing: Efstaleiti 11 í nýja Efstaleitisreitnum frá 2020, byggður í gamalgrónu hverfi þaðan sem stutt er í alla þjónustu, svo sem Kringluna, heilsugæslu og skóla. Í reitnum sjálfum eru einnig apótek, veitingahús og hárgreiðslustofa svo eitthvað sé nefnt. Reiturinn er sérlega vel skipulagður með misháum og mislitum húsum og fallegur, skjólsæll garður með leiktækjum og reiðhjólaskýlum. Við hönnun íbúðahverfisins var unnið markvisst með stöllun húsa í hæð, formi og mótun lands svo úr verður ásýnd stakstæðra húsa með skemmtilegum þakgörðum og svölum.
Forstofa/stofa/eldhús: Komið er inn í opið, bjart rými. Þrefaldur fataskápur við innganginn og í eldhúsinu er innrétting með áfastri eyju og gólfsíðum glugga. Stofan er afar rúmgóð með gólfsíðum gluggum og útgengi út á suðursvalir.
Baðherbergi: Með sturtu og innréttingu við vask. Flísar á tveimur veggjum og gólfi.
Svefnherbergi 1: Með góðum skápum.
Svefnherbergi 2: Með tvöföldum skáp.
Þvottaherbergi: Með skáp, stálvask, glugga og flísum á gólfi.
Gólfefni: Harðparket á ölllum rýmum nema á baðherbergi og í þvottahúsi.
Sérgeymsla: Í sameign í kjallara, skráð 9,6 fm.
Sameign: Í sameign á hæðinni er vagna- og hjólageymsla með sérinngangi og er þar auka öryggi til að festa hjól. Þá er hjólageymsla einnig austan við húsið sem og inn í garðinum. Garðurinn er sérlega huggulegur, sérstaklega á sumrin þegar börn eru að leik og veitingahúsið býður upp á veitingar utandyra.
Virkilega falleg 3ja herbergja íbúð á frábærum og afar vinsælum stað miðsvæðis í Reykjavík. Allar nánari upplýsingar veitir Jóhanna Kristín Tómasdóttir, löggiltur fasteignasali, í síma 837-8889 eða hjá johanna@fstorg.is
Gjöld sem kaupandi þarf að standa straum af vegna kaupa á fasteign:
1. Stimpilgjald af fasteignamati fasteignar er 0.8%, en 0,4% fyrir fyrstu kaup og 1,6% fyrir lögaðila.
2. Þinglýsingargjald: kaupsamningi, skuldabréfi, veðleyfi, afsali o.s.frv. er kr. 2.700 af hverju skjali.
3. Lántökukostnaður samkvæmt verðskrá viðkomandi lánastofnunar.
4. Umsýslugjald til fasteignasölu skv. gjaldskrá.
Skoðunarskylda kaupanda:
Í lögum um fasteignakaup nr. 40/2002 er kveðið á um ríka skoðunarskyldu kaupenda á fasteignum. Fasteignasala bendir væntanlegum kaupendum á að kynna sér vel ástand fasteigna við skoðun og fyrir tilboðsgerð og ef þurfa þykir að leita til sérfræðinga um nánari
ástandsskoðun.
Forsendur söluyfirlits:
Söluyfirlit er samið af fasteignasala í samræmi við ákvæði laga nr. 70/2015. Þær upplýsingar sem fram koma í söluyfirliti þessu eru sóttar í opinberar skrár, til seljanda sjálfs og eftir atvikum til húsfélags. Seljandi veitir upplýsingar um eign í samræmi við upplýsingaskyldu laga um fasteignakaup nr. 40/2002. Fasteignasali sannreynir að þær upplýsingar séu réttar með sjónskoðun á eigninni.
Fasteignasali getur ekki fullyrt um ástand og eiginleika þeirra hluta fasteigna sem ekki eru aðgengilegir og sjást ekki berum augum, t.d. lagnir, dren, skólp og þak.
Nánari lýsing: Efstaleiti 11 í nýja Efstaleitisreitnum frá 2020, byggður í gamalgrónu hverfi þaðan sem stutt er í alla þjónustu, svo sem Kringluna, heilsugæslu og skóla. Í reitnum sjálfum eru einnig apótek, veitingahús og hárgreiðslustofa svo eitthvað sé nefnt. Reiturinn er sérlega vel skipulagður með misháum og mislitum húsum og fallegur, skjólsæll garður með leiktækjum og reiðhjólaskýlum. Við hönnun íbúðahverfisins var unnið markvisst með stöllun húsa í hæð, formi og mótun lands svo úr verður ásýnd stakstæðra húsa með skemmtilegum þakgörðum og svölum.
Forstofa/stofa/eldhús: Komið er inn í opið, bjart rými. Þrefaldur fataskápur við innganginn og í eldhúsinu er innrétting með áfastri eyju og gólfsíðum glugga. Stofan er afar rúmgóð með gólfsíðum gluggum og útgengi út á suðursvalir.
Baðherbergi: Með sturtu og innréttingu við vask. Flísar á tveimur veggjum og gólfi.
Svefnherbergi 1: Með góðum skápum.
Svefnherbergi 2: Með tvöföldum skáp.
Þvottaherbergi: Með skáp, stálvask, glugga og flísum á gólfi.
Gólfefni: Harðparket á ölllum rýmum nema á baðherbergi og í þvottahúsi.
Sérgeymsla: Í sameign í kjallara, skráð 9,6 fm.
Sameign: Í sameign á hæðinni er vagna- og hjólageymsla með sérinngangi og er þar auka öryggi til að festa hjól. Þá er hjólageymsla einnig austan við húsið sem og inn í garðinum. Garðurinn er sérlega huggulegur, sérstaklega á sumrin þegar börn eru að leik og veitingahúsið býður upp á veitingar utandyra.
Virkilega falleg 3ja herbergja íbúð á frábærum og afar vinsælum stað miðsvæðis í Reykjavík. Allar nánari upplýsingar veitir Jóhanna Kristín Tómasdóttir, löggiltur fasteignasali, í síma 837-8889 eða hjá johanna@fstorg.is
Gjöld sem kaupandi þarf að standa straum af vegna kaupa á fasteign:
1. Stimpilgjald af fasteignamati fasteignar er 0.8%, en 0,4% fyrir fyrstu kaup og 1,6% fyrir lögaðila.
2. Þinglýsingargjald: kaupsamningi, skuldabréfi, veðleyfi, afsali o.s.frv. er kr. 2.700 af hverju skjali.
3. Lántökukostnaður samkvæmt verðskrá viðkomandi lánastofnunar.
4. Umsýslugjald til fasteignasölu skv. gjaldskrá.
Skoðunarskylda kaupanda:
Í lögum um fasteignakaup nr. 40/2002 er kveðið á um ríka skoðunarskyldu kaupenda á fasteignum. Fasteignasala bendir væntanlegum kaupendum á að kynna sér vel ástand fasteigna við skoðun og fyrir tilboðsgerð og ef þurfa þykir að leita til sérfræðinga um nánari
ástandsskoðun.
Forsendur söluyfirlits:
Söluyfirlit er samið af fasteignasala í samræmi við ákvæði laga nr. 70/2015. Þær upplýsingar sem fram koma í söluyfirliti þessu eru sóttar í opinberar skrár, til seljanda sjálfs og eftir atvikum til húsfélags. Seljandi veitir upplýsingar um eign í samræmi við upplýsingaskyldu laga um fasteignakaup nr. 40/2002. Fasteignasali sannreynir að þær upplýsingar séu réttar með sjónskoðun á eigninni.
Fasteignasali getur ekki fullyrt um ástand og eiginleika þeirra hluta fasteigna sem ekki eru aðgengilegir og sjást ekki berum augum, t.d. lagnir, dren, skólp og þak.
Ár
Fasteignamat
Kaupverð
Stærð
Fermetraverð
23. des. 2020
54.650.000 kr.
62.500.000 kr.
100.3 m²
623.131 kr.
Byggt á upplýsingum úr Þjóðskrá Íslands frá 2006-2026