Upplýsingar
Verðsaga
Byggt 1984
87,6 m²
3 herb.
1 baðherb.
2 svefnh.
Þvottahús
Sameiginl. inngangur
Lýsing
ALLT fasteignasala kynnir í einkasölu þriggja herbergja íbúð á jarðhæð í snyrtilegu fjórbýli við Vesturgötu 14, 230 Keflavík. Birt stærð er 87,6 fm að undanskyldri 3-4fm geymslu í snyrtilegri sameign.
*** Nýlegt þak 2023.
*** Nýjir gluggar síðan 2025.
*** Nýleg eldhúsinnrétting 2023.
*** Nýlega endurnýjaðir rofar og tenglar 2025.
*** Nýlega uppgerðar innihurðar.
*** Nýlega endurnýjaðar neysluvatnslagnir.
*** Nýjar gardínur í öllum rýmum - vængir geta fylgt með.
*** BÓKIÐ EINKASKOÐUN ***
Elín Frímannsdóttir Löggiltur fasteignasali, í síma 560-5521, tölvupóstur elin@allt.is.
Nánari lýsing.
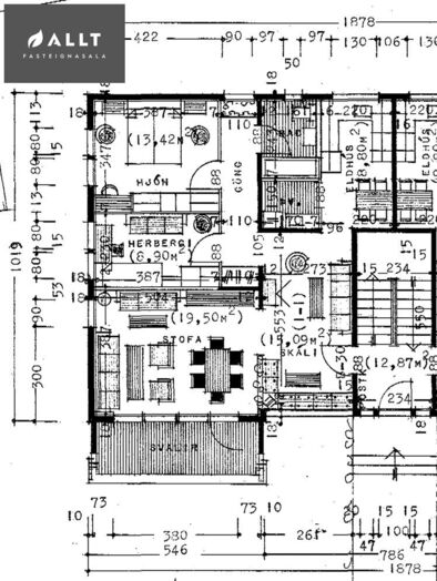
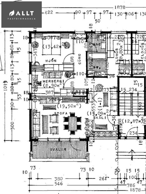
Anddyri: Gengið er inn í opið rými. Parket er á gólfi.
Rúmgóð stofa með parketi á gólfi, útgengt á svalir.
Eldhús er með hvíta nýlega innréttingu og borðkrók.
Þvottahús er innaf eldhúsi og er flísalagt.
Hjónaherbergi: Rúmgott, parketlagt og með góðum nýlegum fataskáp.
Barnaherbergi hefur parket á gólfi og nýlegur fataskápur.
Baðherbergi: Gólf flísalagt, hvít innrétting, baðkar með sturtu.
1 bílastæði fylgir eign og svo eru 2 bílastæði í sameign.
Hjóla- og vagnageymsla er í sameign ásamt sér geymslu.
Vertu tilbúin(n) þegar rétta eignin birtist – skráðu eignina þín í dag og tryggðu þér forskotið.
ALLT fasteignasala er staðsett á eftirfarandi stöðum:
Hafnargötu 91, 230 Reykjanesbæ - Reykjavíkurveg 66, 220 Hafnarfirði
Kostnaður kaupanda:
1. Af gjaldskyldum skjölum skal greiða 0,8% af fasteignamati ef kaupandi er einstaklingur, fyrstukaupendur 0,4% og 1,6% af fasteignamati ef kaupandi er lögaðili.
2. Þinglýsingargjald á hvert skjal er kr. 2.700.
3. Lántökugjald fer eftir verðskrá lánastofnunar hverju sinni.
4. Umsýslugjald til ALLT fasteignasölu er kr. 69.440 m/vsk.
5. Sé um nýbyggingu um að ræða greiðir kaupandi skipulagsgjald, 0,3% af brunabótamati, þegar það er lagt á.
Skoðunar- og aðgæsluskylda kaupanda:
Í lögum um fasteignakaup nr. 40/2002 er kveðið á um ríka skoðunarskyldu kaupenda á fasteignum. ALLT fasteignasala vill beina því til væntanlegs kaupanda að kynna sér ástand fasteignar vel við skoðun og fyrir tilboðsgerð. Ef þurfa þykir er ráðlagt að leita til sérfræðifróðra aðila. Forsendur söluyfirlits: Söluyfirlit þetta er samið af fasteignasala til samræmis við lög um sölu fasteigna og skipa nr. 70/2015. Upplýsingar þær sem koma fram í söluyfirliti þessu eru sóttar í opinberar skrár, frá seljanda og eftir atvikum til húsfélags. Seljandi veitir upplýsingar um eignina til samræmis við upplýsingaskyldu sína sbr. lög um fasteignakaup nr. 40/2002. Fasteignasali sannreynir að upplýsingar séu réttar með sjónskoðun á eigninni. Fasteignasali getur ekki fullyrt um ástand og eiginleika þeirra hluta fasteignar sem ekki eru aðgengilegir og sjást ekki með berum augum, eins og t.d. lagnir, dren, skólp og þak.
*** Nýlegt þak 2023.
*** Nýjir gluggar síðan 2025.
*** Nýleg eldhúsinnrétting 2023.
*** Nýlega endurnýjaðir rofar og tenglar 2025.
*** Nýlega uppgerðar innihurðar.
*** Nýlega endurnýjaðar neysluvatnslagnir.
*** Nýjar gardínur í öllum rýmum - vængir geta fylgt með.
*** BÓKIÐ EINKASKOÐUN ***
Elín Frímannsdóttir Löggiltur fasteignasali, í síma 560-5521, tölvupóstur elin@allt.is.
Nánari lýsing.
Anddyri: Gengið er inn í opið rými. Parket er á gólfi.
Rúmgóð stofa með parketi á gólfi, útgengt á svalir.
Eldhús er með hvíta nýlega innréttingu og borðkrók.
Þvottahús er innaf eldhúsi og er flísalagt.
Hjónaherbergi: Rúmgott, parketlagt og með góðum nýlegum fataskáp.
Barnaherbergi hefur parket á gólfi og nýlegur fataskápur.
Baðherbergi: Gólf flísalagt, hvít innrétting, baðkar með sturtu.
1 bílastæði fylgir eign og svo eru 2 bílastæði í sameign.
Hjóla- og vagnageymsla er í sameign ásamt sér geymslu.
Vertu tilbúin(n) þegar rétta eignin birtist – skráðu eignina þín í dag og tryggðu þér forskotið.
ALLT fasteignasala er staðsett á eftirfarandi stöðum:
Hafnargötu 91, 230 Reykjanesbæ - Reykjavíkurveg 66, 220 Hafnarfirði
Kostnaður kaupanda:
1. Af gjaldskyldum skjölum skal greiða 0,8% af fasteignamati ef kaupandi er einstaklingur, fyrstukaupendur 0,4% og 1,6% af fasteignamati ef kaupandi er lögaðili.
2. Þinglýsingargjald á hvert skjal er kr. 2.700.
3. Lántökugjald fer eftir verðskrá lánastofnunar hverju sinni.
4. Umsýslugjald til ALLT fasteignasölu er kr. 69.440 m/vsk.
5. Sé um nýbyggingu um að ræða greiðir kaupandi skipulagsgjald, 0,3% af brunabótamati, þegar það er lagt á.
Skoðunar- og aðgæsluskylda kaupanda:
Í lögum um fasteignakaup nr. 40/2002 er kveðið á um ríka skoðunarskyldu kaupenda á fasteignum. ALLT fasteignasala vill beina því til væntanlegs kaupanda að kynna sér ástand fasteignar vel við skoðun og fyrir tilboðsgerð. Ef þurfa þykir er ráðlagt að leita til sérfræðifróðra aðila. Forsendur söluyfirlits: Söluyfirlit þetta er samið af fasteignasala til samræmis við lög um sölu fasteigna og skipa nr. 70/2015. Upplýsingar þær sem koma fram í söluyfirliti þessu eru sóttar í opinberar skrár, frá seljanda og eftir atvikum til húsfélags. Seljandi veitir upplýsingar um eignina til samræmis við upplýsingaskyldu sína sbr. lög um fasteignakaup nr. 40/2002. Fasteignasali sannreynir að upplýsingar séu réttar með sjónskoðun á eigninni. Fasteignasali getur ekki fullyrt um ástand og eiginleika þeirra hluta fasteignar sem ekki eru aðgengilegir og sjást ekki með berum augum, eins og t.d. lagnir, dren, skólp og þak.
Ár
Fasteignamat
Kaupverð
Stærð
Fermetraverð
9. maí. 2023
35.600.000 kr.
38.000.000 kr.
87.6 m²
433.790 kr.
30. okt. 2018
19.650.000 kr.
28.000.000 kr.
87.6 m²
319.635 kr.
11. jún. 2015
13.750.000 kr.
13.500.000 kr.
87.6 m²
154.110 kr.
Byggt á upplýsingum úr Þjóðskrá Íslands frá 2006-2025