Upplýsingar
Verðsaga
Byggt 2019
142 m²
4 herb.
2 baðherb.
3 svefnh.
Þvottahús
Bílskúr
Útsýni
Lýsing
Fasteignasalan Hvammur 466 1600
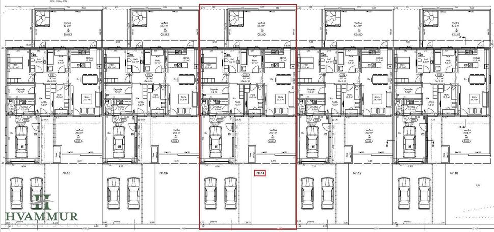
Bakkatröð 14 - Glæsileg 4ra herbergja raðhúsaíbúð með bílskúr í Eyjafjarðarsveit - stærð 142,0 m²
Eignin er steypt, með steyptu þaki og hita í veröndum og bílaplani.
Eignin er með skráð byggingarár 2019 en var ekki tekin í notkun fyrr en um mitt ár 2021
Eignin skiptist í forstofu, gang, eldhús og stofu í opnu rými, þrjú svefnherbergi, baðherbergi, geymslu, þvottahús, snyrtingu og bílskúr.
Forstofa er með ljósu vínyl parketi á gólfi og tvöföldum skáp.
Eldhús er með góðri hvítri innréttingu og filmaðri bekkplötu. Mjög gott skápa- og bekkjarpláss. Span helluborð. Ísskápur og uppþvottavél fylgja með við sölu eignar. Úr eldhúsi er gengið út á steypta suður verönd með heitum potti/rafmagnspottur.
Stofa og eldhús eru í opnu rými, með ljósu vínyl parketi á gólfi, innfelldri lýsingu í lofti og gluggum til norður og suðurs. Úr stofu er gengið út til norðurs á steypta verönd.
Svefnherbergin eru þrjú, öll með ljósu vínyl parketi á gólfi, hvítum fataskápum og innfelldri lýsingu í loftum. Stærð svefnherbergja er skv. teikningum 8,7 , 10,1 og 13,8 m²
Baðherbergi er með gráum flísum á gólfi og hluta veggja, hvítri innréttingu, speglaskáp, upphengdu wc, sturtu og hurð út á suður verönd.
Lítil snyrting er inn af þvottahúsinu, með ljósu vínyl parketi á gólfi, hvítri innréttingu og upphengdu wc.
Þvottahús er með ljósu vínyl parketi á gólfi og hvítri innréttingu með stæði fyrir þvottavél og þurrkara í vinnuhæð og skolvask. Gengið er í gegnum þvottahúsið þegar farið er inn í bílskúr.
Geymsla er með ljós vínyl parketi á gólfi og innfelldri lýsingu. Stærð geymslu er skv. teikningum 7,4 m²
Bílskúr er með epoxy efni á gólfi, rafdifnum opnara á innkeyrsluhurð og sér gönguhurð. Loft er tekið upp.
Annað
- Hljóðdempandi plötur eru í öllum loftum nema baðherbergi og bílskúr.
- Innfelld led lýsing í öllum rýmum fyrir utan bílskúr, þar eru led lampar.
- Steyptar verandir með hitalögnum í eru beggja megin við húsið, lokað kerfi.
- Hitalagnir eru í bílaplani, lokað kerfi.
- Varmaskiptir er á neysluvatni.
- Rafmagnspottur er á suður veröndinni og fylgir hann með við sölu eignar
- Rafhleðslustöð.
- Eignin er í einkasölu
Um skoðunar- og aðgæsluskyldu:
Í lögum um fasteignakaup nr. 40/2002 er kveðið á um ríka skoðunarskyldu kaupenda á fasteignum. Fasteignasalan Hvammur skorar því á væntanlega kaupendur að kynna sér vel ástand fasteigna fyrir kauptilboðsgerð og leita til þar til bærra sérfræðinga um nánari skoðun ef með þarf.
Forsendur söluyfirlits:
Söluyfirlit er samið af fasteignasala í samræmi við ákvæði laga nr. 70/2015. Þær upplýsingar sem fram koma í söluyfirliti þessu eru sóttar í opinberar skrár, til seljanda sjálfs og eftir atvikum til húsfélags. Seljandi veitir upplýsingar um eign í samræmi við upplýsingaskyldu laga um fasteignakaup nr. 40/2002. Fasteignasali sannreynir að þær upplýsingar séu réttar með sjónskoðun á eigninni. Fasteignasali getur ekki fullyrt um ástand og eiginleika þeirra hluta fasteigna sem ekki eru aðgengilegir og sjást ekki berum augum, t.d. lagnir, dren, skólp og þak.
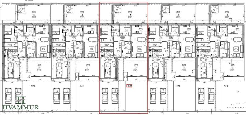
Bakkatröð 14 - Glæsileg 4ra herbergja raðhúsaíbúð með bílskúr í Eyjafjarðarsveit - stærð 142,0 m²
Eignin er steypt, með steyptu þaki og hita í veröndum og bílaplani.
Eignin er með skráð byggingarár 2019 en var ekki tekin í notkun fyrr en um mitt ár 2021
Eignin skiptist í forstofu, gang, eldhús og stofu í opnu rými, þrjú svefnherbergi, baðherbergi, geymslu, þvottahús, snyrtingu og bílskúr.
Forstofa er með ljósu vínyl parketi á gólfi og tvöföldum skáp.
Eldhús er með góðri hvítri innréttingu og filmaðri bekkplötu. Mjög gott skápa- og bekkjarpláss. Span helluborð. Ísskápur og uppþvottavél fylgja með við sölu eignar. Úr eldhúsi er gengið út á steypta suður verönd með heitum potti/rafmagnspottur.
Stofa og eldhús eru í opnu rými, með ljósu vínyl parketi á gólfi, innfelldri lýsingu í lofti og gluggum til norður og suðurs. Úr stofu er gengið út til norðurs á steypta verönd.
Svefnherbergin eru þrjú, öll með ljósu vínyl parketi á gólfi, hvítum fataskápum og innfelldri lýsingu í loftum. Stærð svefnherbergja er skv. teikningum 8,7 , 10,1 og 13,8 m²
Baðherbergi er með gráum flísum á gólfi og hluta veggja, hvítri innréttingu, speglaskáp, upphengdu wc, sturtu og hurð út á suður verönd.
Lítil snyrting er inn af þvottahúsinu, með ljósu vínyl parketi á gólfi, hvítri innréttingu og upphengdu wc.
Þvottahús er með ljósu vínyl parketi á gólfi og hvítri innréttingu með stæði fyrir þvottavél og þurrkara í vinnuhæð og skolvask. Gengið er í gegnum þvottahúsið þegar farið er inn í bílskúr.
Geymsla er með ljós vínyl parketi á gólfi og innfelldri lýsingu. Stærð geymslu er skv. teikningum 7,4 m²
Bílskúr er með epoxy efni á gólfi, rafdifnum opnara á innkeyrsluhurð og sér gönguhurð. Loft er tekið upp.
Annað
- Hljóðdempandi plötur eru í öllum loftum nema baðherbergi og bílskúr.
- Innfelld led lýsing í öllum rýmum fyrir utan bílskúr, þar eru led lampar.
- Steyptar verandir með hitalögnum í eru beggja megin við húsið, lokað kerfi.
- Hitalagnir eru í bílaplani, lokað kerfi.
- Varmaskiptir er á neysluvatni.
- Rafmagnspottur er á suður veröndinni og fylgir hann með við sölu eignar
- Rafhleðslustöð.
- Eignin er í einkasölu
Um skoðunar- og aðgæsluskyldu:
Í lögum um fasteignakaup nr. 40/2002 er kveðið á um ríka skoðunarskyldu kaupenda á fasteignum. Fasteignasalan Hvammur skorar því á væntanlega kaupendur að kynna sér vel ástand fasteigna fyrir kauptilboðsgerð og leita til þar til bærra sérfræðinga um nánari skoðun ef með þarf.
Forsendur söluyfirlits:
Söluyfirlit er samið af fasteignasala í samræmi við ákvæði laga nr. 70/2015. Þær upplýsingar sem fram koma í söluyfirliti þessu eru sóttar í opinberar skrár, til seljanda sjálfs og eftir atvikum til húsfélags. Seljandi veitir upplýsingar um eign í samræmi við upplýsingaskyldu laga um fasteignakaup nr. 40/2002. Fasteignasali sannreynir að þær upplýsingar séu réttar með sjónskoðun á eigninni. Fasteignasali getur ekki fullyrt um ástand og eiginleika þeirra hluta fasteigna sem ekki eru aðgengilegir og sjást ekki berum augum, t.d. lagnir, dren, skólp og þak.
Ár
Fasteignamat
Kaupverð
Stærð
Fermetraverð
14. jún. 2021
47.750.000 kr.
62.900.000 kr.
142 m²
442.958 kr.
27. mar. 2020
28.900.000 kr.
34.500.000 kr.
142 m²
242.958 kr.
Byggt á upplýsingum úr Þjóðskrá Íslands frá 2006-2026