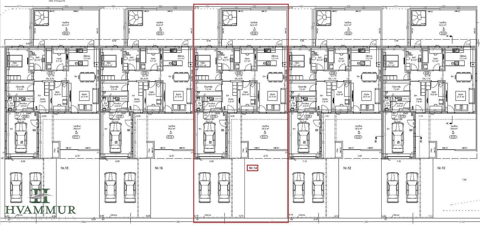
Bakkatröð 14, 605 Akureyri