Upplýsingar
Verðsaga
Byggt 2017
94,1 m²
4 herb.
1 baðherb.
3 svefnh.
Þvottahús
Útsýni
Sameiginl. inngangur
Lyfta
Opið hús: 23. mars 2026
kl. 16:30
til 17:00
Lýsing
Fasteignasalan Hvammur 466 1600
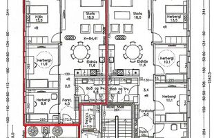
Kjarnagata 37 íbúð 201 – Vel skipulögð 4ra herbergja íbúð á 2. hæð í vönduðu fjölbýlishúsi með lyftu í Naustahverfi á Akureyri - stærð 94,1 m² þar af er geymsla á jarðhæð 7,1 m²
Eignin skiptist í sólstofu, forstofu, eldhús og stofu í opnu rými, þrjú svefnherbergi og baðherbergi með þvottaaðstöðu. Á jarðhæðinni er sér geymsla og sameiginleg hjóla- og vagnageymsla.
Forstofa er með gráum flísum á gólfi og tvöföldum fataskáp.
Sólstofa er fyrir framan forstofuna, skráð 15,8 m² að stærð og með flísum á gólfi. Fermetrar í sólstofu eru ekki skráðir í heildar stærð eignar.
Eldhús, vönduð spónlögð eikar innrétting með ljósum flísum á milli skápa. Ísskápur með frysti og uppþvottavél eru innfelld í innréttingu og fylgja með við sölu eignar. AEG ofn og helluborð.
Stofa og eldhús eru í opnu rými þar sem harðparket er á gólfi. Úr stofu er gengið út á steyptar suður svalir, skráðar 10,3 m² að stærð.
Baðherbergi er flísalagt í hólf og gólf, gráar flísar á gólfi og hvítar á veggjum. Vönduð spónlögð eikar innrétting og speglaskápur. Stæði er í innréttingu fyrir þvottavél og þurrkara. Upphengt wc og sturta með glervængjum.
Svefnherbergin eru þrjú, öll með harðparketi á gólfi og spónlögðum eikar fataskápum. Stærð herbergja er skv. teikningum 8,9 , 11,6 og 13,5 m².
Á jarðhæð er sér geymsla, skráð 7,1 m² að stærð og með flísum á gólfi.
Annað:
- Sumarið 2025 fóru fram múrviðgerðir á húsinu, auk þess sem það var málað að utan.
- Allar innréttingar eru spónlagðar með eik.
- Gólfhiti er í allri íbúðinni.
- Steyptar suðursvalir, skráðar 10,3 m² að stærð.
- Eignin er í útleigu til 1.júní 2026.
Um skoðunar- og aðgæsluskyldu:
Í lögum um fasteignakaup nr. 40/2002 er kveðið á um ríka skoðunarskyldu kaupenda á fasteignum. Fasteignasalan Hvammur skorar því á væntanlega kaupendur að kynna sér vel ástand fasteigna fyrir kauptilboðsgerð og leita til þar til bærra sérfræðinga um nánari skoðun ef með þarf.
Forsendur söluyfirlits:
Söluyfirlit er samið af fasteignasala í samræmi við ákvæði laga nr. 70/2015. Þær upplýsingar sem fram koma í söluyfirliti þessu eru sóttar í opinberar skrár, til seljanda sjálfs og eftir atvikum til húsfélags. Seljandi veitir upplýsingar um eign í samræmi við upplýsingaskyldu laga um fasteignakaup nr. 40/2002. Fasteignasali sannreynir að þær upplýsingar séu réttar með sjónskoðun á eigninni. Fasteignasali getur ekki fullyrt um ástand og eiginleika þeirra hluta fasteigna sem ekki eru aðgengilegir og sjást ekki berum augum, t.d. lagnir, dren, skólp og þak.
Kjarnagata 37 íbúð 201 – Vel skipulögð 4ra herbergja íbúð á 2. hæð í vönduðu fjölbýlishúsi með lyftu í Naustahverfi á Akureyri - stærð 94,1 m² þar af er geymsla á jarðhæð 7,1 m²
Eignin skiptist í sólstofu, forstofu, eldhús og stofu í opnu rými, þrjú svefnherbergi og baðherbergi með þvottaaðstöðu. Á jarðhæðinni er sér geymsla og sameiginleg hjóla- og vagnageymsla.
Forstofa er með gráum flísum á gólfi og tvöföldum fataskáp.
Sólstofa er fyrir framan forstofuna, skráð 15,8 m² að stærð og með flísum á gólfi. Fermetrar í sólstofu eru ekki skráðir í heildar stærð eignar.
Eldhús, vönduð spónlögð eikar innrétting með ljósum flísum á milli skápa. Ísskápur með frysti og uppþvottavél eru innfelld í innréttingu og fylgja með við sölu eignar. AEG ofn og helluborð.
Stofa og eldhús eru í opnu rými þar sem harðparket er á gólfi. Úr stofu er gengið út á steyptar suður svalir, skráðar 10,3 m² að stærð.
Baðherbergi er flísalagt í hólf og gólf, gráar flísar á gólfi og hvítar á veggjum. Vönduð spónlögð eikar innrétting og speglaskápur. Stæði er í innréttingu fyrir þvottavél og þurrkara. Upphengt wc og sturta með glervængjum.
Svefnherbergin eru þrjú, öll með harðparketi á gólfi og spónlögðum eikar fataskápum. Stærð herbergja er skv. teikningum 8,9 , 11,6 og 13,5 m².
Á jarðhæð er sér geymsla, skráð 7,1 m² að stærð og með flísum á gólfi.
Annað:
- Sumarið 2025 fóru fram múrviðgerðir á húsinu, auk þess sem það var málað að utan.
- Allar innréttingar eru spónlagðar með eik.
- Gólfhiti er í allri íbúðinni.
- Steyptar suðursvalir, skráðar 10,3 m² að stærð.
- Eignin er í útleigu til 1.júní 2026.
Um skoðunar- og aðgæsluskyldu:
Í lögum um fasteignakaup nr. 40/2002 er kveðið á um ríka skoðunarskyldu kaupenda á fasteignum. Fasteignasalan Hvammur skorar því á væntanlega kaupendur að kynna sér vel ástand fasteigna fyrir kauptilboðsgerð og leita til þar til bærra sérfræðinga um nánari skoðun ef með þarf.
Forsendur söluyfirlits:
Söluyfirlit er samið af fasteignasala í samræmi við ákvæði laga nr. 70/2015. Þær upplýsingar sem fram koma í söluyfirliti þessu eru sóttar í opinberar skrár, til seljanda sjálfs og eftir atvikum til húsfélags. Seljandi veitir upplýsingar um eign í samræmi við upplýsingaskyldu laga um fasteignakaup nr. 40/2002. Fasteignasali sannreynir að þær upplýsingar séu réttar með sjónskoðun á eigninni. Fasteignasali getur ekki fullyrt um ástand og eiginleika þeirra hluta fasteigna sem ekki eru aðgengilegir og sjást ekki berum augum, t.d. lagnir, dren, skólp og þak.
Ár
Fasteignamat
Kaupverð
Stærð
Fermetraverð
22. apr. 2024
53.350.000 kr.
57.500.000 kr.
94.1 m²
611.052 kr.
11. maí. 2017
27.500.000 kr.
36.000.000 kr.
94.1 m²
382.572 kr.
8. jan. 2015
1.725.000 kr.
23.000.000 kr.
1830.4 m²
12.566 kr.
Byggt á upplýsingum úr Þjóðskrá Íslands frá 2006-2026