Upplýsingar
Verðsaga
Byggt 2023
78,9 m²
4 herb.
1 baðherb.
3 svefnh.
Sérinngangur
Lyfta
Lýsing
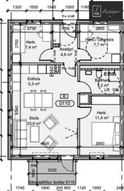
Glæsileg 78,9 fm 4ra herbergja endaíbúð á jarðhæð (merkt 0110) með sérinngang og sér verönd í nýju fjölbýlishúsi við Eyrarveg 34B á Selfossi. Íbúðin var afhent ný árið 2023 og er í útleigu fram í maí-júní. Hlutdeildarlán er í boði fyrir þessa eign. Allir uppgefnir fermetrar eru innan íbúðarinnar. Íbúðin er í útleigu með traustum leigjanda og nýr eigandi getur gengið beint inn í samninginn ef vilji er fyrir því.
Nánari lýsing:
Forstofa: Fataskápur í forstofu.
Eldhús og stofa í björtu alrými með útgang á verönd. Hvít innrétting er í eldhúsi, ofn helluborð með háf yfir og innbyggð uppþvottavél.
Þrjú svefnherbergi eru í íbúðinni, skápar í öllum herbergjum.
Baðherbergi: Sturta, vegghengt salerni, hvít innrétting og handklæðaofn. Gert er ráð fyrir þvottavél og þurrkara inni á baðherbergi. Gráar flísar á vegg og gólfi.
Á allri íbúðinni er harðparket nema á baðherbergi eru flísar.
Íbúðin er staðsett miðsvæðis á selfossi, stutt í alla helstu þjónustu og nýji miðbærinn í göngufæri.
Húsið:
47 íbúðir eru í húsinu á 4-5 hæðum. Húsið er gert úr forsteyptum einingum og klætt með litaðri álklæðningu á völdum stöðum við svalir. Þak er byggt úr steyptum filigran plötum með ásteypulagi, síðan er þak einangrað ofan með 200-225mm plasteinangrun. PVC þakdúkur kemur ofan á plasteinangrun, þakpappi og farg þar yfir. Hurðir og gluggar ál-tré. Pólýhúðað stálhandrið á svölum.
Sameign. Á neðstu hæð er tæknirými sem og vagnageymsla og úti á lóð er sameiginlegt rými fyrir hjól. Gólf í framangreindum sameignarrýmum verða máluð í gráum lit.
Í stað hefðbundinna sorptunnuskýla eru djúpgámar. Þá er hellulagt fyrir aftan svalainngang neðstu hæðar í línu við svalakant efri hæða, Rafmagnshleðsla fyrir bílastæði við hús skv. reglugerð.
Nánari upplýsingar veitir Kristófer Ari Te Maiharoa, lögfræðingur og löggiltur fasteignasali, kristo@olafur.is og Ólafur Björnsson, hrl. og löggiltur fasteignasali, oli@olafur.is
Skoðunarskylda kaupanda og upplýsingaskylda seljanda:
Í lögum um fasteignakaup nr. 40/2002 er kveðið á um ríka skoðunarskyldu kaupenda á fasteignum. Fasteignasalan bendir væntanlegum kaupendum á að kynna sér vel ástand fasteigna við skoðun og fyrir tilboðsgerð og ef þurfa þykir að leita til sérfræðinga um nánari ástandsskoðun. Vakin er sérstök athygli á því að seljandi er dánarbú í opinberum skiptum og getur því ekki uppfyllt upplýsingaskyldu sína með sama hætti og einstaklingur. Kaupverð tekur mið af ástandi eignarinnar sem selst í því ástandi sem hún var í við skoðun kaupanda og hann sættir sig við að öllu leyti. Ekki er tekin ábyrgð á virkni heimilistækja sem fylgja.
Forsendur söluyfirlits:
Söluyfirlit er samið af fasteignasala í samræmi við ákvæði laga nr. 70/2015. Þær upplýsingar sem fram koma í söluyfirliti þessu eru sóttar í opinberar skrár, til seljanda sjálfs og eftir atvikum til húsfélags.
Seljandi veitir upplýsingar um eign í samræmi við upplýsingaskyldu laga um fasteignakaup nr. 40/2002. Fasteignasali sannreynir að þær upplýsingar séu réttar með sjónskoðun á eigninni.
Fasteignasali getur ekki fullyrt um ástand og eiginleika þeirra hluta fasteigna sem ekki eru aðgengilegir og sjást ekki berum augum, t.d. lagnir, dren, skólp og þak.
Gjöld sem kaupandi þarf að standa straum af vegna kaupanna:
1. Stimpilgjald af kaupsamningi sem er hlutfall af fasteignamati. Stimpilgjald er 0,8% fyrir einstaklinga (0,4% við fyrstu kaup) og 1,6% fyrir lögaðila.
2. Þinglýsingargjald af kaupsamningi, veðskuldabréfum, veðleyfum o.fl. Þinglýsingargjald er kr. 3.800,- fyrir hvert skjal.
3. Lántökugjald lánastofnunar í samræmi við gjaldskrá viðkomandi lánveitanda.
4. Umsýslugjald kaupanda er kr. 55.000 auk vsk.
5. Þegar um nýbyggingu er að ræða greiðir kaupandi skipulagsgjald, 0,3% af endanlegu brunabótamáti, þegar það er lagt á af viðkomandi sveitarfélagi.
Nánari lýsing:
Forstofa: Fataskápur í forstofu.
Eldhús og stofa í björtu alrými með útgang á verönd. Hvít innrétting er í eldhúsi, ofn helluborð með háf yfir og innbyggð uppþvottavél.
Þrjú svefnherbergi eru í íbúðinni, skápar í öllum herbergjum.
Baðherbergi: Sturta, vegghengt salerni, hvít innrétting og handklæðaofn. Gert er ráð fyrir þvottavél og þurrkara inni á baðherbergi. Gráar flísar á vegg og gólfi.
Á allri íbúðinni er harðparket nema á baðherbergi eru flísar.
Íbúðin er staðsett miðsvæðis á selfossi, stutt í alla helstu þjónustu og nýji miðbærinn í göngufæri.
Húsið:
47 íbúðir eru í húsinu á 4-5 hæðum. Húsið er gert úr forsteyptum einingum og klætt með litaðri álklæðningu á völdum stöðum við svalir. Þak er byggt úr steyptum filigran plötum með ásteypulagi, síðan er þak einangrað ofan með 200-225mm plasteinangrun. PVC þakdúkur kemur ofan á plasteinangrun, þakpappi og farg þar yfir. Hurðir og gluggar ál-tré. Pólýhúðað stálhandrið á svölum.
Sameign. Á neðstu hæð er tæknirými sem og vagnageymsla og úti á lóð er sameiginlegt rými fyrir hjól. Gólf í framangreindum sameignarrýmum verða máluð í gráum lit.
Í stað hefðbundinna sorptunnuskýla eru djúpgámar. Þá er hellulagt fyrir aftan svalainngang neðstu hæðar í línu við svalakant efri hæða, Rafmagnshleðsla fyrir bílastæði við hús skv. reglugerð.
Nánari upplýsingar veitir Kristófer Ari Te Maiharoa, lögfræðingur og löggiltur fasteignasali, kristo@olafur.is og Ólafur Björnsson, hrl. og löggiltur fasteignasali, oli@olafur.is
Skoðunarskylda kaupanda og upplýsingaskylda seljanda:
Í lögum um fasteignakaup nr. 40/2002 er kveðið á um ríka skoðunarskyldu kaupenda á fasteignum. Fasteignasalan bendir væntanlegum kaupendum á að kynna sér vel ástand fasteigna við skoðun og fyrir tilboðsgerð og ef þurfa þykir að leita til sérfræðinga um nánari ástandsskoðun. Vakin er sérstök athygli á því að seljandi er dánarbú í opinberum skiptum og getur því ekki uppfyllt upplýsingaskyldu sína með sama hætti og einstaklingur. Kaupverð tekur mið af ástandi eignarinnar sem selst í því ástandi sem hún var í við skoðun kaupanda og hann sættir sig við að öllu leyti. Ekki er tekin ábyrgð á virkni heimilistækja sem fylgja.
Forsendur söluyfirlits:
Söluyfirlit er samið af fasteignasala í samræmi við ákvæði laga nr. 70/2015. Þær upplýsingar sem fram koma í söluyfirliti þessu eru sóttar í opinberar skrár, til seljanda sjálfs og eftir atvikum til húsfélags.
Seljandi veitir upplýsingar um eign í samræmi við upplýsingaskyldu laga um fasteignakaup nr. 40/2002. Fasteignasali sannreynir að þær upplýsingar séu réttar með sjónskoðun á eigninni.
Fasteignasali getur ekki fullyrt um ástand og eiginleika þeirra hluta fasteigna sem ekki eru aðgengilegir og sjást ekki berum augum, t.d. lagnir, dren, skólp og þak.
Gjöld sem kaupandi þarf að standa straum af vegna kaupanna:
1. Stimpilgjald af kaupsamningi sem er hlutfall af fasteignamati. Stimpilgjald er 0,8% fyrir einstaklinga (0,4% við fyrstu kaup) og 1,6% fyrir lögaðila.
2. Þinglýsingargjald af kaupsamningi, veðskuldabréfum, veðleyfum o.fl. Þinglýsingargjald er kr. 3.800,- fyrir hvert skjal.
3. Lántökugjald lánastofnunar í samræmi við gjaldskrá viðkomandi lánveitanda.
4. Umsýslugjald kaupanda er kr. 55.000 auk vsk.
5. Þegar um nýbyggingu er að ræða greiðir kaupandi skipulagsgjald, 0,3% af endanlegu brunabótamáti, þegar það er lagt á af viðkomandi sveitarfélagi.
Nánari upplýsingar veita Kristófer Ari Te Maiharoa, lögfræðingur og löggilltur fasteignasali kristo@olafur.is s: 416-2223, gsm: 695 6134 eða Ólafur Björnsson, lögmaður og löggiltur fasteignasali oli@olafur.is - s: 416 2220 - gsm: 894 3209
Ár
Fasteignamat
Kaupverð
Stærð
Fermetraverð
18. maí. 2022
2.050.000 kr.
133.430.000 kr.
242.6 m²
550.000 kr.
Byggt á upplýsingum úr Þjóðskrá Íslands frá 2006-2026