Upplýsingar
Verðsaga
Byggt 2023
62,6 m²
2 herb.
1 baðherb.
1 svefnh.
Útsýni
Lyfta
Laus strax
Lýsing
Steindór Guðmundsson löggiltur fasteignasali 862 1996 og HÚS fasteignasala kynna í einkasölu tveggja herbergja, 62,6 fm íbúð á 3. hæð í nýlegu fjölbýlishúsi með lyftu við Austurhóla 6, 800 Selfossi. Snyrtileg sameign. Sérinngangur af svölum. Stórar svalir í suðvestur. Laus við undirritun kaupsamnings.
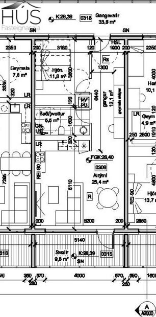
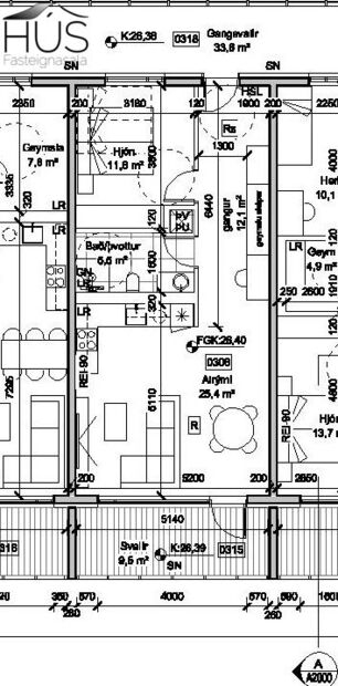
Eignin er skráð 62,6 fm skv. HMS og skiptist í forstofu, svefnherbergi, baðherbergi með aðstöðu fyrir þvottavél og þurrkara, rúmgóða og bjarta stofu og eldhús í alrými með stofu. Útgengt út á rúmgóðar svalir úr stofu.
Nánari lýsing:
Hágæða sérsmíðaðar innréttingar frá HTH, harðparket á gólfum og votrými flísalögð. Hvítar innfelldar innihurðar.
Forstofa/gangur er með stórum fataskápum.
Svefnherbergi er rúmgott og bjart með góðu skápaplássi.
Baðherbergi með flísum á gólfi og hluti veggja. Innrétting, spegill með lýsingu, walk in sturta, handklæðofn og tengi fyrir þvottavél og þurrkara.
Eldhús og stofa er opið í eitt. Eldhúsinnrétting frá HTH með ljósum neðri skápum og dökkum efri skápum. Eldavél, ofn, innfeld uppþvottavél og ísskápur frá AEG. Útgengt er út á stórar svalir úr stofu.
Svalir eru stórar, svalagólf klætt með timbri.
Húsið er staðsteypt, einangrað að utan og klætt með viðhaldsléttri klæðningu.
Sameign snyrtileg. Sameiginleg vagna og hjólageymsla á jarðhæð. Frágengin lóð, steyptar stéttar. Malbikuð bílastæði og hleðslustöðvar fyrir bíla á vegum húsfélags.
Nánari upplýsingar veitir Steindór Guðmundsson löggiltur fasteignasali s. 862 1996 steindor@husfasteign.is
,,Okkar fagmennska eru þínir hagsmunir"
Gjöld sem kaupandi þarf að standa straum að vegna kaupanna.
1. Stimpilgjöld af kaupsamningi - 0,8 % af heildarfasteignamati. (0,4% fyrstu kaup, 1,6% lögaðilar)
2. Þinglýsingargjald af kaupsamningi, veðskuldabréfi, mögulegu veðleyfi o.fl. kr. 3.800 af hverju skjali.
3. Lántökugjald lánastofnunnar, breytilegt. Nánari upplýsingar t.d. á heimasíðum lánastofnanna.
4. Umsýslugjald til fasteignasölu sbr. kauptilboð.
Gjöld sem kaupandi þarf að standa straum að vegna kaupanna.
Eignin er skráð 62,6 fm skv. HMS og skiptist í forstofu, svefnherbergi, baðherbergi með aðstöðu fyrir þvottavél og þurrkara, rúmgóða og bjarta stofu og eldhús í alrými með stofu. Útgengt út á rúmgóðar svalir úr stofu.
Nánari lýsing:
Hágæða sérsmíðaðar innréttingar frá HTH, harðparket á gólfum og votrými flísalögð. Hvítar innfelldar innihurðar.
Forstofa/gangur er með stórum fataskápum.
Svefnherbergi er rúmgott og bjart með góðu skápaplássi.
Baðherbergi með flísum á gólfi og hluti veggja. Innrétting, spegill með lýsingu, walk in sturta, handklæðofn og tengi fyrir þvottavél og þurrkara.
Eldhús og stofa er opið í eitt. Eldhúsinnrétting frá HTH með ljósum neðri skápum og dökkum efri skápum. Eldavél, ofn, innfeld uppþvottavél og ísskápur frá AEG. Útgengt er út á stórar svalir úr stofu.
Svalir eru stórar, svalagólf klætt með timbri.
Húsið er staðsteypt, einangrað að utan og klætt með viðhaldsléttri klæðningu.
Sameign snyrtileg. Sameiginleg vagna og hjólageymsla á jarðhæð. Frágengin lóð, steyptar stéttar. Malbikuð bílastæði og hleðslustöðvar fyrir bíla á vegum húsfélags.
Nánari upplýsingar veitir Steindór Guðmundsson löggiltur fasteignasali s. 862 1996 steindor@husfasteign.is
,,Okkar fagmennska eru þínir hagsmunir"
Gjöld sem kaupandi þarf að standa straum að vegna kaupanna.
1. Stimpilgjöld af kaupsamningi - 0,8 % af heildarfasteignamati. (0,4% fyrstu kaup, 1,6% lögaðilar)
2. Þinglýsingargjald af kaupsamningi, veðskuldabréfi, mögulegu veðleyfi o.fl. kr. 3.800 af hverju skjali.
3. Lántökugjald lánastofnunnar, breytilegt. Nánari upplýsingar t.d. á heimasíðum lánastofnanna.
4. Umsýslugjald til fasteignasölu sbr. kauptilboð.
Gjöld sem kaupandi þarf að standa straum að vegna kaupanna.
Ár
Fasteignamat
Kaupverð
Stærð
Fermetraverð
26. ágú. 2022
1.735.000 kr.
38.900.000 kr.
62.6 m²
621.406 kr.
Byggt á upplýsingum úr Þjóðskrá Íslands frá 2006-2026