Upplýsingar
Verðsaga
Byggt 2021
79,6 m²
2 herb.
1 baðherb.
2 svefnh.
Þvottahús
Sérinngangur
Hjólastólaaðgengi
Bílastæði
Lyfta
Lýsing
GLÆSILEG ÍBÚÐ Í LYFTUHÚSNÆÐI MEÐ SÉRINNGANGI, VÖNDUÐUM INNRÉTTINGUM, SÉR AFNOTAPALLI TIL VESTURS OG STÆÐI Í LOKAÐRI BÍLAGEYMSLU.
Samkvæmt skráningu Þjóðskrár Íslands er birt flatarmál eignarinnar 79,6 fm.
Um er að ræða fallega og rúmgóða íbúð á jarðhæð í steinsteyptu lyftuhúsnæði byggðu árið 2021 með vönduðum innréttingum.
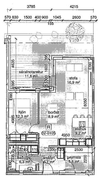
Gengið er inn í anddyri/hol, strax til vinstri er baðherbergið, til hægri er minna svefnherbergið/geymsla. Inn af anddyrisholinu er gengið inn í alrýmið, stofurnar og opið eldhúsið en hjónaherbergið er þar á vinstri hönd. Bílastæði fylgir í læstri bílageymslu. Einnig er sameiginleg hjóla- og vagnageymsla.
Anddyri/hol: Fataskápur, parket á gólfi.
Stofa/borðstofa: Bjartar með parketi á gólfi, útgengt út á sér afnotapall til vesturs úr stofunni.
Eldhús: Falleg hvítlökkuð innrétting, gott skápa- og borðpláss, span helluborð í eyju og gufugleypir yfir, parket á gólfi.
Baðherbergi: Flísalagt, rúmgott með walk-in sturtu, upphengt salerni, handklæðaofn, mjög gott skápapláss og tengi fyrir þvottavél.
Herbergin: Hjónaherbergið er rúmgott með góðum fataskápum og parketi á gólfi, minna herbergið (teiknað sem geymsla) er parketlagt.
Stæði í bílageymslu: Sér stæði mjög nálægt inngangi, merkt E46 fylgir í lokaðri bílageymslu.
Sameign: Snyrtileg sameign og stigagangur, sameiginleg vagna- og hjólageymsla.
- Vandað og viðhaldslétt lyftuhús á vinsælum stað á Kársnesinu.
- Ljósleiðari er komin inn í íbúðina.
- Myndavéladyrasími.
- Búið er að leggja rafleiðslur fyrir hleðslustöð í bílageymslu.
- Góð bílastæði eru við inngang og er öll aðkoma og lóð hin snyrtilegasta.
- Mjög góð eign fyrir vandláta á eftirsóttum stað í Kópavogi.
Húsið er staðsett á vinsælum stað á vinsælum stað í vesturbæ Kópavogs. Brikk bakarí og Brasserie Kársnes eru í næsta húsi. Heillandi umhverfi við sjávarsíðuna með fallegri náttúru og fjölbreyttum afþreyingarmöguleikum. Örstutt frá sjónum og í göngufæri við Sky lagoon böðin.
Allar nánari uppl. og skoðun veitir: Jóhann Friðgeir, lgf. GSM: 896-3038 e-mail: johann@hofdi.is
Samkvæmt skráningu Þjóðskrár Íslands er birt flatarmál eignarinnar 79,6 fm.
Um er að ræða fallega og rúmgóða íbúð á jarðhæð í steinsteyptu lyftuhúsnæði byggðu árið 2021 með vönduðum innréttingum.
Gengið er inn í anddyri/hol, strax til vinstri er baðherbergið, til hægri er minna svefnherbergið/geymsla. Inn af anddyrisholinu er gengið inn í alrýmið, stofurnar og opið eldhúsið en hjónaherbergið er þar á vinstri hönd. Bílastæði fylgir í læstri bílageymslu. Einnig er sameiginleg hjóla- og vagnageymsla.
Anddyri/hol: Fataskápur, parket á gólfi.
Stofa/borðstofa: Bjartar með parketi á gólfi, útgengt út á sér afnotapall til vesturs úr stofunni.
Eldhús: Falleg hvítlökkuð innrétting, gott skápa- og borðpláss, span helluborð í eyju og gufugleypir yfir, parket á gólfi.
Baðherbergi: Flísalagt, rúmgott með walk-in sturtu, upphengt salerni, handklæðaofn, mjög gott skápapláss og tengi fyrir þvottavél.
Herbergin: Hjónaherbergið er rúmgott með góðum fataskápum og parketi á gólfi, minna herbergið (teiknað sem geymsla) er parketlagt.
Stæði í bílageymslu: Sér stæði mjög nálægt inngangi, merkt E46 fylgir í lokaðri bílageymslu.
Sameign: Snyrtileg sameign og stigagangur, sameiginleg vagna- og hjólageymsla.
- Vandað og viðhaldslétt lyftuhús á vinsælum stað á Kársnesinu.
- Ljósleiðari er komin inn í íbúðina.
- Myndavéladyrasími.
- Búið er að leggja rafleiðslur fyrir hleðslustöð í bílageymslu.
- Góð bílastæði eru við inngang og er öll aðkoma og lóð hin snyrtilegasta.
- Mjög góð eign fyrir vandláta á eftirsóttum stað í Kópavogi.
Húsið er staðsett á vinsælum stað á vinsælum stað í vesturbæ Kópavogs. Brikk bakarí og Brasserie Kársnes eru í næsta húsi. Heillandi umhverfi við sjávarsíðuna með fallegri náttúru og fjölbreyttum afþreyingarmöguleikum. Örstutt frá sjónum og í göngufæri við Sky lagoon böðin.
Allar nánari uppl. og skoðun veitir: Jóhann Friðgeir, lgf. GSM: 896-3038 e-mail: johann@hofdi.is
Ár
Fasteignamat
Kaupverð
Stærð
Fermetraverð
5. nóv. 2021
21.100.000 kr.
53.900.000 kr.
79.6 m²
677.136 kr.
Byggt á upplýsingum úr Þjóðskrá Íslands frá 2006-2026