Löggiltir fasteignasalar innan Félags fasteignasala:
Hilmar Gunnlaugsson hrl
Sigurður Magnússon
Bryndís Björt Hilmarsdóttir
Vista
einbýlishús

Bjarkasel 14

700 Egilsstaðir

93.500.000 kr.

436.916 þ.kr./m2
Fasteignanúmer

F2292946

Fasteignamat

88.250.000 kr.

Brunabótamat

105.800.000 kr.

Áhvílandi

0 kr.

Arion banki – Reikna lán
Upplýsingar
Verðsaga
svg
Byggt 2007
svg
214 m²
svg
6 herb.
svg
2 baðherb.
svg
5 svefnh.
svg
Þvottahús
svg
Bílskúr

Lýsing

INNI fasteignasala s. 580 7905 -  inni@inni.is
 

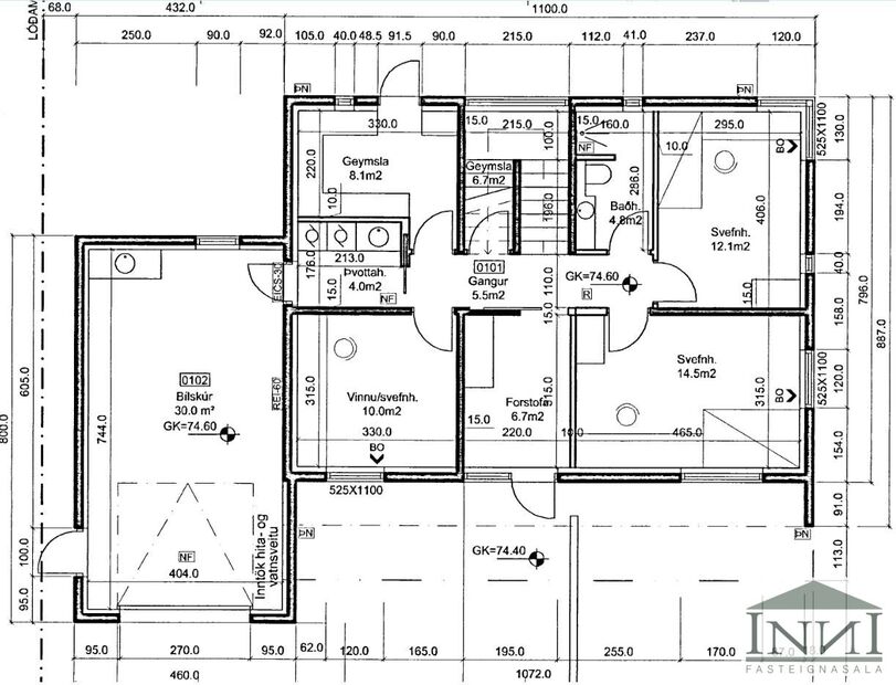
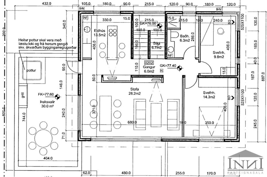
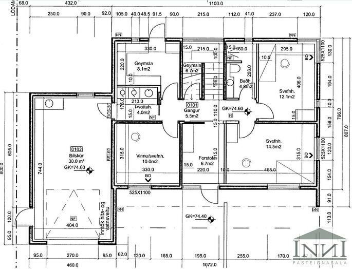
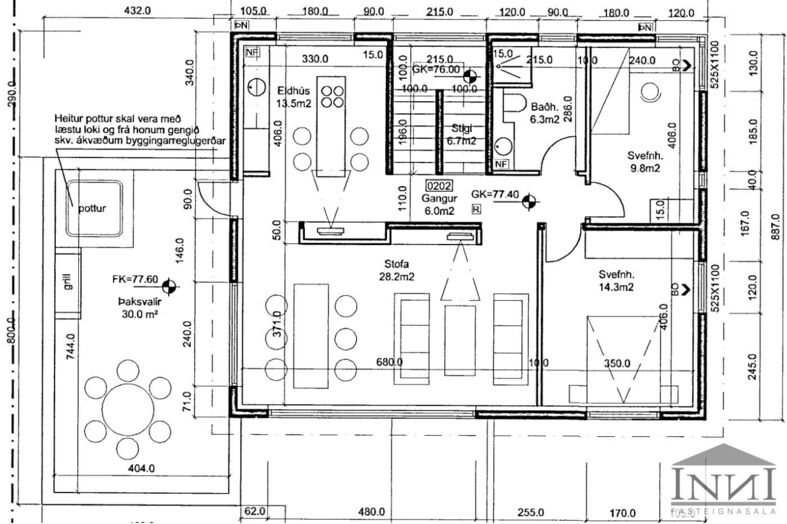
Gott einbýlishús með fimm svefnherbergjum og innbyggðum 36,3 m² bílskúr. Húsið er byggt árið 2007.
Stofa og eldhús eru í opnu rými með upptekið loft, parket á gólfi og útgengt á stóra verönd (bílskúrsþak). Flísalögð baðherbergi eru á báðum hæðum. Á neðri hæð er sturta en á efri hæð er baðkar með sturtu í. Fimm fremur rúmgóð svefnherbergi eru í húsinu, öll með parket á gólfi. Auk þess er geymsla/herbergi á neðri hæð með útgengt í bakgarð sem nýta má sem sjötta herbergið. Á neðri hæð er flísalagt þvottahús og þaðan er innangengt í bílskúr. 
Garður er frágenginn og snyrtilegur og hellulögð stétt er framan við húsið.
Útivistarparadísin Selskógur er bókstaflega í bakgarðinum. 

INNI fasteignasala ehf

INNI fasteignasala ehf

Fagradalsbraut 11, 700 Egilsstaðir
phone
Ár
Fasteignamat
Kaupverð
Stærð
Fermetraverð
10. nóv. 2020
50.100.000 kr.
55.000.000 kr.
214 m²
257.009 kr.
23. maí. 2018
23.450.000 kr.
27.000.000 kr.
214 m²
126.168 kr.
Byggt á upplýsingum úr Þjóðskrá Íslands frá 2006-2025
INNI fasteignasala ehf

INNI fasteignasala ehf

Fagradalsbraut 11, 700 Egilsstaðir
phone