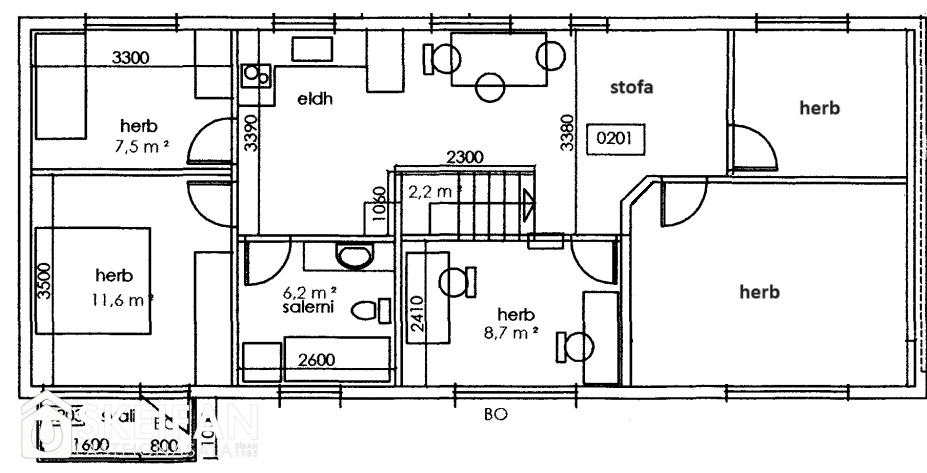
Túngata, 230 Reykjanesbær