Upplýsingar
Verðsaga
Byggt 1910
147,1 m²
4 herb.
1 baðherb.
5 svefnh.
Þvottahús
Sérinngangur
Lýsing
Fasteignamat næsta árs: 48.600.000
SKEIFAN fasteignasala kynnir 147,1 m², 6ja herbergja íbúð við Túngötu 22b í Keflavík.
Fasteignamat næsta árs: 45.750.000 kr
Skv. HMS er birt stærð eignar 147,1 m².
ALLAR NÁNARI UPPLÝSINGAR VEITIR:
Halldór Kristján / Löggiltur fasteignasali / sími: 618-9999 / HALLDOR@SKEIFAN.IS
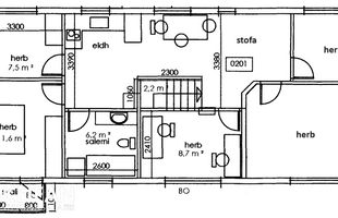
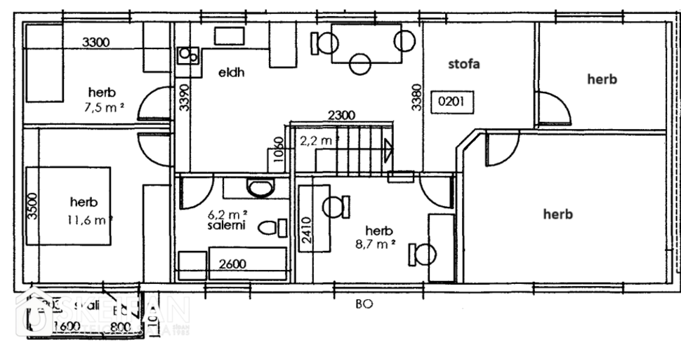
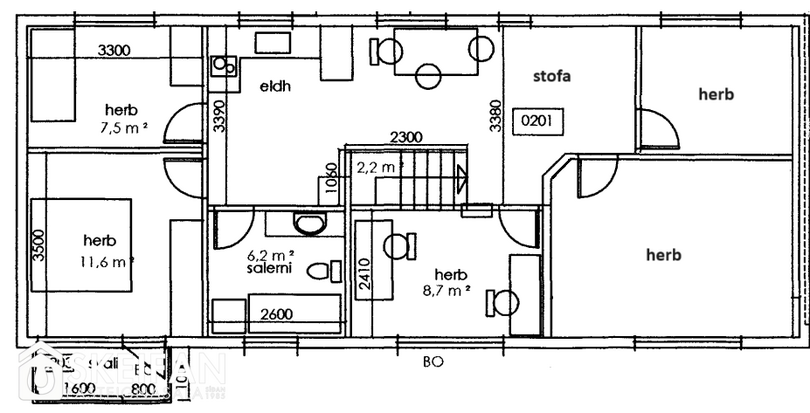
Nánari lýsing:
Anddyri: Parket á gólfi og stiga.
Eldhús: Ágætis skápapláss. Parket á gólfi.
Stofa: Parket á gólfi. Stígi niður i anddyri.
Fimm svefnherbergi: Parket á gólfi, gluggi á öllum herbergjum, fataskápur í tveimur herbergjum og útgengt út á svalir úr hjónaherbergi.
Baðherbergi: Litil innrétting, baðkar, salerni og flísar á gólfi.
Geymsla: Staðsett á jarðhæð. 4,4 m² að stærð.
Bílskúr: 33,5 m² töfaldur bílskúr. Aðstaða fyrir þvottavél í bílskúr. Útgengt er út bilastæði á hlið hússins.
Seljandi hefur ekki búið í eigninni og þekkir ekki ástand hennar umfram það sem kemur fram í opinberum gögnum. Seljandi hvetur því væntanlega kaupendur til að skoða eignina vel með það í huga. Eignin selst í því ástandi sem hún er í og mun seljandi ekki gera neinar endurbætur á henni fyrir sölu.
Uppdrættirnir sem eru samþykktir eru ekki í samræmi við innra né ytra skipulag og útlit hússins í dag.
ALLAR NÁNARI UPPLÝSINGAR VEITIR:
Halldór Kristján / Löggiltur fasteignasali / sími: 618-9999 / HALLDOR@SKEIFAN.IS
Kostnaður kaupanda vegna kaupa: Stimpilgjald kaupsamnings einstaklinga er 0,8% og lögaðila 1,6% af fasteignamati eignar. Lántökugjald getur verið breytilegt eftir lánastofnunum, oftast 1%. Þinglýsingargjald er 2.700 kr fyrir hvert skjal. Þjónustu- og umsýslugjald til fasteignasölu skv. kauptilboði.
Um skoðunar- og aðgæsluskyldu: Í lögum um fasteignakaup nr. 40/2002 er kveðið á um ríka skoðunarskyldu kaupenda á fasteignum. Skeifan fasteignasala bendir öllum sem hugsa sér að kaupa, að kynna sér vel ástand fasteignarinnar við skoðun fyrir tilboðsgerð og leita til sérfræðinga um nánari ástandsskoðun ef þörf þykir.
Forsendur söluyfirlits: Söluyfirlit er samið af fasteignasala í samræmi við ákvæði laga nr. 70/2015. Þær upplýsingar sem fram koma í söluyfirliti þessu eru sóttar í opinberar skrár, til seljanda sjálfs og eftir atvikum til húsfélags. Seljandi veitir upplýsingar um eign í samræmi við upplýsingaskyldu laga um fasteignakaup nr. 40/2002. Fasteignasali sannreynir að þær upplýsingar séu réttar með sjónskoðun á eigninni. Fasteignasali getur ekki fullyrt um ástand og eiginleika þeirra hluta fasteigna sem ekki eru aðgengilegir og sjást ekki berum augum, t.d. lagnir, dren, skólp og þak.
SKEIFAN fasteignasala kynnir 147,1 m², 6ja herbergja íbúð við Túngötu 22b í Keflavík.
Fasteignamat næsta árs: 45.750.000 kr
Skv. HMS er birt stærð eignar 147,1 m².
ALLAR NÁNARI UPPLÝSINGAR VEITIR:
Halldór Kristján / Löggiltur fasteignasali / sími: 618-9999 / HALLDOR@SKEIFAN.IS
Nánari lýsing:
Anddyri: Parket á gólfi og stiga.
Eldhús: Ágætis skápapláss. Parket á gólfi.
Stofa: Parket á gólfi. Stígi niður i anddyri.
Fimm svefnherbergi: Parket á gólfi, gluggi á öllum herbergjum, fataskápur í tveimur herbergjum og útgengt út á svalir úr hjónaherbergi.
Baðherbergi: Litil innrétting, baðkar, salerni og flísar á gólfi.
Geymsla: Staðsett á jarðhæð. 4,4 m² að stærð.
Bílskúr: 33,5 m² töfaldur bílskúr. Aðstaða fyrir þvottavél í bílskúr. Útgengt er út bilastæði á hlið hússins.
Seljandi hefur ekki búið í eigninni og þekkir ekki ástand hennar umfram það sem kemur fram í opinberum gögnum. Seljandi hvetur því væntanlega kaupendur til að skoða eignina vel með það í huga. Eignin selst í því ástandi sem hún er í og mun seljandi ekki gera neinar endurbætur á henni fyrir sölu.
Uppdrættirnir sem eru samþykktir eru ekki í samræmi við innra né ytra skipulag og útlit hússins í dag.
ALLAR NÁNARI UPPLÝSINGAR VEITIR:
Halldór Kristján / Löggiltur fasteignasali / sími: 618-9999 / HALLDOR@SKEIFAN.IS
Kostnaður kaupanda vegna kaupa: Stimpilgjald kaupsamnings einstaklinga er 0,8% og lögaðila 1,6% af fasteignamati eignar. Lántökugjald getur verið breytilegt eftir lánastofnunum, oftast 1%. Þinglýsingargjald er 2.700 kr fyrir hvert skjal. Þjónustu- og umsýslugjald til fasteignasölu skv. kauptilboði.
Um skoðunar- og aðgæsluskyldu: Í lögum um fasteignakaup nr. 40/2002 er kveðið á um ríka skoðunarskyldu kaupenda á fasteignum. Skeifan fasteignasala bendir öllum sem hugsa sér að kaupa, að kynna sér vel ástand fasteignarinnar við skoðun fyrir tilboðsgerð og leita til sérfræðinga um nánari ástandsskoðun ef þörf þykir.
Forsendur söluyfirlits: Söluyfirlit er samið af fasteignasala í samræmi við ákvæði laga nr. 70/2015. Þær upplýsingar sem fram koma í söluyfirliti þessu eru sóttar í opinberar skrár, til seljanda sjálfs og eftir atvikum til húsfélags. Seljandi veitir upplýsingar um eign í samræmi við upplýsingaskyldu laga um fasteignakaup nr. 40/2002. Fasteignasali sannreynir að þær upplýsingar séu réttar með sjónskoðun á eigninni. Fasteignasali getur ekki fullyrt um ástand og eiginleika þeirra hluta fasteigna sem ekki eru aðgengilegir og sjást ekki berum augum, t.d. lagnir, dren, skólp og þak.
SKEIFAN SKILAR ÁRANGRI - SÍÐAN 1985
Skeifan fasteignasala | Suðurlandsbraut 46 | 108 Reykjavík | Opið frá kl. 9-17 mánudaga til föstudaga | www.skeifan.is
Skeifan á Facebook
Ár
Fasteignamat
Kaupverð
Stærð
Fermetraverð
8. apr. 2008
14.290.000 kr.
16.800.000 kr.
147.1 m²
114.208 kr.
Byggt á upplýsingum úr Þjóðskrá Íslands frá 2006-2026