Löggiltir fasteignasalar innan Félags fasteignasala:
Aðalheiður Karlsdóttir
Upplýsingar
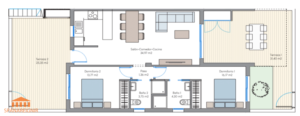
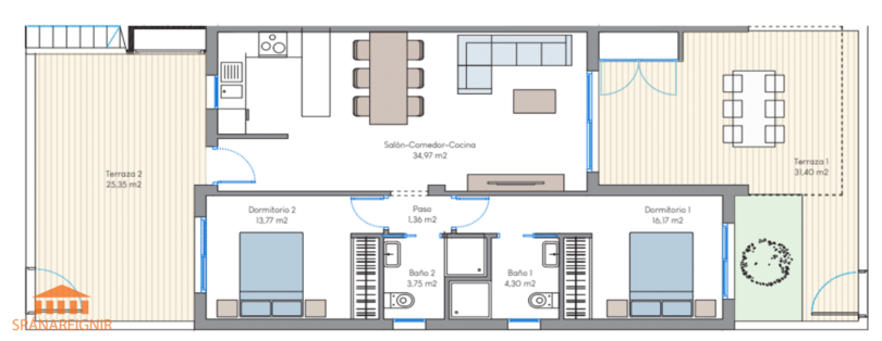
131 m²
3 herb.
2 baðherb.
2 svefnh.
Þvottahús
Sérinngangur
Bílastæði
Lýsing
SPÁNAREIGNIR KYNNIR:
*FLOTTAR EFRI EÐA NEÐRI SÉR HÆÐIR* - * Stæði í bílakjallara*
Stórglæsilegar, bjartar og rúmgóðar 3ja herb. íbúðir í tveggja hæða húsum í lokuðum garði með sameiginlegri sundlaug á Los Balcones svæðinu, um 40-50 mín akstur suður af Alicante. Tvö svefnherbergi, tvö baðherbergi, góð stofa, eldhús opið við borðstofu. Hægt er að velja um íbúðir á neðri hæð með lokuðum sérgarði eða penthouseíbúðir á efri hæð með góðum svölum út frá stofu og auk þess stórum þaksvölum yfir íbúðinni. Stæði í bílakjallara.
Hér er um að ræða frábært lokað resort með góðri útiaðstöðu. Þrjár sundlaugar, heitur pottur, mini golf völlur, tennis völlur, leikaðstaða fyrir börnin, líkamsrækt og spa.
Frábærar eignir til útleigu og því góð fjárfesting. Öll þjónusta fyrir útleigu á staðnum, eftirlit, þrif, afhending lykla og markaðssetning á yfir 50 bókunarsíðum.
Tilvalið til að sameina lífsgæði í sólinni og fjárfestingu með góðri ávöxtun.
Allar upplýsingar gefa
Aðalheiður Karlsdóttir, löggiltur fasteignasali. GSM 00354 893 2495. adalheidur@spanareignir.is,
Berta Hawkins, löggiltur fasteignasali, GSM 0034 615 112 869. berta@spanareignir.is
Karl Bernburg, viðskiptafræðingur. GSM 00354 777 4277. karl@spanareignir.is
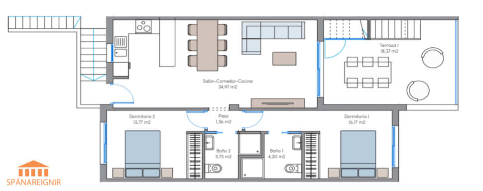
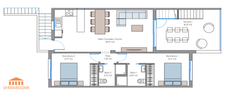
Skipulag:
Komið er inn í opið rými þar sem er rúmgóð stofa, borðstofa og opið eldhús við borðstofu. Eldhúsið er fallega innréttað og tengist borðstofunni á skemmtilegan máta. Tvö svefnherbergi. Sér baðherbergi með einu svefnherberginu og auk þess annað baðherbergi.
Innbyggt kerfi fyrir loftkælingu og hitun.
Góðir golfvellir eru í næsta nágrenni, t.d. Las Ramblas, Campoamor, Villamartin, Vistabella, La Finca og Las Colinas.
Ca. 10 mín akstur er niður á ströndina og ca. 10 mín. akstur í nýju verslunarmiðstöðina La Zenia Boulevard.
Verslanir og veitingastaðir í göngufæri.
Hér er um að ræða góðar eignir á góðu verði fyrir fólk sem kann að njóta lífsins.
Verð miðað við gengi 1 Evra = 145 ISK.
Hægt er að velja 75 fm. íbúð á neðri hæð með tveimur veröndum, annari framan við húsið og hinni út frá stofu, 31 fm. + 25, samtals sérafnotaflögur 131 fm.
Verð á íbúðum á neðri hæð er frá 279.900 Evrum (ISK40.100.000)
Einnig er hægt að velja 75 fm. íbúð á efri hæð með 18 fm. svölum út frá stofu og 86 fm. sér þakverönd, samtals sérafnotaflötur 179 fm.
Verð á íbúðum á efri hæð er frá 309.900 Evrum (ISK44.900.000).
Ofan á verðin leggst 10% skattur og ca. 3% stimpilgjöld og annar kostnaður við kaupin, þe. ca. 13% samtals.
Rafstýrðir gluggahlerar.
Lagt fyrir air - con
Í boði eru hagstæðir pakkar með húsgögnum og rafmagnstækum í eldhús.
Vandaður byggingaraðili.
Íbúðirnar eru í byggingu og verða afhentar tilbúnar í júní-september 2026.
Aðeins örfáar íbúðir eftir.
Verslanir og veitingastaðir í göngufæri. Glæsilegt útsýni frá flestum íbúðum á efri hæðum.
Við höfum selt fasteignir á Spáni síðan 2001. Tryggir þekkingu, reynslu og öryggi.
Eitt besta loftslag í heimi samkvæmt Alþjóða heilbrigðistofnunni, WHO.
SKOÐUNARFERÐIR:
Vertu velkomin í skoðunarferð til Spánar með flugi og gistingu, sérsniðna að þínum þörfum. Við endurgreiðum þér flug og gistingu fyrir allt að 2 við kaup á nýrri eign ef af viðskiptum verður.
Mögulegt er að fjármagna hluta kaupverðs með láni frá spænskum banka með hagstæðum vöxtum.
Sjá nánar um fasteignakaup á Spáni á heimasíðunni okkar: http://www.spanareignir.is
Kostnaður við kaupin:
10% IVA (spænskur söluskattur) af kaupverði eignarinnar. Auk þess má gera ráð fyrir ca. 3% kostnaði vegna stimpilgjalda og annars kostnaðar við kaupin, þ.e. samtals getur kostnaður vegna kaupa á fasteign á Spáni því farið upp í ca. 13%.
Eiginleikar: ný eign, sameiginlegur sundlaugargarður, sér garður, þakverönd,útsýni, air con, stæði í bílakjallara,
Svæði: Costa Blanca, Los Balcones,
*FLOTTAR EFRI EÐA NEÐRI SÉR HÆÐIR* - * Stæði í bílakjallara*
Stórglæsilegar, bjartar og rúmgóðar 3ja herb. íbúðir í tveggja hæða húsum í lokuðum garði með sameiginlegri sundlaug á Los Balcones svæðinu, um 40-50 mín akstur suður af Alicante. Tvö svefnherbergi, tvö baðherbergi, góð stofa, eldhús opið við borðstofu. Hægt er að velja um íbúðir á neðri hæð með lokuðum sérgarði eða penthouseíbúðir á efri hæð með góðum svölum út frá stofu og auk þess stórum þaksvölum yfir íbúðinni. Stæði í bílakjallara.
Hér er um að ræða frábært lokað resort með góðri útiaðstöðu. Þrjár sundlaugar, heitur pottur, mini golf völlur, tennis völlur, leikaðstaða fyrir börnin, líkamsrækt og spa.
Frábærar eignir til útleigu og því góð fjárfesting. Öll þjónusta fyrir útleigu á staðnum, eftirlit, þrif, afhending lykla og markaðssetning á yfir 50 bókunarsíðum.
Tilvalið til að sameina lífsgæði í sólinni og fjárfestingu með góðri ávöxtun.
Allar upplýsingar gefa
Aðalheiður Karlsdóttir, löggiltur fasteignasali. GSM 00354 893 2495. adalheidur@spanareignir.is,
Berta Hawkins, löggiltur fasteignasali, GSM 0034 615 112 869. berta@spanareignir.is
Karl Bernburg, viðskiptafræðingur. GSM 00354 777 4277. karl@spanareignir.is
Skipulag:
Komið er inn í opið rými þar sem er rúmgóð stofa, borðstofa og opið eldhús við borðstofu. Eldhúsið er fallega innréttað og tengist borðstofunni á skemmtilegan máta. Tvö svefnherbergi. Sér baðherbergi með einu svefnherberginu og auk þess annað baðherbergi.
Innbyggt kerfi fyrir loftkælingu og hitun.
Góðir golfvellir eru í næsta nágrenni, t.d. Las Ramblas, Campoamor, Villamartin, Vistabella, La Finca og Las Colinas.
Ca. 10 mín akstur er niður á ströndina og ca. 10 mín. akstur í nýju verslunarmiðstöðina La Zenia Boulevard.
Verslanir og veitingastaðir í göngufæri.
Hér er um að ræða góðar eignir á góðu verði fyrir fólk sem kann að njóta lífsins.
Verð miðað við gengi 1 Evra = 145 ISK.
Hægt er að velja 75 fm. íbúð á neðri hæð með tveimur veröndum, annari framan við húsið og hinni út frá stofu, 31 fm. + 25, samtals sérafnotaflögur 131 fm.
Verð á íbúðum á neðri hæð er frá 279.900 Evrum (ISK40.100.000)
Einnig er hægt að velja 75 fm. íbúð á efri hæð með 18 fm. svölum út frá stofu og 86 fm. sér þakverönd, samtals sérafnotaflötur 179 fm.
Verð á íbúðum á efri hæð er frá 309.900 Evrum (ISK44.900.000).
Ofan á verðin leggst 10% skattur og ca. 3% stimpilgjöld og annar kostnaður við kaupin, þe. ca. 13% samtals.
Rafstýrðir gluggahlerar.
Lagt fyrir air - con
Í boði eru hagstæðir pakkar með húsgögnum og rafmagnstækum í eldhús.
Vandaður byggingaraðili.
Íbúðirnar eru í byggingu og verða afhentar tilbúnar í júní-september 2026.
Aðeins örfáar íbúðir eftir.
Verslanir og veitingastaðir í göngufæri. Glæsilegt útsýni frá flestum íbúðum á efri hæðum.
Við höfum selt fasteignir á Spáni síðan 2001. Tryggir þekkingu, reynslu og öryggi.
Eitt besta loftslag í heimi samkvæmt Alþjóða heilbrigðistofnunni, WHO.
SKOÐUNARFERÐIR:
Vertu velkomin í skoðunarferð til Spánar með flugi og gistingu, sérsniðna að þínum þörfum. Við endurgreiðum þér flug og gistingu fyrir allt að 2 við kaup á nýrri eign ef af viðskiptum verður.
Mögulegt er að fjármagna hluta kaupverðs með láni frá spænskum banka með hagstæðum vöxtum.
Sjá nánar um fasteignakaup á Spáni á heimasíðunni okkar: http://www.spanareignir.is
Kostnaður við kaupin:
10% IVA (spænskur söluskattur) af kaupverði eignarinnar. Auk þess má gera ráð fyrir ca. 3% kostnaði vegna stimpilgjalda og annars kostnaðar við kaupin, þ.e. samtals getur kostnaður vegna kaupa á fasteign á Spáni því farið upp í ca. 13%.
Eiginleikar: ný eign, sameiginlegur sundlaugargarður, sér garður, þakverönd,útsýni, air con, stæði í bílakjallara,
Svæði: Costa Blanca, Los Balcones,