Löggiltir fasteignasalar innan Félags fasteignasala:
Aðalheiður Karlsdóttir
Upplýsingar
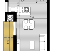
79 m²
3 herb.
2 baðherb.
2 svefnh.
Sérinngangur
Lýsing
SPÁNAREIGNIR KYNNIR:
*FLOTTAR ÍBÚÐIR Í LITLUM FJÖLBÝLISHÚSUM*-*AFHENDAST FULLBÚIN FALLEGUM HÚSGÖGNUM*
Stórglæsilegar, bjartar og vel hannaðar íbúðir í vönduðum tveggja hæða litlum fjölbýlishúsum í lokuðum garði með sameiginlegri sundlaug. Vel staðsett á hinu vinsæla Dona Pepa svæði, um 30 mín akstur suður af Alicante. Tvö svefnherbergi, tvö baðherbergi, góð stofa, eldhús opið við borðstofu. Hægt er að velja um íbúðir á neðri hæð með lokuðum sérgarði eða íbúðir á efri hæð með góðum svölum út frá stofu og auk þess stórum þaksvölum yfir íbúðinni. Bein kaup frá traustum byggingaraðili með áratuga reynslu.
Upplýsingar gefa Aðalheiður Karlsdóttir, löggiltur fasteignasali.GSM 00354 893 2495. adalheidur@spanareignir.is,
Berta Hawkins, löggiltur fasteignasali, berta@spanareignir.is GSM 0034 615 112 869.
Skipulag:
Komið er inn í opið rými þar sem er rúmgóð stofa, borðstofa og opið eldhús við borðstofu. Eldhúsið er fallega innréttað og tengist borðstofunni á skemmtilegan máta. Tvö svefnherbergi og tvö baðherbergi.
Innbyggt kerfi fyrir loftkælingu og hitun. Hiti er í gólfum á baðherbergjum. Geymsla.
Íbúðum á neðri hæð fylgir sér garður við húsið þar sem er gott pláss, t.d. til að grilla og borða úti og njóta sólarinnar.
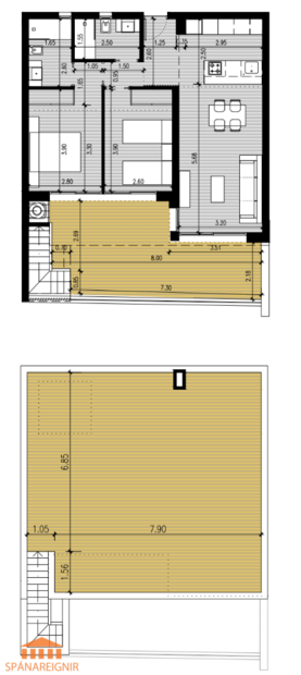
Íbúðum á efri hæð fylgir stór sér þakverönd með frábærri sólbaðsaðstöðu, skemmtilegri grillaðstöðu og góðu útsýni.
Glæsilegur sameiginlegur lokaður sundlaugagarður með góðri aðstöðu.
Góðir golfvellir eru í næsta nágrenni, t.d. La Marquesa, og ca. 10 mín akstur á La Finca, glæsilegan PGA golfvöll. Einnig eru fleiri góðir golfvellir í næsta nágrenni, t.d. Las Ramblas, Campoamor, Villamartin og Las Colinas.
Ca. 10 mín akstur er niður á ströndina í Guardamar og ca. 15 mín. akstur í nýju verslunarmiðstöðina La Zenia Boulevard.
Gott úrval verslana og veitingastaða er í göngufæri, auk þess er stutt í heilsugæslu, tennisvöll, fótboltavöll, crazy golf, SPA ofl.
Hér er um að ræða algjöra lúxuseign fyrir fólk sem kann að njóta lífsins.
Verð frá 279.000,- Evrur (ISK 40.400.000,- miðað við gengi 1E=145 ISK.) + 10% skattur og ca. 3% kostn. vegna kaupanna.
Íbúðirnar afhendast fullbúnar húsgögnum og heimilistækjum, rúmfatnaði og handklæðum, þannig að hægt er að flytja beint inn.
Afhending er í maí - nóv. 2026.
Ath. myndirnar eru úr sýningaríbúð frá sama verktaka, en lokaútlit getur breyst lítillega.
Við höfum selt fasteignir á Spáni síðan 2001. Tryggir þekkingu, reynslu og öryggi.
Eitt besta loftslag í heimi samkvæmt Alþjóða heilbrigðistofnunni, WHO.
SKOÐUNARFERÐIR:
Við aðstoðum kaupendur við að skipuleggja skoðunarferðir og tökum þátt í kostnaði vegna þeirra, ef af viðskiptum verður.
Mögulegt er að fjármagna hluta kaupverðs með láni frá spænskum banka.
Sjá nánar um fasteignakaup á Spáni á heimasíðunni okkar: www.spanareignir.is
Kostnaður við kaupin:
10% IVA (spænskur söluskattur) af kaupverði eignarinnar. Auk þess má gera ráð fyrir ca. 3% kostnaði vegna stimpilgjalda og annars kostnaðar við kaupin, þ.e. samtals getur kostnaður vegna kaupa á fasteign á Spáni því farið upp í ca. 13%.
Eiginleikar: sér garður, þakverönd, sundlaugargarður, air con, bílastæði, lyfta,
Svæði: Costa Blanca, Dona Pepa,
*FLOTTAR ÍBÚÐIR Í LITLUM FJÖLBÝLISHÚSUM*-*AFHENDAST FULLBÚIN FALLEGUM HÚSGÖGNUM*
Stórglæsilegar, bjartar og vel hannaðar íbúðir í vönduðum tveggja hæða litlum fjölbýlishúsum í lokuðum garði með sameiginlegri sundlaug. Vel staðsett á hinu vinsæla Dona Pepa svæði, um 30 mín akstur suður af Alicante. Tvö svefnherbergi, tvö baðherbergi, góð stofa, eldhús opið við borðstofu. Hægt er að velja um íbúðir á neðri hæð með lokuðum sérgarði eða íbúðir á efri hæð með góðum svölum út frá stofu og auk þess stórum þaksvölum yfir íbúðinni. Bein kaup frá traustum byggingaraðili með áratuga reynslu.
Upplýsingar gefa Aðalheiður Karlsdóttir, löggiltur fasteignasali.GSM 00354 893 2495. adalheidur@spanareignir.is,
Berta Hawkins, löggiltur fasteignasali, berta@spanareignir.is GSM 0034 615 112 869.
Skipulag:
Komið er inn í opið rými þar sem er rúmgóð stofa, borðstofa og opið eldhús við borðstofu. Eldhúsið er fallega innréttað og tengist borðstofunni á skemmtilegan máta. Tvö svefnherbergi og tvö baðherbergi.
Innbyggt kerfi fyrir loftkælingu og hitun. Hiti er í gólfum á baðherbergjum. Geymsla.
Íbúðum á neðri hæð fylgir sér garður við húsið þar sem er gott pláss, t.d. til að grilla og borða úti og njóta sólarinnar.
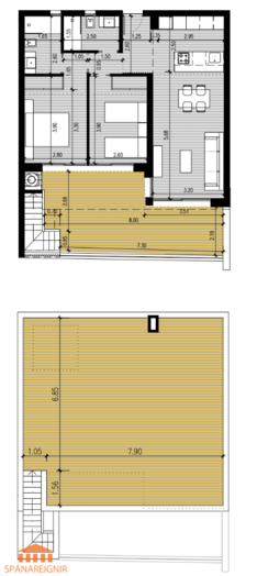
Íbúðum á efri hæð fylgir stór sér þakverönd með frábærri sólbaðsaðstöðu, skemmtilegri grillaðstöðu og góðu útsýni.
Glæsilegur sameiginlegur lokaður sundlaugagarður með góðri aðstöðu.
Góðir golfvellir eru í næsta nágrenni, t.d. La Marquesa, og ca. 10 mín akstur á La Finca, glæsilegan PGA golfvöll. Einnig eru fleiri góðir golfvellir í næsta nágrenni, t.d. Las Ramblas, Campoamor, Villamartin og Las Colinas.
Ca. 10 mín akstur er niður á ströndina í Guardamar og ca. 15 mín. akstur í nýju verslunarmiðstöðina La Zenia Boulevard.
Gott úrval verslana og veitingastaða er í göngufæri, auk þess er stutt í heilsugæslu, tennisvöll, fótboltavöll, crazy golf, SPA ofl.
Hér er um að ræða algjöra lúxuseign fyrir fólk sem kann að njóta lífsins.
Verð frá 279.000,- Evrur (ISK 40.400.000,- miðað við gengi 1E=145 ISK.) + 10% skattur og ca. 3% kostn. vegna kaupanna.
Íbúðirnar afhendast fullbúnar húsgögnum og heimilistækjum, rúmfatnaði og handklæðum, þannig að hægt er að flytja beint inn.
Afhending er í maí - nóv. 2026.
Ath. myndirnar eru úr sýningaríbúð frá sama verktaka, en lokaútlit getur breyst lítillega.
Við höfum selt fasteignir á Spáni síðan 2001. Tryggir þekkingu, reynslu og öryggi.
Eitt besta loftslag í heimi samkvæmt Alþjóða heilbrigðistofnunni, WHO.
SKOÐUNARFERÐIR:
Við aðstoðum kaupendur við að skipuleggja skoðunarferðir og tökum þátt í kostnaði vegna þeirra, ef af viðskiptum verður.
Mögulegt er að fjármagna hluta kaupverðs með láni frá spænskum banka.
Sjá nánar um fasteignakaup á Spáni á heimasíðunni okkar: www.spanareignir.is
Kostnaður við kaupin:
10% IVA (spænskur söluskattur) af kaupverði eignarinnar. Auk þess má gera ráð fyrir ca. 3% kostnaði vegna stimpilgjalda og annars kostnaðar við kaupin, þ.e. samtals getur kostnaður vegna kaupa á fasteign á Spáni því farið upp í ca. 13%.
Eiginleikar: sér garður, þakverönd, sundlaugargarður, air con, bílastæði, lyfta,
Svæði: Costa Blanca, Dona Pepa,