Upplýsingar
Byggt 2003
71,5 m²
3 herb.
1 baðherb.
2 svefnh.
Útsýni
Sérinngangur
Lýsing
Múlabyggð 311, Borgarbyggð. Ca. 20 mínútna akstur frá Borgarnesi.
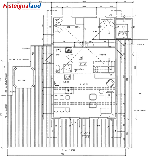
Fasteignaland kynnir: Sumarhús í Múlabyggð í Borgarbyggð sem var byggt árið 2003 Um er ræða 71,5 fm samkvæmt Þjóðskrá Íslands. Í húsinu er einnig milliloft sem er ekki inn í fm stærð hússins. Í þessu húsi er hitakútur fyrir neysluvatn og rafmagnsofnar. Húsið liggur á steyptum veggjum og eru tvær stórar geymslur undir húsinu.
Lýsing á eign: Forstofa/hol með parketi á gólfi og fatahengi. Tvö herbergi með parketi á gólfi. Baðherbergi með flísum á gólfi, Sturtuklefa, tengi fyrir þvottavél og útgengi út á sólpall. Stofan og eldhúsið eru í sama rými með góðri lofthæð. Stofan er með parketi á gólfi og útgengi út á suður sólpall. Eldhúsið er með parketi á gólfi, fallegri viðarinnréttingu, eyju, sambyggðri eldavél með keramik helluborði og uppþvottavél.
Milliloft: Stórt og rúmgott með parketi á gólfi, opnanlegu fagi. Milliloftið er nýtt i dag sem þriðja herbergið.
Geymsla 1: Skráð 3,2 fm, Gengið inn af sólpalli við inngang hússins og nýtt fyrir grill og fl.
Geymsla 2: Undir húsinu nýtt fyrir garðhúsgögn og fl.
Geymsla 3: Einangruð geymsla en þar eru inntök hússins, hitakútur og fl.
Stór stólpallur með girðingu og skjólgirðingu. Heitur pottur (rafmagnspottur).
Lóðin er 8600 fm leigulóð kjarri og skógi vaxin og leigusamningur nýr til 25 ára.
Lóðarleiga er um kr. 150.000.-
Árgjald í félag sumarhúsa eiganda er tvískipt, kalt vatn ca. kr. 25.000 og félagsgjald ca. kr. 20.000.
Möguleiki er að fá hluta af innbúi með í kaupum á eigninni.
Þetta er falleg eign og vel um gengin. Góð aðkoma og næg bílastæði.
Upplýsingar gefa:
Heimir Eðvarðsson, löggiltur fasteignasali s. 893-1485, netfang: heimir@fasteignaland.is
Árni Björn Erlingsson, löggiltur fasteignasali s. 898-0508 netfang: arni@fasteignaland.is
Jón Smári Einarsson, löggiltur fasteignasali s. 860-6400, netfang: jonsmari@fasteignaland.is
Skoðunarskylda kaupanda:
Í lögum um fasteignakaup nr. 40/2002 er kveðið á um ríka skoðunarskyldu kaupenda á fasteignum. Fasteignaland fasteignasala bendir væntanlegum kaupendum á að kynna sér vel ástand fasteigna við skoðun og fyrir tilboðsgerð og ef þurfa þykir að leita til sérfræðinga um nánari ástandsskoðun.
Forsendur söluyfirlits:
Söluyfirlit er samið af fasteignasala í samræmi við ákvæði laga nr. 70/2015. Þær upplýsingar sem fram koma í söluyfirliti þessu eru sóttar í opinberar skrár, til seljanda sjálfs og eftir atvikum til húsfélags. Seljandi veitir upplýsingar um eign í samræmi við upplýsingaskyldu laga um fasteignakaup nr. 40/2002. Fasteignasali sannreynir að þær upplýsingar séu réttar með sjónskoðun á eigninni.
Fasteignasali getur ekki fullyrt um ástand og eiginleika þeirra hluta fasteigna sem ekki eru aðgengilegir og sjást ekki berum augum, t.d. lagnir, dren, skólp og þak.
Gjöld sem kaupandi þarf að standa straum af vegna kaupanna:
1.Stimpilgjald af kaupsamningi sem er hlutfall af fasteignamati. Stimpilgjald er 0,8% fyrir einstaklinga (0,4% við fyrstu kaup á íbúðarhúsnæði) og 1,6% fyrir lögaðila.
2. Þinglýsingargjald af kaupsamningi, veðskuldabréfum, veðleyfum o.fl. Þinglýsingargjald er kr. 2.700,- fyrir hvert skjal.
3. Lántökugjald lánastofnunar. Um lántökugjald vísast í gjaldskrá viðkomandi lánveitanda.
4. Umsýslugjald kaupanda kr. 69.900 .
5. Þegar um nýbyggingu er að ræða greiðir kaupandi skipulagsgjald, 0,3% af endanlegu brunabótamáti, þegar það er lagt á.
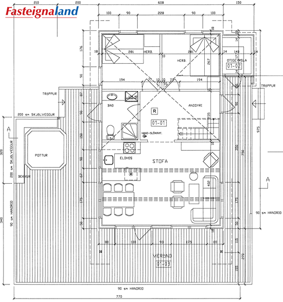
Fasteignaland kynnir: Sumarhús í Múlabyggð í Borgarbyggð sem var byggt árið 2003 Um er ræða 71,5 fm samkvæmt Þjóðskrá Íslands. Í húsinu er einnig milliloft sem er ekki inn í fm stærð hússins. Í þessu húsi er hitakútur fyrir neysluvatn og rafmagnsofnar. Húsið liggur á steyptum veggjum og eru tvær stórar geymslur undir húsinu.
Lýsing á eign: Forstofa/hol með parketi á gólfi og fatahengi. Tvö herbergi með parketi á gólfi. Baðherbergi með flísum á gólfi, Sturtuklefa, tengi fyrir þvottavél og útgengi út á sólpall. Stofan og eldhúsið eru í sama rými með góðri lofthæð. Stofan er með parketi á gólfi og útgengi út á suður sólpall. Eldhúsið er með parketi á gólfi, fallegri viðarinnréttingu, eyju, sambyggðri eldavél með keramik helluborði og uppþvottavél.
Milliloft: Stórt og rúmgott með parketi á gólfi, opnanlegu fagi. Milliloftið er nýtt i dag sem þriðja herbergið.
Geymsla 1: Skráð 3,2 fm, Gengið inn af sólpalli við inngang hússins og nýtt fyrir grill og fl.
Geymsla 2: Undir húsinu nýtt fyrir garðhúsgögn og fl.
Geymsla 3: Einangruð geymsla en þar eru inntök hússins, hitakútur og fl.
Stór stólpallur með girðingu og skjólgirðingu. Heitur pottur (rafmagnspottur).
Lóðin er 8600 fm leigulóð kjarri og skógi vaxin og leigusamningur nýr til 25 ára.
Lóðarleiga er um kr. 150.000.-
Árgjald í félag sumarhúsa eiganda er tvískipt, kalt vatn ca. kr. 25.000 og félagsgjald ca. kr. 20.000.
Möguleiki er að fá hluta af innbúi með í kaupum á eigninni.
Þetta er falleg eign og vel um gengin. Góð aðkoma og næg bílastæði.
Upplýsingar gefa:
Heimir Eðvarðsson, löggiltur fasteignasali s. 893-1485, netfang: heimir@fasteignaland.is
Árni Björn Erlingsson, löggiltur fasteignasali s. 898-0508 netfang: arni@fasteignaland.is
Jón Smári Einarsson, löggiltur fasteignasali s. 860-6400, netfang: jonsmari@fasteignaland.is
Skoðunarskylda kaupanda:
Í lögum um fasteignakaup nr. 40/2002 er kveðið á um ríka skoðunarskyldu kaupenda á fasteignum. Fasteignaland fasteignasala bendir væntanlegum kaupendum á að kynna sér vel ástand fasteigna við skoðun og fyrir tilboðsgerð og ef þurfa þykir að leita til sérfræðinga um nánari ástandsskoðun.
Forsendur söluyfirlits:
Söluyfirlit er samið af fasteignasala í samræmi við ákvæði laga nr. 70/2015. Þær upplýsingar sem fram koma í söluyfirliti þessu eru sóttar í opinberar skrár, til seljanda sjálfs og eftir atvikum til húsfélags. Seljandi veitir upplýsingar um eign í samræmi við upplýsingaskyldu laga um fasteignakaup nr. 40/2002. Fasteignasali sannreynir að þær upplýsingar séu réttar með sjónskoðun á eigninni.
Fasteignasali getur ekki fullyrt um ástand og eiginleika þeirra hluta fasteigna sem ekki eru aðgengilegir og sjást ekki berum augum, t.d. lagnir, dren, skólp og þak.
Gjöld sem kaupandi þarf að standa straum af vegna kaupanna:
1.Stimpilgjald af kaupsamningi sem er hlutfall af fasteignamati. Stimpilgjald er 0,8% fyrir einstaklinga (0,4% við fyrstu kaup á íbúðarhúsnæði) og 1,6% fyrir lögaðila.
2. Þinglýsingargjald af kaupsamningi, veðskuldabréfum, veðleyfum o.fl. Þinglýsingargjald er kr. 2.700,- fyrir hvert skjal.
3. Lántökugjald lánastofnunar. Um lántökugjald vísast í gjaldskrá viðkomandi lánveitanda.
4. Umsýslugjald kaupanda kr. 69.900 .
5. Þegar um nýbyggingu er að ræða greiðir kaupandi skipulagsgjald, 0,3% af endanlegu brunabótamáti, þegar það er lagt á.