Löggiltir fasteignasalar innan Félags fasteignasala:
Sverrir Kristinsson
Kjartan Hallgeirsson
Guðlaugur Ingi Guðlaugsson
Daði Hafþórsson
Gunnar Helgi Einarsson
Gunnar Bergmann Jónsson
Lilja Guðmundsdóttir
Jenný Sandra Gunnarsdóttir
Kári Sighvatsson
Vista
fjölbýlishús

Klettakór 1B

203 Kópavogur

137.900.000 kr.

776.027 þ.kr./m2
Fasteignanúmer

F2282181

Fasteignamat

106.500.000 kr.

Brunabótamat

97.870.000 kr.

Áhvílandi

0 kr.

Arion banki – Reikna lán
Upplýsingar
Verðsaga
svg
Byggt 2007
svg
177,7 m²
svg
4 herb.
svg
2 baðherb.
svg
3 svefnh.
svg
Þvottahús
svg
Sérinngangur
svg
Bílastæði

Lýsing

Eignamiðlun kynnir:

Mjög rúmgóð og glæsileg 177,7 fm íbúð við Klettakór 1B í Kópavogi. Sér inngangur. 6 íbúðir eru í Klettakór 1B. Glæsilegt útsýni er úr íbúðinni m.a. yfir Elliðavatn. Stórar svalir til suðvesturs. Íbúðin skiptist m.a. í stóra stofu, mjög rúmgott eldhús, þrjú herbergi, tvö baðherbergi, þvottahús, geymslu og forstofu. Íbúðinni fylgir bílastæði í bílageymslu og búið er að setja upp hleðslustöðvar. Sameiginleg lóð með leiktækjum.

Nánari upplýsingar veita: Magnea S. Sverrisdóttir lg. fasteignasali s. 861 8511, magnea@eignamidlun.is og Sverrir Kristinsson lg. fasteignasali.


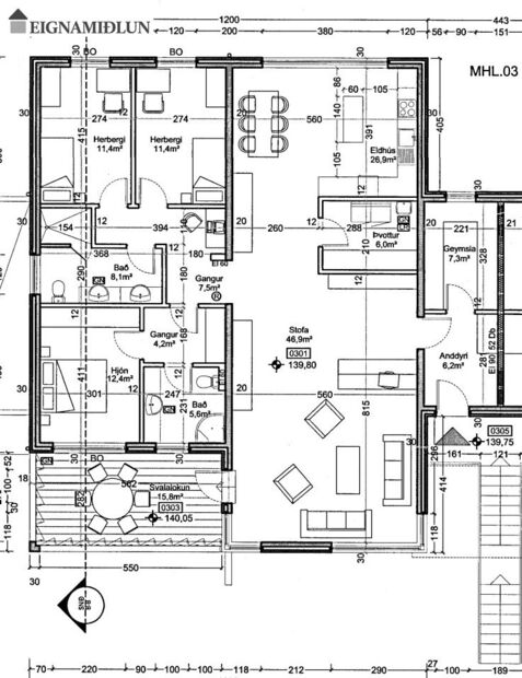
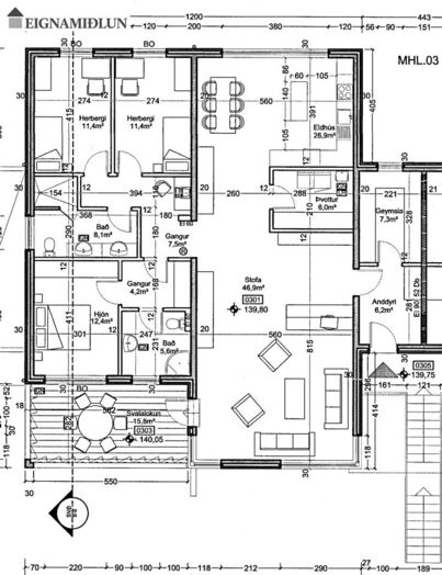
Nánari lýsing:
Forstofa: komið er inn um sér inngang í flísalagða forstofu með skápum.
Stofa: mjög rúmgóð og glæsileg parketlögð stofa. Fallegar stórar hillur eru á einum vegg í stofu. Gengið er út á stórar svalir til suðvesturs með skjólvegg.
Eldhús/borðstofa: eldhúsið og borðstofan eru samliggjandi. Hvít innrétting er í eldhúsi með viðarborðplötu. Stórt helluborð með gasi. Ofn og háfur úr stáli. Eyja er í eldhúsi. Gólf í eldhúsi er flísalagt en parket er á borðstofu. 
Hjónasvíta: komið er inn í hol með fataskápum. Innaf holi eru hjónaherbergi og baðherbergi. Hjónaherbergi er parketlagt og með skápum úr eik. Baðherbergið er flísalagt og með sturtuklefa og hvítri innréttingu. Gluggi er á baðherbergi. 
Herbergi II: gólf er parketlagt.
Herbergi III: gólf er parketlagt. Hvítir skápar eru í herberginu.
Baðherbergi: gólf er flísalagt. Baðkar með sturtu í. Hvít innrétting með tveimur vöskum. Gluggi er á baðherbergi.
Þvottahús: rúmgóð innrétting er í þvottahúsi. Gólf er flísalagt. 
Geymsla: Innaf forstofu er rúmgóð geymsla með góðum skápum. Gluggi er á geymslu. 

Hurðar eru úr eik. Parket á gólfum er viðarparket úr beyki. 

Glæsileg útsýnisíbúð á eftirsóttum stað. Stutt í leikskóla og skóla, verslanir og alla helstu þjónustu.


 

***
Ábyrg þjónusta í áratugi. Eignamiðlun var stofnuð 1957 og er elsta starfandi fasteignasala á Íslandi. Reynsla, heiðarleiki og þekking á fasteignamarkaðnum eru grunnur að farsælum viðskiptum. 

Eignamiðlun Grensásvegi 11, 108 Reykjavík - Opið frá kl. 9-17 mánudaga til fimmtudaga og 9-16 á föstudögum.

Heimasíða Eignamiðlunar

Eignamiðlun á Facebook

Eignamiðlun

Eignamiðlun

Grensásvegi 11, 108 Reykjavík
Ár
Fasteignamat
Kaupverð
Stærð
Fermetraverð
20. mar. 2015
46.250.000 kr.
46.500.000 kr.
177.7 m²
261.677 kr.
30. nóv. 2007
34.805.000 kr.
47.000.000 kr.
177.7 m²
264.491 kr.
Byggt á upplýsingum úr Þjóðskrá Íslands frá 2006-2026
Eignamiðlun

Eignamiðlun

Grensásvegi 11, 108 Reykjavík