Upplýsingar
Verðsaga
Byggt 2022
89,1 m²
4 herb.
1 baðherb.
3 svefnh.
Útsýni
Sérinngangur
Lýsing
Fasteignasalan Hvammur 466 1600
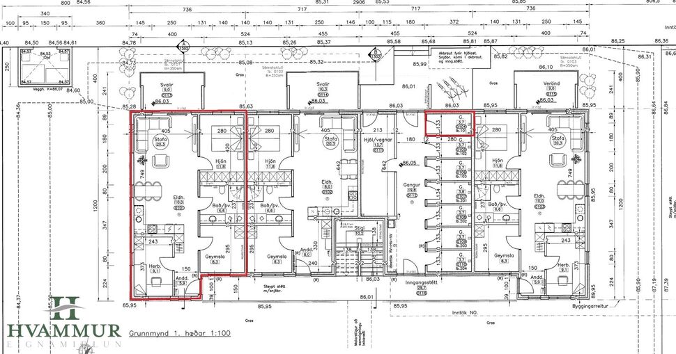
Jóninnuhagi 1 íbúð 101
Nýleg 3-4ra herbergja íbúð með sér inngangi á neðri hæð í austur enda í litlu fjölbýlishúsi í Hagahverfi - stærð 89,1 m²
Eignin skiptist í forstofu, eldhús og stofu í opnu rými, þrjú svefnherbergi (eitt skráð sem geymsla) og baðherbergi með þvottaaðstöðu. Í sameigninni er sér geymsla, skráð 4,9 m² að stærð og sameiginleg hjóla- og vagnageymsla.
Forstofa er með harðparketi á gólfi og tvöföldum fataskáp.
Eldhús, vönduð L-laga svört plastlögð innrétting (Nero oak) með grárri borðplötu og svörtum vask. Mjúklokun er á skúffum og skápum. Uppþvottavél og ísskápur með frysti eru innbyggð í innréttingu og fylgja með við sölu eignar.
Stofa og eldhús eru í opnu rými með ljósu harðparketi á gólfi og gluggum til tveggja átta. Úr stofu er rennihurð út á steypta suður verönd, skráð 9,0 m² að stærð. Veröndin er með galvinseruðu járn handriði og klætt með plast plötum.
Baðherbergi, vönduð svört plastlögð innrétting með grárri borðplötu og speglaskápur fyrir ofan. Stæði er í innréttingu fyrir þvottavél og þurrkara í vinnuhæð. Upphengt wc og walk-in sturta. Gráar flísar eru á gólfi og hluta veggja.
Svefnherbergin eru tvö, bæði með harðparketi á gólfi og fataskápum. Stærð herbergja er skv. teikningum 9,1 og 11,8 m².
Geymsla innan íbúðar er skv. teikningum 8,3 m² að stærð og er notuð sem þriðja svefnherbergið í dag, þar er harðparket á gólfi og fataskápur.
Í sameigninni á jarðhæðinni er sér geymsla, skráð 4,9 m² að stærð og sameiginleg hjóla- og vagnageymsla. Epoxy efni er á gólfi.
Annað
- Innréttingar og skápar er plastlagðar, Nero oak og eru frá www.gks.is
- Gólfefni, ljóst harðparket er á öllum rýmum að baðherbergi undanskildu þar eru gráar flísar.
- Innihurðar eru yfirfelldar hvítar.
- Hljóðdempandi plötur í öllum loftum nema á baðherbergi.
- Innfelld led-lýsing í loftum.
- Stéttar við aðalinngang eru steyptar og með hitalögnum í.
- Húsið er steypt og einangrað að utan og klætt með gráu báruðu stáli og timbri við innganga.
Um skoðunar- og aðgæsluskyldu:
Í lögum um fasteignakaup nr. 40/2002 er kveðið á um ríka skoðunarskyldu kaupenda á fasteignum. Fasteignasalan Hvammur skorar því á væntanlega kaupendur að kynna sér vel ástand fasteigna fyrir kauptilboðsgerð og leita til þar til bærra sérfræðinga um nánari skoðun ef með þarf.
Forsendur söluyfirlits:
Söluyfirlit er samið af fasteignasala í samræmi við ákvæði laga nr. 70/2015. Þær upplýsingar sem fram koma í söluyfirliti þessu eru sóttar í opinberar skrár, til seljanda sjálfs og eftir atvikum til húsfélags. Seljandi veitir upplýsingar um eign í samræmi við upplýsingaskyldu laga um fasteignakaup nr. 40/2002. Fasteignasali sannreynir að þær upplýsingar séu réttar með sjónskoðun á eigninni. Fasteignasali getur ekki fullyrt um ástand og eiginleika þeirra hluta fasteigna sem ekki eru aðgengilegir og sjást ekki berum augum, t.d. lagnir, dren, skólp og þak.
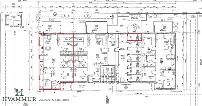
Jóninnuhagi 1 íbúð 101
Nýleg 3-4ra herbergja íbúð með sér inngangi á neðri hæð í austur enda í litlu fjölbýlishúsi í Hagahverfi - stærð 89,1 m²
Eignin skiptist í forstofu, eldhús og stofu í opnu rými, þrjú svefnherbergi (eitt skráð sem geymsla) og baðherbergi með þvottaaðstöðu. Í sameigninni er sér geymsla, skráð 4,9 m² að stærð og sameiginleg hjóla- og vagnageymsla.
Forstofa er með harðparketi á gólfi og tvöföldum fataskáp.
Eldhús, vönduð L-laga svört plastlögð innrétting (Nero oak) með grárri borðplötu og svörtum vask. Mjúklokun er á skúffum og skápum. Uppþvottavél og ísskápur með frysti eru innbyggð í innréttingu og fylgja með við sölu eignar.
Stofa og eldhús eru í opnu rými með ljósu harðparketi á gólfi og gluggum til tveggja átta. Úr stofu er rennihurð út á steypta suður verönd, skráð 9,0 m² að stærð. Veröndin er með galvinseruðu járn handriði og klætt með plast plötum.
Baðherbergi, vönduð svört plastlögð innrétting með grárri borðplötu og speglaskápur fyrir ofan. Stæði er í innréttingu fyrir þvottavél og þurrkara í vinnuhæð. Upphengt wc og walk-in sturta. Gráar flísar eru á gólfi og hluta veggja.
Svefnherbergin eru tvö, bæði með harðparketi á gólfi og fataskápum. Stærð herbergja er skv. teikningum 9,1 og 11,8 m².
Geymsla innan íbúðar er skv. teikningum 8,3 m² að stærð og er notuð sem þriðja svefnherbergið í dag, þar er harðparket á gólfi og fataskápur.
Í sameigninni á jarðhæðinni er sér geymsla, skráð 4,9 m² að stærð og sameiginleg hjóla- og vagnageymsla. Epoxy efni er á gólfi.
Annað
- Innréttingar og skápar er plastlagðar, Nero oak og eru frá www.gks.is
- Gólfefni, ljóst harðparket er á öllum rýmum að baðherbergi undanskildu þar eru gráar flísar.
- Innihurðar eru yfirfelldar hvítar.
- Hljóðdempandi plötur í öllum loftum nema á baðherbergi.
- Innfelld led-lýsing í loftum.
- Stéttar við aðalinngang eru steyptar og með hitalögnum í.
- Húsið er steypt og einangrað að utan og klætt með gráu báruðu stáli og timbri við innganga.
Um skoðunar- og aðgæsluskyldu:
Í lögum um fasteignakaup nr. 40/2002 er kveðið á um ríka skoðunarskyldu kaupenda á fasteignum. Fasteignasalan Hvammur skorar því á væntanlega kaupendur að kynna sér vel ástand fasteigna fyrir kauptilboðsgerð og leita til þar til bærra sérfræðinga um nánari skoðun ef með þarf.
Forsendur söluyfirlits:
Söluyfirlit er samið af fasteignasala í samræmi við ákvæði laga nr. 70/2015. Þær upplýsingar sem fram koma í söluyfirliti þessu eru sóttar í opinberar skrár, til seljanda sjálfs og eftir atvikum til húsfélags. Seljandi veitir upplýsingar um eign í samræmi við upplýsingaskyldu laga um fasteignakaup nr. 40/2002. Fasteignasali sannreynir að þær upplýsingar séu réttar með sjónskoðun á eigninni. Fasteignasali getur ekki fullyrt um ástand og eiginleika þeirra hluta fasteigna sem ekki eru aðgengilegir og sjást ekki berum augum, t.d. lagnir, dren, skólp og þak.
Ár
Fasteignamat
Kaupverð
Stærð
Fermetraverð
25. ágú. 2023
46.500.000 kr.
59.990.000 kr.
89.1 m²
673.288 kr.
Byggt á upplýsingum úr Þjóðskrá Íslands frá 2006-2025