Löggiltir fasteignasalar innan Félags fasteignasala:
Sverrir Pálmason
Vista
svg

1090

svg

982  Skoðendur

svg

Skráð  26. sep. 2025

einbýlishús

Hvanneyrarbraut 22b

580 Siglufjörður

48.900.000 kr.

476.608 þ.kr./m2
Fasteignanúmer

F2130491

Fasteignamat

32.150.000 kr.

Brunabótamat

52.550.000 kr.

Áhvílandi

0 kr.

Arion banki – Reikna lán
Upplýsingar
svg
Byggt 1928
svg
102,6 m²
svg
4 herb.
svg
1 baðherb.
svg
Þvottahús

Lýsing

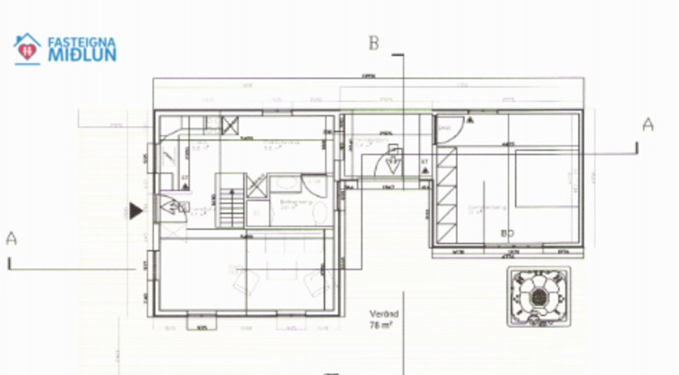
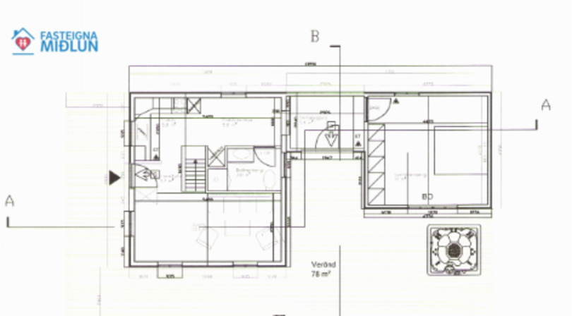
Fasteignamiðlun kynnir eignina Hvanneyrarbraut 22b, 580 Siglufjörður, nánar tiltekið eign merkt 01-01, fastanúmer 213-0491 ásamt öllu því sem eigninni fylgir, þar með talið tilheyrandi lóðar og sameignarréttindi. Eignin Hvanneyrarbraut 22b er skráð sem hér segir hjá FMR: Eign 213-0491, birt stærð 102.6 fm.

Nánari upplýsingar veitir Arndís Erla Jónsdóttir Löggiltur fasteignasali, í síma 6907282, tölvupóstur arndis@fasteignamidlun.is.


Um er að ræða mikið endurnýjað einbýlishús á tveimur hæðum með stórum timburpalli með heitum potti og sérbílastæðum. Eignin samanstendur af forstofu, eldhúsi, stofu, baðherbergi, svefnherbergi, svefnlofti og þvottahúsi/geymslu. Einnig er mikið svefnpláss á neðri hæð eignarinnar. Byggt var við eignina árið 2008 og er viðbygging 27,3 m2. Í viðbyggingu er stofa og útgangur út á pallinn. Þá var settur hiti í gólf og flísar settar sem liggja fljótandi um eignina. Einnig var drenað í kringum eignina, settar nýjar raflagnir í viðbyggingu og eignin klædd að utan. Þá var einnig byggður stór timburpallur sunnan við eignina og við aðal inngang eignarinnar. Undir palli er mikið og gott geymslupláss. 

Forstofa: er með stórum fataskáp og flísum á gólfi. 
Eldhús: er með hvítum Ikea innréttingum, með miklu borðplássi og sér borðkrók. Flísar eru á gólfi.
Stofa: er mjög rúmgóð með miklu gluggaplássi og útgang út á pall. 
Baðherbergi: er með flíslögðum walk in sturtu klefa með glerhurð, upphengdu klósetti, vaski og innréttingu. Flísar eru á gólfi og opnanlegum glugga. 
Svefnherbergi: er eitt á efri hæð með flísum á gólfi og rúmgóðum fataskáp. Einnig er mjög rúmgott svefnloft sem er parketlagt. 
Kjallari: er nýttur sem gistipláss í dag og er með góðu gluggarými. Flísar eru á gólfi. 
Þvottahús/geymsla: er á neðri hæð með flísum á gólfi. Þar er nýleg hitagrind og pottastýring. 

Gjöld sem kaupandi þarf að standa straum af vegna kaupanna:
1. Stimpilgjald af kaupsamningi - 0,4% - 0,8% hjá einstaklingum og 1,6% hjá lögaðilum af heildarfasteignamati.
2. Þinglýsingargjald af kaupsamningi, veðskuldabréfum, veðflutningsskjölum, mögulegu veðleyfi o.fl. - kr. 2.700 af hverju skjali.
3. Lántökugjald lánastofnunar. Nánari upplýsingar á t.d. heimasíðu lánastofnana.
4. Umsýslugjald til fasteignasölu, sbr. þjónustusamning.

Um skoðunar- og aðgæsluskyldu:
Í lögum um fasteignakaup nr. 40/2002 er kveðið á um ríka skoðunarskyldu kaupenda á fasteignum. Fasteignamiðlun fasteignasala bendir væntanlegum kaupendum á að kynna sér vel ástand fasteigna við skoðun og fyrir tilboðsgerð og ef þurfa þykir að leita til sérfræðinga um nánari ástandsskoðun.

Forsendur söluyfirlits:
Söluyfirlit er samið af fasteignasala í samræmi við ákvæði laga nr. 70/2015. Þær upplýsingar sem fram koma í söluyfirliti þessu eru sóttar í opinberar skrár, til seljanda sjálfs og eftir atvikum til húsfélags. Seljandi veitir upplýsingar um eign í samræmi við upplýsingaskyldu laga um fasteignakaup nr. 40/2002. Fasteignasali sannreynir að þær upplýsingar séu réttar með sjónskoðun á eigninni.
Fasteignasali getur ekki fullyrt um ástand og eiginleika þeirra hluta fasteigna sem ekki eru aðgengilegir og sjást ekki berum augum, t.d. lagnir, dren, skólp og þak.

 
 

Um skoðunar- og aðgæsluskyldu: Í lögum um fasteignakaup nr. 40/2002 er kveðið á um ríka skoðunarskyldu kaupenda á fasteignum. Fasteignamiðlun fasteignasala bendir væntanlegum kaupendum á að kynna sér vel ástand fasteigna við skoðun og fyrir tilboðsgerð og ef þurfa þykir að leita til sérfræðinga um nánari ástandsskoðun.

Forsendur söluyfirlits: Söluyfirlit er samið af fasteignasala í samræmi við ákvæði laga nr. 70/2015. Þær upplýsingar sem fram koma í söluyfirliti þessu eru sóttar í opinberar skrár, til seljanda sjálfs og eftir atvikum til húsfélags. Seljandi veitir upplýsingar um eign í samræmi við upplýsingaskyldu laga um fasteignakaup nr. 40/2002, og ábyrgist að þær séu réttar. Fasteignasali sannreynir að þær upplýsingar séu réttar með sjónskoðun á eigninni. Fasteignasali getur ekki fullyrt um ástand og eiginleika þeirra hluta fasteigna sem ekki eru aðgengilegir og sjást ekki berum augum, t.d. lagnir, dren, skólp og þak. Það sama á við um staðhæfingar seljanda eignar um viðhald og einstaka framkvæmdir.

Gjöld sem kaupandi þarf að standa straum af vegna kaupanna: Stimpilgjald af kaupsamningi sem er hlutfall af fasteignamati. Stimpilgjald er 0,8% fyrir einstaklinga (0,4% við fyrstu kaup) og 1,6% fyrir lögaðila.
Þinglýsingargjald af kaupsamningi, veðskuldabréfum, veðleyfum o.fl. Þinglýsingargjald er kr. 2.700,- fyrir hvert skjal.
Lántökugjald lánastofnunar. Um lántökugjald vísast í gjaldskrá viðkomandi lánveitanda.
Umsýsluþóknun fasteignasölu skv. gjaldskrá. Ef um nýbyggingu er að ræða greiðir kaupandi skipulagsgjald, 0,3% af brunabótamáti, þegar það er lagt á.

Fasteignamiðlun

Fasteignamiðlun

Grandagarði 5, 101 Reykjavík
Fasteignamiðlun

Fasteignamiðlun

Grandagarði 5, 101 Reykjavík