Upplýsingar
265 m²
4 herb.
2 baðherb.
3 svefnh.
Þvottahús
Sérinngangur
Lýsing
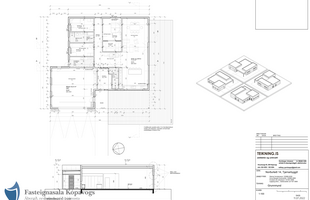
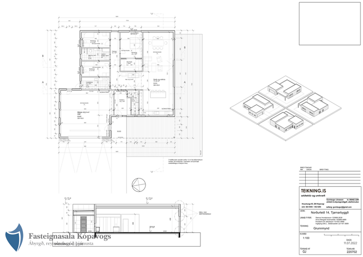
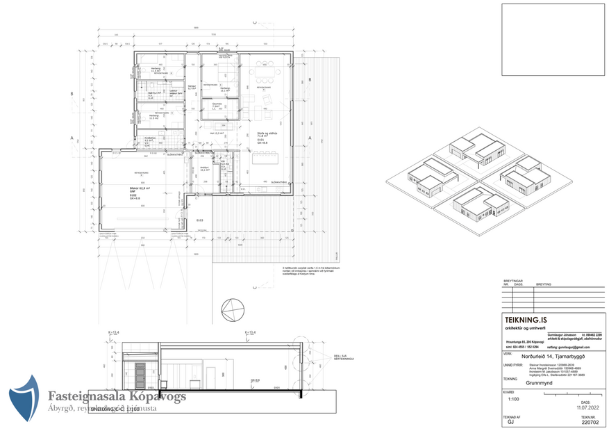
Fasteignasala Kópavogs / Gunnlaugur Hilmarsson kynna: 10.392m2 íbúðarhúsalóð, eignaland, ásamt samt teikningum af glæsilegur 265m2 einbýlishúsi við Norðurleið 14, Tjarnarbyggð, Selfoss.
Lækkað verð á lóðinni af sérstökum ástæðum.
Um er að ræða eignaland upp á 10.392m2 rétt við Selfoss. Teikningar af 265m2 glæsilegu einbýlishúsi fylgja. Búið er að samþykkja teikningar af 265m2 einbýlishúsi og búið er að greiða gatnagerðargjöld.
Heimilt er að byggja íbúðarhúsnæði allt að 1000 m2 að brúttófleti auk þeirra útihúsa sem fylgja starfsemi sem fram fer á lóðinni, en skulu útihús og íbúðarhús þó aldrei vera stærri en 1500 m2 samtals að brúttófleti. Byggingarreitir eru í lágmarksfjarlægð frá lóðamörkum en innan byggingareits stendur hönnuður frjáls að formi húss, gerð þess og efnisvali þó með þeim skorðum er byggingarreglugerð setur.
Sjá einnig deiliskipulag búgarðabyggðar http://skipulagsaaetlanir.skipulagsstofnun.is/skipulagvefur/DisplayDoc.aspx?itemid=01634425443905575000
Eignin er tilbúin til afhendingar við kaupsamning.
Allar upplýsingar veitir Gunnlaugur Hilmarsson, löggildur fasteignasali og viðskiptafræðingur í síma 777 56 56 / 517 26 00. gunnlaugur@fastko.is og á heimasíðu okkar www.fastko.is
Kostnaður kaupanda:
1. Stimpilgjald af kaupsamningi –0,8% af heildarfasteignamati, 0,4% við fyrstu kaup og fyrir lögaðila 1,6% af heildarfasteignamati.
2. Þinglýsingagjald af kaupsamningi, veðskuldabréfi, veðleyfi o.fl. kr 2.700 af hverju skjali.
3. Lántökugjald lánastofnunar - almennt 1,0% af höfuðstól skuldabréfs.
4. Umsýslugjald til fasteignasölu, kr. 50.000 auk vsk. sbr. Kauptilboði.
Lækkað verð á lóðinni af sérstökum ástæðum.
Um er að ræða eignaland upp á 10.392m2 rétt við Selfoss. Teikningar af 265m2 glæsilegu einbýlishúsi fylgja. Búið er að samþykkja teikningar af 265m2 einbýlishúsi og búið er að greiða gatnagerðargjöld.
Heimilt er að byggja íbúðarhúsnæði allt að 1000 m2 að brúttófleti auk þeirra útihúsa sem fylgja starfsemi sem fram fer á lóðinni, en skulu útihús og íbúðarhús þó aldrei vera stærri en 1500 m2 samtals að brúttófleti. Byggingarreitir eru í lágmarksfjarlægð frá lóðamörkum en innan byggingareits stendur hönnuður frjáls að formi húss, gerð þess og efnisvali þó með þeim skorðum er byggingarreglugerð setur.
Sjá einnig deiliskipulag búgarðabyggðar http://skipulagsaaetlanir.skipulagsstofnun.is/skipulagvefur/DisplayDoc.aspx?itemid=01634425443905575000
Eignin er tilbúin til afhendingar við kaupsamning.
Allar upplýsingar veitir Gunnlaugur Hilmarsson, löggildur fasteignasali og viðskiptafræðingur í síma 777 56 56 / 517 26 00. gunnlaugur@fastko.is og á heimasíðu okkar www.fastko.is
Kostnaður kaupanda:
1. Stimpilgjald af kaupsamningi –0,8% af heildarfasteignamati, 0,4% við fyrstu kaup og fyrir lögaðila 1,6% af heildarfasteignamati.
2. Þinglýsingagjald af kaupsamningi, veðskuldabréfi, veðleyfi o.fl. kr 2.700 af hverju skjali.
3. Lántökugjald lánastofnunar - almennt 1,0% af höfuðstól skuldabréfs.
4. Umsýslugjald til fasteignasölu, kr. 50.000 auk vsk. sbr. Kauptilboði.