Upplýsingar
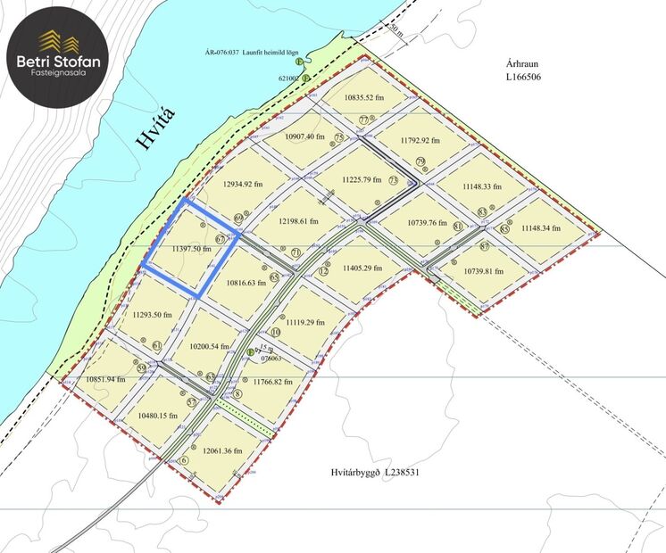
11397,5 m²
0 herb.
Lýsing
Betri Stofan og Jason Kristinn Ólafsson löggiltur fasteignasali sími 7751515 jason@betristofan.is kynna: Rúmlega 1,1 hektara eignarlóð örstutt frá Selfoss við Hvítárbyggð. Lóð nr. 67 er 11.397,5 fm að stærð við árbakka Hvítár. Heitt og kalt vatn er við lóðarmörk. Einstakt tækifæri til að kaupa lóð í 50 mín fjarlægð frá höfuðborgarsvæðinu. Glæsilegar gönguleiðir meðfram Hvítá.
Hvítárbyggð er frístundabyggð staðsett mitt í stórbrotnu íslensku landslagi. Hverfið sameinar kyrrð náttúrunnar og þægindi borgarlífsins með góðri tengingu við verslun og þjónustu í nágrenni við Selfoss. Hvítárbyggð er í Flóahreppi við Hvítánna og Merkurhraun í fyrsta áfanga koma 20 lóðir til sölu. Aðeins 10 mínútna akstri frá Selfoss.
Mikið útsýni til fjalla, Hestfjall, Hekla, Ingólfsfjalll, Tindfjallajökull, Mýrdalsjökull, Eyjafjallajökull. 360 gráðu útsýni.
Leiðarlýsing: Ca. 10 mínútna keyrsla frá Selfoss, keyrt þjóðveg 1 í austurátt og beygt í áttina að Flúðum og þá kemur svæðið strax á vinstri hönd.
Stutt í allar helstu náttúruperlur Suðurlands eins og Flúðir, Skálholt, Laugarás, Hellu, Hvolsvöll og Gullfoss og Geysi.
BÓKIÐ SKOÐUN:
Jason Kristinn Ólafsson, löggiltur fasteignasali í síma 775-1515 eða jason@betristofan.is
Hvítárbyggð er frístundabyggð staðsett mitt í stórbrotnu íslensku landslagi. Hverfið sameinar kyrrð náttúrunnar og þægindi borgarlífsins með góðri tengingu við verslun og þjónustu í nágrenni við Selfoss. Hvítárbyggð er í Flóahreppi við Hvítánna og Merkurhraun í fyrsta áfanga koma 20 lóðir til sölu. Aðeins 10 mínútna akstri frá Selfoss.
Mikið útsýni til fjalla, Hestfjall, Hekla, Ingólfsfjalll, Tindfjallajökull, Mýrdalsjökull, Eyjafjallajökull. 360 gráðu útsýni.
Leiðarlýsing: Ca. 10 mínútna keyrsla frá Selfoss, keyrt þjóðveg 1 í austurátt og beygt í áttina að Flúðum og þá kemur svæðið strax á vinstri hönd.
Stutt í allar helstu náttúruperlur Suðurlands eins og Flúðir, Skálholt, Laugarás, Hellu, Hvolsvöll og Gullfoss og Geysi.
BÓKIÐ SKOÐUN:
Jason Kristinn Ólafsson, löggiltur fasteignasali í síma 775-1515 eða jason@betristofan.is
Gjöld sem kaupandi þarf að standa straum af ef að kaupum verður:
1. Stimpilgjald af fasteignamati fasteignar er 0.8%, en 0,4% fyrir fyrstu kaup og 1,6% fyrir lögaðila.
2. Þinglýsingargjald: kaupsamningi, skuldabréfi, veðleyfi, afsali o.s.frv. er kr. 2.700 af hverju skjali.
3. Lántökukostnaður samkvæmt verðskrá viðkomandi lánastofnunar.
4. Umsýslugjald til fasteignasölu skv. gjaldskrá.