Löggiltir fasteignasalar innan Félags fasteignasala:
Hannes Steindórsson
Bogi Molby Pétursson
Guðrún Antonsdóttir
Heimir Hallgrímsson
Hrafnkell P. H. Pálmason
Viðar Marinósson
Elías Haraldsson
Kristján Þórir Hauksson
Albert Bjarni Úlfarsson
Ragnar Þorsteinsson
Þórey Ólafsdóttir
Andri Freyr Halldórsson
Upplýsingar
Verðsaga
Byggt 2006
101,6 m²
3 herb.
1 baðherb.
2 svefnh.
Þvottahús
Útsýni
Sameiginl. inngangur
Bílastæði
Lyfta
Lýsing
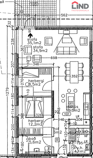
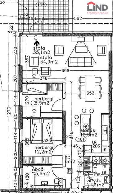
LIND fasteignasala og Helga Pálsdóttir löggiltur fasteignasali kynnir Pósthússtræti 3, íbúð 101 ásamt stæði í bílageymslu. Um er að ræða fallega og vel skipulagða 3ja herbergja íbúð á 1. hæð í fjölbýlishúsi með rúmgóðum yfirbyggðum svölum með nokkuð góðu útsýni . Íbúðin er skráð samkvæmt þjóðskrá 101,6 m2 og þar af fylgir henni 8,2 m2 geymsla .Hiti er í gólfum. Húsið er byggt árið 2006 og er steinsteypt og klætt að utan. Sameign er snyrtileg og vel við haldið. Fjölbýlishúsið er mjög vel staðsett við sjóinn og í fallegu umhverfi. Lóðin er stór og vel frágengin, næg bílastæði.
Íbúðin samanstendur af tveimur svefnherbergjum, alrými þar sem eru eldhús og stofa. Útgengt er út á svalir úr stofunni. Þvottahús innan íbúðar og baðherbergi. Sameiginlegur inngangur er í húsinu með lyftu. Geymsla er á jarðhæð og þar er einnig gengið inn í bílageymsluna.
Nánari lýsing
Forstofu gangur er rúmgóður með góðum skáp og flísalögðu gólfi.
Eldhús er parketlagt með fallegri viðarinnréttingu ásamt eldhúseyju með helluborði og viftuháf yfir. Flísar á milli skápa. Gott skápapláss og stæði er fyrir tvöfaldan ískáp. Ofn í vinnuhæð. Gert er ráð fyrir uppþvottavél í innréttingu.
Stofan er björt og rúmgóð með parketi á gólfi og útgengi út á yfirbyggðar svalir.
Svefnherbergi 1 er parketlagt með fatakskáp á heilum vegg.
Svefnherbergi 2 er parketlagt með fataskáp.
Baðherbergi er flísalagt með góðri innréttingu og walk-in sturtu, handklæðaofn og opnanlegur gluggi.
Þvottahús er flísalagt og hefur að geyma rúmgóða innréttingu með skolvaski, gert er ráð fyrir þvottavél og þurrkara í innréttingu.
Svalir eru með tréflísum á gólfi og eru yfirbyggðar.
Sérgeymsla er með hillum .
Bílastæði með rafhleðslustöð.
Sameiginlegt þrifarými fyrir bíla sem er vel við haldið og er snyrtilegt. Stutt er í allar helstu verslanir og þjónustu. Allar upplýsingar um eignina veitir Helga Pálsdóttir fasteignasali í síma 822 2123 eða helga@fastlind.is
Íbúðin samanstendur af tveimur svefnherbergjum, alrými þar sem eru eldhús og stofa. Útgengt er út á svalir úr stofunni. Þvottahús innan íbúðar og baðherbergi. Sameiginlegur inngangur er í húsinu með lyftu. Geymsla er á jarðhæð og þar er einnig gengið inn í bílageymsluna.
Nánari lýsing
Forstofu gangur er rúmgóður með góðum skáp og flísalögðu gólfi.
Eldhús er parketlagt með fallegri viðarinnréttingu ásamt eldhúseyju með helluborði og viftuháf yfir. Flísar á milli skápa. Gott skápapláss og stæði er fyrir tvöfaldan ískáp. Ofn í vinnuhæð. Gert er ráð fyrir uppþvottavél í innréttingu.
Stofan er björt og rúmgóð með parketi á gólfi og útgengi út á yfirbyggðar svalir.
Svefnherbergi 1 er parketlagt með fatakskáp á heilum vegg.
Svefnherbergi 2 er parketlagt með fataskáp.
Baðherbergi er flísalagt með góðri innréttingu og walk-in sturtu, handklæðaofn og opnanlegur gluggi.
Þvottahús er flísalagt og hefur að geyma rúmgóða innréttingu með skolvaski, gert er ráð fyrir þvottavél og þurrkara í innréttingu.
Svalir eru með tréflísum á gólfi og eru yfirbyggðar.
Sérgeymsla er með hillum .
Bílastæði með rafhleðslustöð.
Sameiginlegt þrifarými fyrir bíla sem er vel við haldið og er snyrtilegt. Stutt er í allar helstu verslanir og þjónustu. Allar upplýsingar um eignina veitir Helga Pálsdóttir fasteignasali í síma 822 2123 eða helga@fastlind.is
Ár
Fasteignamat
Kaupverð
Stærð
Fermetraverð
23. des. 2016
22.000.000 kr.
29.200.000 kr.
101.6 m²
287.402 kr.
Byggt á upplýsingum úr Þjóðskrá Íslands frá 2006-2025