Löggiltir fasteignasalar innan Félags fasteignasala:
Ástþór Reynir Guðmundsson

Vigdís R. S. Helgadóttir

Guðbjörg Helga Jóhannesdóttir

Gylfi Jens Gylfason
.jpg)
Sigrún Matthea Sigvaldadóttir

Sveinn Gíslason

Páll Guðmundsson

Þórarinn Arnar Sævarsson
.jpg)
Berglind Hólm Birgisdóttir

Þorsteinn Gíslason
Guðrún Lilja Tryggvadóttir

Brynjar Ingólfsson

Guðný Þorsteinsdóttir

Bjarni Blöndal
.jpg)
Þorsteinn Ólafs

Þórdís Björk Davíðsdóttir

Upplýsingar
Verðsaga
Byggt 2025
140 m²
5 herb.
1 baðherb.
4 svefnh.
Þvottahús
Bílskúr
Sérinngangur
Lýsing
Pétur Ásgeirsson löggiltur fasteignasali hjá RE/MAX fasteignasölu kynnir : Fallegt og smekklega innréttað 5 herbergja fullbúið enda raðhús með innbyggðum bílskúr. Samkvæmt fasteignaskrá er birt stærð 140 fm. og þar af er íbúðarhluti 109,6 fm. og bílskúr 30,4 fm. Húsið er vel staðsett við Elsugötu 17 í nýju hverfi í Þorlákshöfn. Húsið er er klætt að utan með álklæðningu og timbur í þakkanti . Eignin verður tilbúin til afhendingar 1.ágúst -
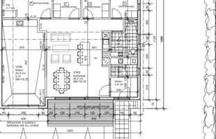
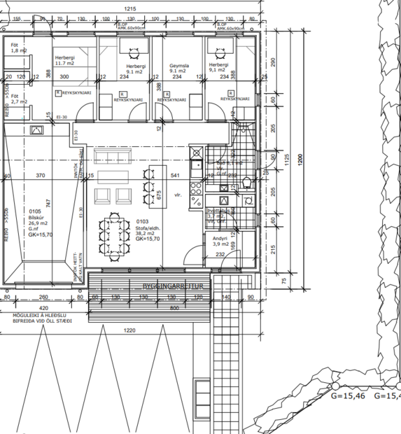
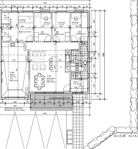
Eignin skiptist í forstofu, í alrými er eldhús og stofa / borðstofa, fjögur svefnherbergi, baðherbergi, þvottahús og bílskúr.
-Stór svefnherbergi.
-4 herbergi
-Stórt alrými.
-Innangengt inn í bílskúr.
-Sér afnotaflötur.
-Hægt að setja heitan pott.
Nánari lýsing:
Forstofa: Er með flísar á gólfi og hvítum fataskáp.
Þvottahús: Er innangengt úr forstofu og er með flísar á gólfi.
Eldhús: Í alrými er fallegt eldhús með hvítri innréttingu, eyja með góðum skúffum og borðplötu sem nær út fyrir innréttinguna sem hægt er að sitja við, innbyggður ísskápur, uppþvottavél, bakarofn í vinnuhæð, spanhelluborð, parket á gólfi.
Stofa / borðstofa: Í alrými er stór og björt stofa, parket á gólfi.
Hjónaherbergi: Rúmgott með hvítum fataskápum, parket á gólfi. Innaf hjónaherbergi er fataherbergi.
Svefnherbergi 2: Rúmgott með hvítum fataskáp, parket á gólfi.
Svefnherbergi 3: Rúmgott með hvítum fataskáp, parket á gólfi.
Svefnherbergi 4: Er teiknað sem geymsla og hægt að nýta sem herbergi. Er með hvítum fataskáp, parket á gólfi.
Baðherbergi: Með fallegri hvítri innréttingu, vaskur, ljósaspegill, upphengt salerni, walk in sturta með dökku gleri, útgengi út á verönd, flísar á gólfi og fibo baðplötur á veggjum Þvottahús: Rúmgott, með góðri hvítri innréttingu, vinnuborð og vaskur, flísar á gólfi.
Bílskúr: Stærð 30,4fm. rafmagnstafla og hitastýringar fyrir gólfhita, flekahurð, akríl málað gólf
Gólfefni, innréttingar og tæki: Gólf eru klædd með fallegu parketi frá húsasmiðjan og flísar eru frá Álfaborg. Hvítar innihurðir eru frá Birgisson. Innréttingar og tæki eru frá Ikea.
Lóð: Verður grófjöfnuð og fín möl í bílaplani, sorptunnuskýli verða komin.
Húsið: Húsið er byggt 2024 og er úr úr timbri og klætt með svartri álklæðningu og svört timbri þakkanti, járn er á þaki. Innfelld lýsing er í flestum rýmum. Gólfhiti er í húsinu og salus hitastýringarkerfi er í öllum rýmum. Veggir og loft verða klæddir með wallstopaint frá þ.þorgríms. Ídráttarrör er komið fyrir heitan pott á baklóð.
Nýr leikskóli verður opnaður í Ágúst 2025 og er staðsettur í næstu götu
Þar sem íbúðin er ekki tilbúin er möguleiki á að Skipta út innréttingum, gólfefnum. Kaupandi tekur á sig þann kostnað sem fer umfram kostnaðaráætlun
Nánari upplýsingar gefur Pétur Ásgeirsson löggiltur fasteignasali í síma 893-6513 / petur@remax.is
Gjöld sem kaupandi þarf að standa straum af vegna kaupanna:
1. Stimpilgjald af kaupsamningi - 0,8%(einstaklingar) 1.6% (lögaðilar) af heildarfasteignamati.
2. Þinglýsingargjald af kaupsamningi, veðskuldabréfi, mögulegu veðleyfi o.fl. - kr. 2.700 af hverju skjali.
3. Lántökugjald lánastofnunar - almennt 45-75 þús.kr. Nánari upplýsingar á heimasíðu lánastofnana.
4. Umsýslugjald til fasteignasölu kr. 69.900 mvsk.
Eignin skiptist í forstofu, í alrými er eldhús og stofa / borðstofa, fjögur svefnherbergi, baðherbergi, þvottahús og bílskúr.
-Stór svefnherbergi.
-4 herbergi
-Stórt alrými.
-Innangengt inn í bílskúr.
-Sér afnotaflötur.
-Hægt að setja heitan pott.
Nánari lýsing:
Forstofa: Er með flísar á gólfi og hvítum fataskáp.
Þvottahús: Er innangengt úr forstofu og er með flísar á gólfi.
Eldhús: Í alrými er fallegt eldhús með hvítri innréttingu, eyja með góðum skúffum og borðplötu sem nær út fyrir innréttinguna sem hægt er að sitja við, innbyggður ísskápur, uppþvottavél, bakarofn í vinnuhæð, spanhelluborð, parket á gólfi.
Stofa / borðstofa: Í alrými er stór og björt stofa, parket á gólfi.
Hjónaherbergi: Rúmgott með hvítum fataskápum, parket á gólfi. Innaf hjónaherbergi er fataherbergi.
Svefnherbergi 2: Rúmgott með hvítum fataskáp, parket á gólfi.
Svefnherbergi 3: Rúmgott með hvítum fataskáp, parket á gólfi.
Svefnherbergi 4: Er teiknað sem geymsla og hægt að nýta sem herbergi. Er með hvítum fataskáp, parket á gólfi.
Baðherbergi: Með fallegri hvítri innréttingu, vaskur, ljósaspegill, upphengt salerni, walk in sturta með dökku gleri, útgengi út á verönd, flísar á gólfi og fibo baðplötur á veggjum Þvottahús: Rúmgott, með góðri hvítri innréttingu, vinnuborð og vaskur, flísar á gólfi.
Bílskúr: Stærð 30,4fm. rafmagnstafla og hitastýringar fyrir gólfhita, flekahurð, akríl málað gólf
Gólfefni, innréttingar og tæki: Gólf eru klædd með fallegu parketi frá húsasmiðjan og flísar eru frá Álfaborg. Hvítar innihurðir eru frá Birgisson. Innréttingar og tæki eru frá Ikea.
Lóð: Verður grófjöfnuð og fín möl í bílaplani, sorptunnuskýli verða komin.
Húsið: Húsið er byggt 2024 og er úr úr timbri og klætt með svartri álklæðningu og svört timbri þakkanti, járn er á þaki. Innfelld lýsing er í flestum rýmum. Gólfhiti er í húsinu og salus hitastýringarkerfi er í öllum rýmum. Veggir og loft verða klæddir með wallstopaint frá þ.þorgríms. Ídráttarrör er komið fyrir heitan pott á baklóð.
Nýr leikskóli verður opnaður í Ágúst 2025 og er staðsettur í næstu götu
Þar sem íbúðin er ekki tilbúin er möguleiki á að Skipta út innréttingum, gólfefnum. Kaupandi tekur á sig þann kostnað sem fer umfram kostnaðaráætlun
Nánari upplýsingar gefur Pétur Ásgeirsson löggiltur fasteignasali í síma 893-6513 / petur@remax.is
Gjöld sem kaupandi þarf að standa straum af vegna kaupanna:
1. Stimpilgjald af kaupsamningi - 0,8%(einstaklingar) 1.6% (lögaðilar) af heildarfasteignamati.
2. Þinglýsingargjald af kaupsamningi, veðskuldabréfi, mögulegu veðleyfi o.fl. - kr. 2.700 af hverju skjali.
3. Lántökugjald lánastofnunar - almennt 45-75 þús.kr. Nánari upplýsingar á heimasíðu lánastofnana.
4. Umsýslugjald til fasteignasölu kr. 69.900 mvsk.
Ár
Fasteignamat
Kaupverð
Stærð
Fermetraverð
8. maí. 2025
40.500.000 kr.
49.500.000 kr.
10103 m²
4.900 kr.
Byggt á upplýsingum úr Þjóðskrá Íslands frá 2006-2025