Upplýsingar
Byggt 2023
133,4 m²
4 herb.
1 baðherb.
3 svefnh.
Þvottahús
Bílskúr
Sérinngangur
Laus strax
Lýsing
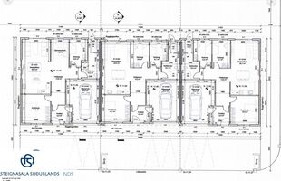
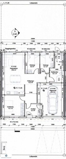
Fasteignasala Suðurlands (s 483 3424) kynnir: NÚPAHRAUN 10, ÞORLÁKSHÖFN, NÝTT, glæsilegt, miðjuraðhús með 3 svefnherbergjum og bílskúr. Húsið er einstaklega skemmtilega skipulagt og snýr stofan í vestur ! Grænt svæði er á bak við húsið ! Húsið afhendist fullbúið að innan, með þökulagðri lóð og steyptu bílaplani !
Loft eru upp tekin í húsinu, sem gerir það einstaklega bjart og skemmtilegt. Fallegir gólfsíðir gluggar og rennihurð eru í stofu.
Möguleiki er á uppítöku á ódýrari eign.
(Myndir að innan eru úr endaraðhúsi sem jafnframt er spegilmynd þessa húss. Ekki verður eyja í eldhúsi)
* Bóka má skoðun og fá allar nánari upplýsingar í síma 483 3424 og á fastsud@gmail.com *
Húsið skiptist svo:
* Mjög rúmgott anddyri með flísum á gólfi og góðum skáp.
* Rúmgott eldhús með fallegri innréttingu. Innfelld uppþvottavél fylgir.
* Stofa og eldhús eru í opnu rými. Utangengt er úr stofunni í garðinn um rennihurð. Fallegt harðparket er á gólfi. Fallegir gólfsíðir gluggar og rennihurð eru í stofu sem hleypa fallegri birtu inn í rýmið.
* 3 stór svefnherbergi með harðparketi á gólfi og góðum fataskápum.
** Loft eru upp tekin í húsinu og eru þau með innfelldri lýsingu.
* Baðherbergi með fallegri innréttingu, spegli og flísum á gólfi og veggjum og sturtu úr glerþili.
* Þvottahús er inn af baðherbergi. Flísar eru á gólfi og innrétting undir þvottavél og þurrkara. Utangengt er úr þvottahúsinu.
Á einfaldan hátt er hægt að loka milli baðherbergis og þvottahúss !
* Í loftum eru hvítar loftaþiljur. Húsið er málað að innan í ljósum lit.
* Allar innihurðar eru yfirfelldar, hvítar að lit.
* Gólfhitalagnir eru í húsinu. Stýringar og annar búnaður fylgir.
* Stór, fullfrágenginn bílskúr. Epoxy er á gólfi. Á einfaldan hátt er hægt að setja milliloft í bílskúrinn.
* Bílaplan verður steypt. Búið er að leggja snjóbræðslu í bílaplan, en stýring og búnaður í tengigrind fylgir ekki.
* Lóð verður þökulögð.
* Skjólveggir verða settir á bílaplan á milli eignanna og sett sorptunnuskýli.
Húsið er klætt að utan með dökkgráu bárustáli og lerki, dökkgráum gluggum og hurðum og dökkgráu þakstáli!
FASTEIGNASALA SUÐURLANDS HEFUR VEITT VANDAÐA OG GÓÐA ÞJÓNUSTU SÍÐAN 2003 !
Fasteignasala Suðurlands, Unubakka 3b, Þorlákshöfn.
Heimasíða fasteignasölunnar: https://www.eignin.is/
Í Þorlákshöfn er þjónustustig mjög gott - hagnýtar upplýsingar:
Verslun og þjónusta: Hér má m.a. finna:
Verslun KRÓNUNNAR
Apótekarann.
Bakaríið Kaffiskjóðan (facebook: kaffiskjóðan)
Hárgreiðslustofuna Kompuna (facebook: kompan klippistofa)
Rakarstofu Kjartans (facebook: kjartan rakari)
Vínbúðina.
Veitingastaðina:
Thai Sakhon Restaurant (facebook: thai sakhon restaurant)
Caffe Bristól
Svarta Sauðinn (facebook: svarti sauðurinn)
Skálann, sem jafnframt er sölustaður Orkunnar. Einnig er hér ÓB-stöð.
Hér er mjög góð heilsugæsla.
Hér er tannlæknir.
Í Ráðhúsi bæjarins eru, auk skrifstofu sveitarfélagsins:
Mjög gott bókasafn (facebook: Bæjarbókasafn Ölfuss) Landsbankinn
Tómstundir og afþreying:
Íþróttaiðkun í Þorlákshöfn er gríðarlega öflug og þá helst meðal barna og unglinga og er aðstaða til íþróttaiðkunar öll til mikillar fyrirmyndar.
Frá fjögurra ára aldri er í boði að iðka fótbolta (aegirfc.is), fimleika (facebook: fimleikadeild Þórs), körfubolta (facebook: Þór Þorlákshöfn) og frjálsar, ásamt því að iðkaður er badminton. Hér er svo einnig Litli íþróttaskólinn á vegum fimleikadeildarinnar fyrir börn frá eins árs aldri.
Motorcrossá braut rétt utan við bæinn.
Hestamennska (facebook: hestamannafélagið háfeti) með fallegum reiðleiðum allt um kring
Golf (facebook: golfklúbbur Þorlákshafnar) á rómuðum golfvelli sem staðsettur er í jaðri byggðarinnar, rétt við sjávarsíðuna.
Í íþróttamiðstöðinni er mjög góð líkamsræktar-aðstaða þar sem hægt er að komast í einka- þjálfun, spinning, hóptíma, líkamsrækt fyrir eldri borgara o.m.fl. Þar er að finna góða sundaðstöðumeð útilaug, heitum pottum, vaðlaug og skemmtilegri innilaug fyrir fjölskyldufólk. Jógastúdíó (Jógahornið). Öflug sjúkraþjálfun.
Afþreying er hér af ýmsum toga:
hér má meðal annars finna: Fallegt útivistarsvæði við vitann með útsýnispalli og göngustíg meðfram bjarginu í einstakri náttúrufegurð. Heilsustíg má finna í bænum þar sem líkamsræktartæki eru við göngu/hlaupastíga.
Hér er æðisleg strönd sem mikið er mikið notuð til útivistar og þar má oft sjá menn á brimbrettum, en slíkt er gott að stunda hér. Í sjónum við útsýnispallinn er einn vinsælasta staður til brimbrettaiðkunar á Íslandi.
Blackbeach tours (www.blackbeachtours.is) er afþreyingar fyrirtæki sem býður upp á fjórhjólaferðir bæði í fjöruna og um hraunið, RIB bátaferðir meðfram bjarginu og adrenalínferðir, snekkjuleigu og sjóstöng og jógaferðir úti í náttúrunni.
Einnig er hér: Öflugt leikfélag (facebook: leikfélag ölfuss).
Hinir ýmsu kórar (facebook: Tónar og Trix, Kyrjukórinn, ofl.) Einn stærsti Kiwanisklúbbur landsins (facebook: Kiwanisklúbburinn Ölver) O.sfr. o.s.frv.
** Allar helstu fréttir úr sveitarfélaginu má finna á: www.hafnarfrettir.is
Loft eru upp tekin í húsinu, sem gerir það einstaklega bjart og skemmtilegt. Fallegir gólfsíðir gluggar og rennihurð eru í stofu.
Möguleiki er á uppítöku á ódýrari eign.
(Myndir að innan eru úr endaraðhúsi sem jafnframt er spegilmynd þessa húss. Ekki verður eyja í eldhúsi)
* Bóka má skoðun og fá allar nánari upplýsingar í síma 483 3424 og á fastsud@gmail.com *
Húsið skiptist svo:
* Mjög rúmgott anddyri með flísum á gólfi og góðum skáp.
* Rúmgott eldhús með fallegri innréttingu. Innfelld uppþvottavél fylgir.
* Stofa og eldhús eru í opnu rými. Utangengt er úr stofunni í garðinn um rennihurð. Fallegt harðparket er á gólfi. Fallegir gólfsíðir gluggar og rennihurð eru í stofu sem hleypa fallegri birtu inn í rýmið.
* 3 stór svefnherbergi með harðparketi á gólfi og góðum fataskápum.
** Loft eru upp tekin í húsinu og eru þau með innfelldri lýsingu.
* Baðherbergi með fallegri innréttingu, spegli og flísum á gólfi og veggjum og sturtu úr glerþili.
* Þvottahús er inn af baðherbergi. Flísar eru á gólfi og innrétting undir þvottavél og þurrkara. Utangengt er úr þvottahúsinu.
Á einfaldan hátt er hægt að loka milli baðherbergis og þvottahúss !
* Í loftum eru hvítar loftaþiljur. Húsið er málað að innan í ljósum lit.
* Allar innihurðar eru yfirfelldar, hvítar að lit.
* Gólfhitalagnir eru í húsinu. Stýringar og annar búnaður fylgir.
* Stór, fullfrágenginn bílskúr. Epoxy er á gólfi. Á einfaldan hátt er hægt að setja milliloft í bílskúrinn.
* Bílaplan verður steypt. Búið er að leggja snjóbræðslu í bílaplan, en stýring og búnaður í tengigrind fylgir ekki.
* Lóð verður þökulögð.
* Skjólveggir verða settir á bílaplan á milli eignanna og sett sorptunnuskýli.
Húsið er klætt að utan með dökkgráu bárustáli og lerki, dökkgráum gluggum og hurðum og dökkgráu þakstáli!
FASTEIGNASALA SUÐURLANDS HEFUR VEITT VANDAÐA OG GÓÐA ÞJÓNUSTU SÍÐAN 2003 !
Fasteignasala Suðurlands, Unubakka 3b, Þorlákshöfn.
Heimasíða fasteignasölunnar: https://www.eignin.is/
Í Þorlákshöfn er þjónustustig mjög gott - hagnýtar upplýsingar:
Verslun og þjónusta: Hér má m.a. finna:
Verslun KRÓNUNNAR
Apótekarann.
Bakaríið Kaffiskjóðan (facebook: kaffiskjóðan)
Hárgreiðslustofuna Kompuna (facebook: kompan klippistofa)
Rakarstofu Kjartans (facebook: kjartan rakari)
Vínbúðina.
Veitingastaðina:
Thai Sakhon Restaurant (facebook: thai sakhon restaurant)
Caffe Bristól
Svarta Sauðinn (facebook: svarti sauðurinn)
Skálann, sem jafnframt er sölustaður Orkunnar. Einnig er hér ÓB-stöð.
Hér er mjög góð heilsugæsla.
Hér er tannlæknir.
Í Ráðhúsi bæjarins eru, auk skrifstofu sveitarfélagsins:
Mjög gott bókasafn (facebook: Bæjarbókasafn Ölfuss) Landsbankinn
Tómstundir og afþreying:
Íþróttaiðkun í Þorlákshöfn er gríðarlega öflug og þá helst meðal barna og unglinga og er aðstaða til íþróttaiðkunar öll til mikillar fyrirmyndar.
Frá fjögurra ára aldri er í boði að iðka fótbolta (aegirfc.is), fimleika (facebook: fimleikadeild Þórs), körfubolta (facebook: Þór Þorlákshöfn) og frjálsar, ásamt því að iðkaður er badminton. Hér er svo einnig Litli íþróttaskólinn á vegum fimleikadeildarinnar fyrir börn frá eins árs aldri.
Motorcrossá braut rétt utan við bæinn.
Hestamennska (facebook: hestamannafélagið háfeti) með fallegum reiðleiðum allt um kring
Golf (facebook: golfklúbbur Þorlákshafnar) á rómuðum golfvelli sem staðsettur er í jaðri byggðarinnar, rétt við sjávarsíðuna.
Í íþróttamiðstöðinni er mjög góð líkamsræktar-aðstaða þar sem hægt er að komast í einka- þjálfun, spinning, hóptíma, líkamsrækt fyrir eldri borgara o.m.fl. Þar er að finna góða sundaðstöðumeð útilaug, heitum pottum, vaðlaug og skemmtilegri innilaug fyrir fjölskyldufólk. Jógastúdíó (Jógahornið). Öflug sjúkraþjálfun.
Afþreying er hér af ýmsum toga:
hér má meðal annars finna: Fallegt útivistarsvæði við vitann með útsýnispalli og göngustíg meðfram bjarginu í einstakri náttúrufegurð. Heilsustíg má finna í bænum þar sem líkamsræktartæki eru við göngu/hlaupastíga.
Hér er æðisleg strönd sem mikið er mikið notuð til útivistar og þar má oft sjá menn á brimbrettum, en slíkt er gott að stunda hér. Í sjónum við útsýnispallinn er einn vinsælasta staður til brimbrettaiðkunar á Íslandi.
Blackbeach tours (www.blackbeachtours.is) er afþreyingar fyrirtæki sem býður upp á fjórhjólaferðir bæði í fjöruna og um hraunið, RIB bátaferðir meðfram bjarginu og adrenalínferðir, snekkjuleigu og sjóstöng og jógaferðir úti í náttúrunni.
Einnig er hér: Öflugt leikfélag (facebook: leikfélag ölfuss).
Hinir ýmsu kórar (facebook: Tónar og Trix, Kyrjukórinn, ofl.) Einn stærsti Kiwanisklúbbur landsins (facebook: Kiwanisklúbburinn Ölver) O.sfr. o.s.frv.
** Allar helstu fréttir úr sveitarfélaginu má finna á: www.hafnarfrettir.is