Löggiltir fasteignasalar innan Félags fasteignasala:
Páll Heiðar Pálsson
Árni Björn Kristjánsson
Helen Sigurðardóttir
Hrafnkell Pálmarsson
Tinna Bryde
Vista
svg

899

svg

799  Skoðendur

svg

Skráð  1. okt. 2025

fjölbýlishús

Fossvegur 2

800 Selfoss

53.800.000 kr.

566.316 þ.kr./m2
Fasteignanúmer

F2273434

Fasteignamat

51.200.000 kr.

Brunabótamat

56.300.000 kr.

Áhvílandi

0 kr.

Arion banki – Reikna lán
Upplýsingar
Verðsaga
svg
Byggt 2004
svg
95 m²
svg
3 herb.
svg
1 baðherb.
svg
2 svefnh.
svg
Þvottahús
svg
Sameiginl. inngangur
svg
Lyfta

Lýsing

Palsson Fasteignasala kynnir:

Björt og rúmgóð þriggja herbergja endaíbúð í fallegu hverfi að Fossvegi á Selfossi 

-Tvö tengi til hleðslu á rafmagnsbílum á bílastæði.
-Flott útsýni af 9,3 fm suðvestursvölum með útsýni til fjalla.
-Gott skipulag og góð staðsetning nálægt leikskóla og miðbæ Selfoss.
-Snyrtileg og vel viðhaldin eign í fjölskylduvænu hverfi.

Birt stærð samkvæmt HMS: 95,0 m²

Nánari upplýsingar veita:
Páll Pálsson Lgf. 7754000 / palli@palssonfasteignasala.is 
Andrea Ósk Harradóttir s. 785-6698 andrea@palssonfasteignasala.is 

Nánari lýsing á íbúð:
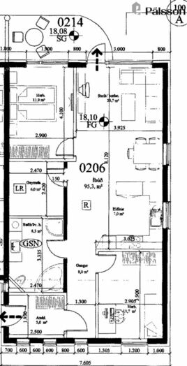
Eignin skiptist í forstofu, stofu, eldhús, tvö svefnherbergi, baðherbergi, þvottahús og geymslu. 
Íbúðin er á annari hæð í lyftuhúsi við Fossveg á Selfossi. Tvö tengi til hleðslu á rafmagnsbílum á bílastæði. Snyrtileg aðkoma að snyrtilegu húsi með vel reknu húsfélagi. Stutt gönguleið í rómaðan miðbæinn með verslunum, kaffihúsi, veitingastöðum og fallegu torgi. Einnig er örstutt ganga í leikskóla.  Eignin skiptist í forstofu, gang, tvö rúmgóð herbergi, gott baðherbergi með opnanlegu fagi og þvottaaðstöðu, gluggalaust herbergi og bjart opið alrými sem rúmmar eldhús, borðstofu og stofu. Útsýni til fjalla frá stofuglugga og svölum.

Forstofa er rúmgóð með glugga, fataskáp og flísum á gólfi.
Gangur er með síðum glugga í enda og leiðir inn í önnur rými íbúðarinnar.
Herbergi eru tvö bæði rúmgóð með skápum.
Baðherbergi/þvottaherbergi er rúmgott með opnanlegum glugga, vaski í góðri innréttingu, sturtuklefa, hornbaðkari, handklæðaofni og þvottaaðstöðu fyrir þvottavél og þurkara. Flísar á gólfi.
Gluggalaust herbergi/geymsla innan íbúðar er rúmgóð með hillum.
Eldhús er með viðarinnréttingu, góðu skápaplássi og vaski við glugga.
Stofa/borðstofa er opin við eldhús sem skapar sérlega góða birtu í rúmgóðu alrýminu (þar sem um endaíbúð er að ræða). þar er gengið út á suðvestur svalir með útsýni til fjalla.

Innréttingar, innihurðar og gólfefni. Fataskápar, eldhúsinnrétting og baðinnrétting eru úr dökkum sléttum sambærilegum við. Innihurðar dökkar yfirfelldar viðarhurðar. Parket á herbergisgólfum, gangi og stofu, flísar á öðrum gólfum. 
Sameign er snyrtileg, björt með lyftu. sameiginleg hjóla- og vagnageymsla. Inn í lyftugang er handfrjáls opnunarbúnaður og myndavélakerfi við dyrasýma.
Hús er klætt að utan með stálklæðningu og viðhaldslétt.
Lóð er tyrfð bakatil og með hellulögn og steyptu stóru bílaplani að framan og til hliðar sem er hitað upp með afrennsli af húsinu.

Fasteignamat fyrir 2026 er 55.250.000kr

Góð eign fyrir litlar fjölskyldur og einnig tilvalin fyrir þá sem eru að minnka við sig.

www.eignavakt.is
www.verdmat.is 
Góð ráð fyrir kaupendur / seljendur

Gjöld sem kaupandi þarf að standa straum af vegna kaupanna: 
1. Stimpilgjald af kaupsamningi - 0.8% af heildarfasteignamati / 1.6% fyrir lögaðila. (0.4% við fyrstu kaup einstaklinga).
2. Þinglýsingagjald af kaupsamningi, veðskuldabréfi, veðleyfi o.fl.- kr. 2.700 af hverju skjali.
3. Lántökugjald lánastofnunar - samanber gjaldskrá viðkomandi lánastofnunar.
4. Umsýsluþóknun til fasteign, sbr.kauptilboð.

Um skoðunarskyldu:
Í lögum um fasteignakaup nr. 40/2002 er kveðið á um ríka skoðunarskyldu kaupenda á fasteignum. Pálsson fasteignasala bendir væntanlegum kaupendum á að kynna sér vel ástand fasteigna við skoðun og fyrir tilboðsgerð og ef þurfa þykir að leita til sérfræðinga um nánari ástandsskoðun.
 

Pálsson Fasteignasala

Pálsson Fasteignasala

Borgartúni 3, 105 Reykjavík
Ár
Fasteignamat
Kaupverð
Stærð
Fermetraverð
1. sep. 2023
44.150.000 kr.
48.900.000 kr.
95 m²
514.737 kr.
Byggt á upplýsingum úr Þjóðskrá Íslands frá 2006-2025
Pálsson Fasteignasala

Pálsson Fasteignasala

Borgartúni 3, 105 Reykjavík