Upplýsingar
Byggt 2025
170,9 m²
4 herb.
2 baðherb.
3 svefnh.
Þvottahús
Bílskúr
Sérinngangur
Lýsing
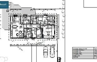
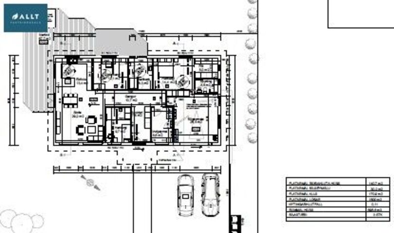
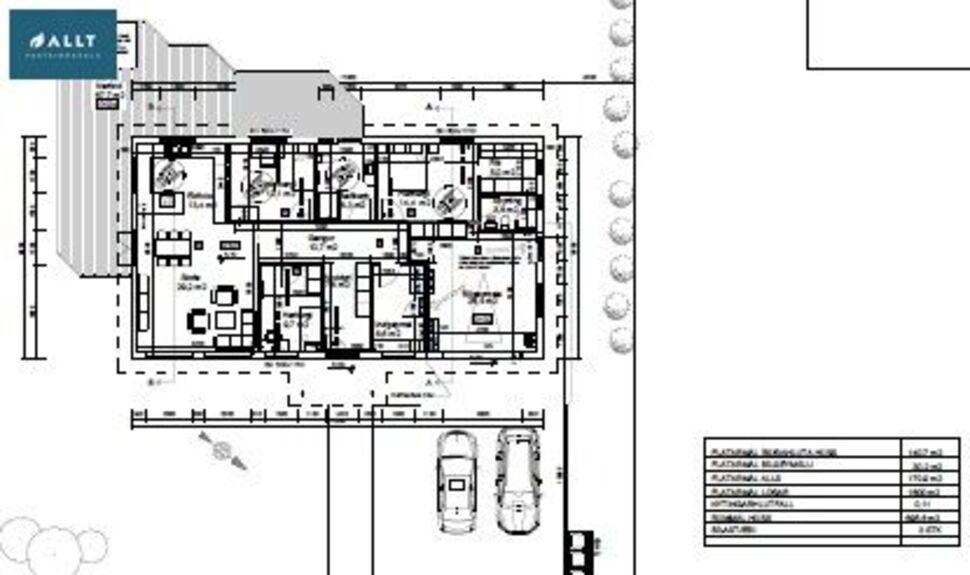
ALLT fasteignasala kynnir í einkasölu eignina Skagabraut 13, 250 Garður, birt stærð 170.9 fm. Íbúðarrými 140,70 fm og innangengur bílskúr 30,20 fm. Húsið stendur á stórri lóð alls 1.600 fm.
Eignin er vel skipulögð, rúmgóð og björt með þremur svefnherbergjum, þar af hjónasvítu með sérbaðherbergi og fataherbergi, auk þess sem alrými er opið með góðu flæði milli stofu og eldhúss.
Allar nánari upplýsingar og skoðanabókanir á netfanginu allt@allt.is og síma 560-5500
Eignin skiptist í forstofu með skáp, alrými sem er stofa, borðstofa og eldhús. Tvö barnaherbergi, hjónaherbergi með fataherbergi og baðherbergi. Baðherbergi, þvottahús og innangengur bílskúr frá þvottahúsi.
Lýsing og skipulag eignar:
Forstofa er flísalögð með fataskáp sem nær upp í loft.
Gangur verður parketlagður með harðparketi frá Birgisson.
Eldhús er með vandaðri innréttingu frá HTH, gott skápapláss og skúffur með mjúklokun. Ofn er í vinnuhæð og eyja er með góðri aðstöðu fyrir sæti. Gert er ráð fyrir innbyggðum ísskáp og uppþvottavél.
Stofa / borðstofa eru í opnu og björtu alrými með góðri tengingu við eldhús. Útgengi er úr alrými út í garð.
Hjónaherbergi er rúmgott með sér fataherbergi og baðherbergi sem er búið upphengdu salerni og „walk-in“ sturtu.
Tvö svefnherbergi eru með fataskápum sem ná upp í loft og verða parketlögð.
Baðherbergi er flísalagt í hólf og gólf, með upphengdu salerni, góðri innréttingu með vaski og góðu skápaplássi ásamt „walk-in“ sturtu. Útgengt er í garð úr baðherbergi.
Þvottahús er með innréttingu þar sem gert er ráð fyrir þvottavél og þurrkara í vinnuhæð. Frá þvottahúsi er innangengt í bílskúr.
Bílskúr er 30,2 fm að stærð með bílskúrshurðaropnara. Einnig er útgengt út í garð frá bílskúr.
Gólfefni og innréttingar: Kaupendur hafa möguleika á að velja harðparket frá Birgisson í samráði við verktaka sem sér einnig um lögn parketsins. Hvítar innihurðir og hvítir gólflistar verða settir upp.
Byggingarlýsing:
Gluggar og hurðarkarmar eru hvítir tré/ál gluggar með tvöföldu gleri. Bílskúrshurð er úr lituðu stáli með rafmagnsopnun. Þakið er byggt upp með kraftsperrum og klætt með báruklæðningu. Þakkantur er úr timbri og útveggir eru klæddir báruáli. Gert er ráð fyrir tengingu hleðslustöðvar fyrir rafbíla í rafmagnstöflu hússins.
Lóð og aðkoma:
Innkeyrsla er steypt er steypt með snjóbræðslukerfi. Ídráttarrör og affall fyrir heitan pott eru staðsett bakvið húsið. Lóðin er rúmgóð, um 1600 m², grófjöfnuð og afhendist í núverandi ástandi nema samið sé sérstaklega um annað.
Vertu tilbúin(n) þegar rétta eignin birtist – skráðu eignina þín í dag og tryggðu þér forskotið.
ALLT fasteignasala er staðsett á eftirfarandi stöðum:
Hafnargötu 91, 230 Reykjanesbæ - Þverholti 2, 270 Mosfellsbæ
Kostnaður kaupanda:
1. Af gjaldskyldum skjölum skal greiða 0,8% af fasteignamati ef kaupandi er einstaklingur, fyrstukaupendur 0,4% og 1,6% af fasteignamati ef kaupandi er lögaðili.
2. Þinglýsingargjald á hvert skjal er kr. 2.700.
3. Lántökugjald fer eftir verðskrá lánastofnunar hverju sinni.
4. Umsýslugjald til ALLT fasteignasölu er kr. 69.440 m/vsk.
5. Sé um nýbyggingu um að ræða greiðir kaupandi skipulagsgjald, 0,3% af brunabótamati, þegar það er lagt á.
Skoðunar- og aðgæsluskylda kaupanda:
Í lögum um fasteignakaup nr. 40/2002 er kveðið á um ríka skoðunarskyldu kaupenda á fasteignum. ALLT fasteignasala vill beina því til væntanlegs kaupanda að kynna sér ástand fasteignar vel við skoðun og fyrir tilboðsgerð. Ef þurfa þykir er ráðlagt að leita til sérfræðifróðra aðila. Forsendur söluyfirlits: Söluyfirlit þetta er samið af fasteignasala til samræmis við lög um sölu fasteigna og skipa nr. 70/2015. Upplýsingar þær sem koma fram í söluyfirliti þessu eru sóttar í opinberar skrár, frá seljanda og eftir atvikum til húsfélags. Seljandi veitir upplýsingar um eignina til samræmis við upplýsingaskyldu sína sbr. lög um fasteignakaup nr. 40/2002. Fasteignasali sannreynir að upplýsingar séu réttar með sjónskoðun á eigninni. Fasteignasali getur ekki fullyrt um ástand og eiginleika þeirra hluta fasteignar sem ekki eru aðgengilegir og sjást ekki með berum augum, eins og t.d. lagnir, dren, skólp og þak.
Eignin er vel skipulögð, rúmgóð og björt með þremur svefnherbergjum, þar af hjónasvítu með sérbaðherbergi og fataherbergi, auk þess sem alrými er opið með góðu flæði milli stofu og eldhúss.
Allar nánari upplýsingar og skoðanabókanir á netfanginu allt@allt.is og síma 560-5500
Eignin skiptist í forstofu með skáp, alrými sem er stofa, borðstofa og eldhús. Tvö barnaherbergi, hjónaherbergi með fataherbergi og baðherbergi. Baðherbergi, þvottahús og innangengur bílskúr frá þvottahúsi.
Lýsing og skipulag eignar:
Forstofa er flísalögð með fataskáp sem nær upp í loft.
Gangur verður parketlagður með harðparketi frá Birgisson.
Eldhús er með vandaðri innréttingu frá HTH, gott skápapláss og skúffur með mjúklokun. Ofn er í vinnuhæð og eyja er með góðri aðstöðu fyrir sæti. Gert er ráð fyrir innbyggðum ísskáp og uppþvottavél.
Stofa / borðstofa eru í opnu og björtu alrými með góðri tengingu við eldhús. Útgengi er úr alrými út í garð.
Hjónaherbergi er rúmgott með sér fataherbergi og baðherbergi sem er búið upphengdu salerni og „walk-in“ sturtu.
Tvö svefnherbergi eru með fataskápum sem ná upp í loft og verða parketlögð.
Baðherbergi er flísalagt í hólf og gólf, með upphengdu salerni, góðri innréttingu með vaski og góðu skápaplássi ásamt „walk-in“ sturtu. Útgengt er í garð úr baðherbergi.
Þvottahús er með innréttingu þar sem gert er ráð fyrir þvottavél og þurrkara í vinnuhæð. Frá þvottahúsi er innangengt í bílskúr.
Bílskúr er 30,2 fm að stærð með bílskúrshurðaropnara. Einnig er útgengt út í garð frá bílskúr.
Gólfefni og innréttingar: Kaupendur hafa möguleika á að velja harðparket frá Birgisson í samráði við verktaka sem sér einnig um lögn parketsins. Hvítar innihurðir og hvítir gólflistar verða settir upp.
Byggingarlýsing:
Gluggar og hurðarkarmar eru hvítir tré/ál gluggar með tvöföldu gleri. Bílskúrshurð er úr lituðu stáli með rafmagnsopnun. Þakið er byggt upp með kraftsperrum og klætt með báruklæðningu. Þakkantur er úr timbri og útveggir eru klæddir báruáli. Gert er ráð fyrir tengingu hleðslustöðvar fyrir rafbíla í rafmagnstöflu hússins.
Lóð og aðkoma:
Innkeyrsla er steypt er steypt með snjóbræðslukerfi. Ídráttarrör og affall fyrir heitan pott eru staðsett bakvið húsið. Lóðin er rúmgóð, um 1600 m², grófjöfnuð og afhendist í núverandi ástandi nema samið sé sérstaklega um annað.
Vertu tilbúin(n) þegar rétta eignin birtist – skráðu eignina þín í dag og tryggðu þér forskotið.
ALLT fasteignasala er staðsett á eftirfarandi stöðum:
Hafnargötu 91, 230 Reykjanesbæ - Þverholti 2, 270 Mosfellsbæ
Kostnaður kaupanda:
1. Af gjaldskyldum skjölum skal greiða 0,8% af fasteignamati ef kaupandi er einstaklingur, fyrstukaupendur 0,4% og 1,6% af fasteignamati ef kaupandi er lögaðili.
2. Þinglýsingargjald á hvert skjal er kr. 2.700.
3. Lántökugjald fer eftir verðskrá lánastofnunar hverju sinni.
4. Umsýslugjald til ALLT fasteignasölu er kr. 69.440 m/vsk.
5. Sé um nýbyggingu um að ræða greiðir kaupandi skipulagsgjald, 0,3% af brunabótamati, þegar það er lagt á.
Skoðunar- og aðgæsluskylda kaupanda:
Í lögum um fasteignakaup nr. 40/2002 er kveðið á um ríka skoðunarskyldu kaupenda á fasteignum. ALLT fasteignasala vill beina því til væntanlegs kaupanda að kynna sér ástand fasteignar vel við skoðun og fyrir tilboðsgerð. Ef þurfa þykir er ráðlagt að leita til sérfræðifróðra aðila. Forsendur söluyfirlits: Söluyfirlit þetta er samið af fasteignasala til samræmis við lög um sölu fasteigna og skipa nr. 70/2015. Upplýsingar þær sem koma fram í söluyfirliti þessu eru sóttar í opinberar skrár, frá seljanda og eftir atvikum til húsfélags. Seljandi veitir upplýsingar um eignina til samræmis við upplýsingaskyldu sína sbr. lög um fasteignakaup nr. 40/2002. Fasteignasali sannreynir að upplýsingar séu réttar með sjónskoðun á eigninni. Fasteignasali getur ekki fullyrt um ástand og eiginleika þeirra hluta fasteignar sem ekki eru aðgengilegir og sjást ekki með berum augum, eins og t.d. lagnir, dren, skólp og þak.