Upplýsingar
Byggt 2025
170,9 m²
4 herb.
2 baðherb.
3 svefnh.
Þvottahús
Bílskúr
Laus strax
Lýsing
Valný fasteignasala og Valgeir Leifur löggiltur fasteignasali kynna:
Skagabraut 13, 250 Garður
Fallegt og vel skipulagt einbýlishús með innbyggðum bílskúr á vinsælum og rólegum stað í Garði. Eignin er rúmgóð og björt með þremur svefnherbergjum, þar af hjónasvítu með sérbaðherbergi og fataherbergi, auk þess sem alrými er opið með góðu flæði milli stofu og eldhúss. Stór lóð býður upp á mikla möguleika og gott útisvæði.
Nánari upplýsingar veitir Valgeir Leifur / Löggiltur fasteignasali / 780-2575 / valgeir@valny.is
Smelltu hér til að fá söluyfirlit.
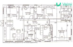
Samkvæmt fasteignaskrá HMS er eignin skráð samtals 170.9 m², þar af er íbúðarrými 140,70 m² og innbyggður bílskúr 30,20 m². Eign merkt 01-01, fastanúmer 253-5105 ásamt öllu því sem eigninni fylgir, þar með talið tilheyrandi lóðar og sameignarréttindi.
Lýsing og skipulag eignar:
Forstofa er flísalögð með fataskáp sem nær upp í loft.
Gangur verður parketlagður með harðparketi frá Birgisson.
Eldhús er með vandaðri innréttingu frá HTH, gott skápapláss og skúffur með mjúklokun. Ofn er í vinnuhæð og eyja er með góðri aðstöðu fyrir sæti. Gert er ráð fyrir innbyggðum ísskáp og uppþvottavél.
Stofa / borðstofa eru í opnu og björtu alrými með góðri tengingu við eldhús. Útgengi er úr alrými út í garð.
Hjónaherbergi er rúmgott með sér fataherbergi og sérbaðherbergi sem er búið upphengdu salerni og „walk-in“ sturtu.
Tvö svefnherbergi eru með fataskápum sem ná upp í loft og verða parketlögð.
Baðherbergi er flísalagt í hólf og gólf, með upphengdu salerni, góðri innréttingu með vaski og góðu skápaplássi ásamt „walk-in“ sturtu. Útgengt er í garð úr baðherbergi.
Þvottahús / Geymsla er með innréttingu þar sem gert er ráð fyrir þvottavél og þurrkara í vinnuhæð. Frá þvottahúsi er innangengt í bílskúr.
Bílskúr er 30,2 m² að stærð með bílskúrshurðaropnara. Einnig er útgengt út í garð frá bílskúr.
Gólfefni og innréttingar: Kaupendur hafa möguleika á að velja harðparket frá Birgisson í samráði við verktaka sem sér einnig um lögn parketsins. Hvítar innihurðir og hvítir gólflistar verða settir upp.
Byggingarlýsing:
Gluggar og hurðarkarmar eru hvítir tré/ál gluggar með tvöföldu gleri. Bílskúrshurð er úr lituðu stáli með rafmagnsopnun. Þakið er byggt upp með kraftsperrum og klætt með báruklæðningu. Þakkantur er úr timbri og útveggir eru klæddir báruáli. Gert er ráð fyrir tengingu hleðslustöðvar fyrir rafbíla í rafmagnstöflu hússins.
Lóð og aðkoma:
Innkeyrsla er steypt er steypt með snjóbræðslukerfi. Ídráttarrör og affall fyrir heitan pott eru staðsett bakvið húsið. Lóðin er rúmgóð, um 1600 m², grófjöfnuð og afhendist í núverandi ástandi nema samið sé sérstaklega um annað.
Nánari upplýsingar veitir Valgeir Leifur / Löggiltur fasteignasali / 780-2575 / valgeir@valny.is
Ertu að leita að nýbyggingum? Skoðaðu úrvalið hjá Valný – smelltu hér.
Ertu að hugsa um að selja? Smelltu hér og fáðu frítt verðmat.
Ekki missa af draumaeigninni – fylgstu með okkur á Instagram og Facebook
Lestu reynslusögur frá ánægðum viðskiptavinum okkar.
- Fasteignasalan sem opnar dyrnar að þinni eign.
Valný Real Estate Agency advises both sellers and potential buyers, who do not have Icelandic as their first language, to get the assistance of a translator when viewing and signing all necessary documents relating to buying and selling properties.
Um skoðunar- og aðgæsluskyldu: Í lögum um fasteignakaup nr. 40/2002 er kveðið á um ríka skoðunarskyldu kaupenda á fasteignum. Valný fasteignasala bendir öllum sem hugsa sér að kaupa, að kynna sér vel ástand fasteignarinnar við skoðun fyrir tilboðsgerð og leita til sérfræðinga um nánari ástandsskoðun ef þörf þykir.
Forsendur söluyfirlits: Söluyfirlit er samið af fasteignasala í samræmi við ákvæði laga nr. 70/2015. Þær upplýsingar sem fram koma í söluyfirliti þessu eru sóttar í opinberar skrár, til seljanda sjálfs og eftir atvikum til húsfélags. Seljandi veitir upplýsingar um eign í samræmi við upplýsingaskyldu laga um fasteignakaup nr. 40/2002. Fasteignasali sannreynir að þær upplýsingar séu réttar með sjónskoðun á eigninni. Fasteignasali getur ekki fullyrt um ástand og eiginleika þeirra hluta fasteigna sem ekki eru aðgengilegir og sjást ekki berum augum, t.d. lagnir, dren, skólp og þak.
Kostnaður sem kaupandi þarf að standa straum af:
1. Stimpilgjald: 0,8% af fasteignamati, 0,4% fyrir fyrstu kaupendur og 1,6% fyrir lögaðila.
2. Þinglýsingagjald: 2.700 kr. á hvert skjal (kaupsamningur, veðleyfi o.fl.)
3. Lántökukostnaður: Samkvæmt verðskrá viðkomandi lánastofnunar.
4. Þjónustu- og umsýslugjald fasteignasölu: Samkvæmt gjaldskrá Valný fasteignasölu.
5. Ef um nýbyggingu er að ræða, ber kaupanda að greiða skipulagsgjald sem nemur 0,3% af brunabótamati þegar það er innheimt.
Valný fasteignasala | www.valny.is | Tjarnargötu 2, 230 Reykjanesbær | Opið alla virka daga frá 9:00-16:00
Skagabraut 13, 250 Garður
Fallegt og vel skipulagt einbýlishús með innbyggðum bílskúr á vinsælum og rólegum stað í Garði. Eignin er rúmgóð og björt með þremur svefnherbergjum, þar af hjónasvítu með sérbaðherbergi og fataherbergi, auk þess sem alrými er opið með góðu flæði milli stofu og eldhúss. Stór lóð býður upp á mikla möguleika og gott útisvæði.
Nánari upplýsingar veitir Valgeir Leifur / Löggiltur fasteignasali / 780-2575 / valgeir@valny.is
Smelltu hér til að fá söluyfirlit.
Samkvæmt fasteignaskrá HMS er eignin skráð samtals 170.9 m², þar af er íbúðarrými 140,70 m² og innbyggður bílskúr 30,20 m². Eign merkt 01-01, fastanúmer 253-5105 ásamt öllu því sem eigninni fylgir, þar með talið tilheyrandi lóðar og sameignarréttindi.
Lýsing og skipulag eignar:
Forstofa er flísalögð með fataskáp sem nær upp í loft.
Gangur verður parketlagður með harðparketi frá Birgisson.
Eldhús er með vandaðri innréttingu frá HTH, gott skápapláss og skúffur með mjúklokun. Ofn er í vinnuhæð og eyja er með góðri aðstöðu fyrir sæti. Gert er ráð fyrir innbyggðum ísskáp og uppþvottavél.
Stofa / borðstofa eru í opnu og björtu alrými með góðri tengingu við eldhús. Útgengi er úr alrými út í garð.
Hjónaherbergi er rúmgott með sér fataherbergi og sérbaðherbergi sem er búið upphengdu salerni og „walk-in“ sturtu.
Tvö svefnherbergi eru með fataskápum sem ná upp í loft og verða parketlögð.
Baðherbergi er flísalagt í hólf og gólf, með upphengdu salerni, góðri innréttingu með vaski og góðu skápaplássi ásamt „walk-in“ sturtu. Útgengt er í garð úr baðherbergi.
Þvottahús / Geymsla er með innréttingu þar sem gert er ráð fyrir þvottavél og þurrkara í vinnuhæð. Frá þvottahúsi er innangengt í bílskúr.
Bílskúr er 30,2 m² að stærð með bílskúrshurðaropnara. Einnig er útgengt út í garð frá bílskúr.
Gólfefni og innréttingar: Kaupendur hafa möguleika á að velja harðparket frá Birgisson í samráði við verktaka sem sér einnig um lögn parketsins. Hvítar innihurðir og hvítir gólflistar verða settir upp.
Byggingarlýsing:
Gluggar og hurðarkarmar eru hvítir tré/ál gluggar með tvöföldu gleri. Bílskúrshurð er úr lituðu stáli með rafmagnsopnun. Þakið er byggt upp með kraftsperrum og klætt með báruklæðningu. Þakkantur er úr timbri og útveggir eru klæddir báruáli. Gert er ráð fyrir tengingu hleðslustöðvar fyrir rafbíla í rafmagnstöflu hússins.
Lóð og aðkoma:
Innkeyrsla er steypt er steypt með snjóbræðslukerfi. Ídráttarrör og affall fyrir heitan pott eru staðsett bakvið húsið. Lóðin er rúmgóð, um 1600 m², grófjöfnuð og afhendist í núverandi ástandi nema samið sé sérstaklega um annað.
Nánari upplýsingar veitir Valgeir Leifur / Löggiltur fasteignasali / 780-2575 / valgeir@valny.is
Ertu að leita að nýbyggingum? Skoðaðu úrvalið hjá Valný – smelltu hér.
Ertu að hugsa um að selja? Smelltu hér og fáðu frítt verðmat.
Ekki missa af draumaeigninni – fylgstu með okkur á Instagram og Facebook
Lestu reynslusögur frá ánægðum viðskiptavinum okkar.
- Fasteignasalan sem opnar dyrnar að þinni eign.
Valný Real Estate Agency advises both sellers and potential buyers, who do not have Icelandic as their first language, to get the assistance of a translator when viewing and signing all necessary documents relating to buying and selling properties.
Um skoðunar- og aðgæsluskyldu: Í lögum um fasteignakaup nr. 40/2002 er kveðið á um ríka skoðunarskyldu kaupenda á fasteignum. Valný fasteignasala bendir öllum sem hugsa sér að kaupa, að kynna sér vel ástand fasteignarinnar við skoðun fyrir tilboðsgerð og leita til sérfræðinga um nánari ástandsskoðun ef þörf þykir.
Forsendur söluyfirlits: Söluyfirlit er samið af fasteignasala í samræmi við ákvæði laga nr. 70/2015. Þær upplýsingar sem fram koma í söluyfirliti þessu eru sóttar í opinberar skrár, til seljanda sjálfs og eftir atvikum til húsfélags. Seljandi veitir upplýsingar um eign í samræmi við upplýsingaskyldu laga um fasteignakaup nr. 40/2002. Fasteignasali sannreynir að þær upplýsingar séu réttar með sjónskoðun á eigninni. Fasteignasali getur ekki fullyrt um ástand og eiginleika þeirra hluta fasteigna sem ekki eru aðgengilegir og sjást ekki berum augum, t.d. lagnir, dren, skólp og þak.
Kostnaður sem kaupandi þarf að standa straum af:
1. Stimpilgjald: 0,8% af fasteignamati, 0,4% fyrir fyrstu kaupendur og 1,6% fyrir lögaðila.
2. Þinglýsingagjald: 2.700 kr. á hvert skjal (kaupsamningur, veðleyfi o.fl.)
3. Lántökukostnaður: Samkvæmt verðskrá viðkomandi lánastofnunar.
4. Þjónustu- og umsýslugjald fasteignasölu: Samkvæmt gjaldskrá Valný fasteignasölu.
5. Ef um nýbyggingu er að ræða, ber kaupanda að greiða skipulagsgjald sem nemur 0,3% af brunabótamati þegar það er innheimt.
Valný fasteignasala | www.valny.is | Tjarnargötu 2, 230 Reykjanesbær | Opið alla virka daga frá 9:00-16:00