Upplýsingar
Byggt 2024
159,6 m²
4 herb.
2 baðherb.
3 svefnh.
Útsýni
Sérinngangur
Laus strax
Lýsing
Kasa fasteignir 461-2010.
Margrétarhagi 1A - Glæsileg og skemmtilega hönnuð 3-4 herbergja 159,6 fm endaraðhúsaíbúð í nýju 5 íbúða raðhúsi í Hagahverfi.
Eignin er skemmtilega hönnuð þar sem svefnrými eru á jarðhæð, stofa og eldhús á efrihæð og rúmgóð verönd á þaki eignar.
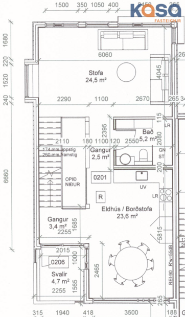
Eignin, sem er á þremur hæðum skiptist í:
Jarðhæð: Forstofa, gangur, þrjú svefnherbergi, baðherbergi með þvottaaðstöðu og geymslu.
Miðhæð: Eldhús, borðstofa, stofa og baðherbergi ásamt vestur svölum.
Efsta hæð: Sólstofa og þaksvalir.
Forstofa: Harð parketi gólfi og rúmgóður fataskápur.
Eldhús: Vönduð innrétting í hnotulíki með grárri bekkplötu og svörtum vaski. Mjúklokun á skúffum og skápum. Hnífaparabakki og ruslafata fylgir. Innbyggður ísskápur með frysti og innbyggð uppþvottavél fylgja með við sölu eignar. Helluborð er sléttfellt og gufugleypir blæs út. Úr eldhús er gengið út á vestursvalir.
Svefnherbergi: Eru þrjú, tvö þeirra með fataskápum, eitt þeirra er skráð sem geymsla en nýtist vel sem herbergi. Úr hjónaherbergi er hurð út á baklóð.
Baðherbergi: Eru tvö í eigninni. Eitt er á jarðhæðinni, þar eru flísar á gólfi og á tveimur veggjum, upphengt salerni, handklæðaofn og walk-in sturta með gleri. Innrétting er í hnotulíki með svartri plötu og handlaug. Speglaskápur með lýsingu er fyrir ofan handlaug og stakur skápur við hlið innréttingar. Innrétting fyrir þvottavél/þurrkara er á baðherberginu, skúffur fyrir neðan og skápar fyrir ofan. Tvöfaldur skápur er við hliðina á innréttingunni.
Baðherbergið á efri hæð er með flísum á gólfi og tveimur veggjum, upphengdu salerni, handklæðaofni og walk-in sturtu með föstu gleri. Innrétting er í hnotulíki með speglaskáp fyrir ofan.
Stofa er með stórum gluggum til þriggja átta. Stofa er skv. teikningum 24,5 fm að stærð. Virkilega skemmtilegt útsýni er úr stofu.
Sólstofa er á þriðju hæðinni með gluggum til þriggja átta og hurð út á um 55 fm þaksvalir sem eru hellulagðar með ljósum gúmmí hellum. Möguleiki er á að setja heitan pott og útisturtu á þaksvölum.
Geymsla: Þar eru inntökin fyrir eignina og rafmagnstaflan. Flísar á gólfi.
- Íbúðin selst fullbúin og er tilbúin til afhendingar.
- Vandaðar innréttingar frá GKS og eru í hnotulíki.
- Harðparket verður á alrýmum, flísar á baðherbergjum og geymslu og teppi á stiga.
- Hljóðdempandi plötur verða í svefnherbergjum og hljóðdempandi dúkur í alrými á annarri hæð. Önnur loft verða máluð.
- Rúmlega 55 m² þaksvalir þar sem möguleiki er að koma fyrir heitum potti og útisturtu
Skilalýsing eignar
Frágangur utanhúss
Húsið skilast fullbúið að utan. Burðarvirki hússins eru umhverfisvænar CLT einingar frá Binderholts í Austurríki.
Veggir eru 100 mm þykkir, klæddir með öndunnardúk undir 100 mm þykka harðpressaða steinull sem lokast með þar til gerðum brunadúk og lektum undir klæðningu.
Þök/þaksvalir eru einangruð með 110 mm -150 mm harðpressaðri steinull og ofan á það koma 2 lög af eldsoðnum tjörupappa.
Gólf þaksvala klæðast með ljósum gúmmíhellum.
Gengið er frá öllum lögnum fyrir heitanpott að staðsetningu hans svo og niðurfalli s.b. teikningu. Þetta á einnig við um útisturtu sem gert er ráð fyrir á þaksvölum. Kaupandi sér sjálfur um hitastýringu og tengingu fyrir pott.
Klæðning - húsið verður klætt með stallaðri klæðningu frá Joriside Tegund JI Sonora Vario Týpur 1-2 og 6. Litur er RAL 7022. Hluta til kemur slétt klæðning í lit RAL 1035 (pearl beige)
(https://www.joriside.com/en-gb/product-overview-joris-ide/product-overview/facade/facade-profiles/ji-sonora-vario-1--324)
Þak - CLT Einingar með rakavarnarpappa, steinullareinangrun og 2 lögum af eldsoðnum tjörupappa.
Ljósar gúmmíhellur koma á svalir.
Gluggar og Hurðir
Gluggar og útidyrahurðir eru vandaðir ál/trégluggar með tvöföldu einangrunargleri frá Ideal combi í Danmörku.
Sólargler í gluggum til suðurs og austurs
Loftræstiventlar eru í flestum gluggum.
Bílskúrshurðir eru með rafmagnsopnun.
Litur er RAL 1035 að utan og hvítir að innan.
Lóð umhverfis húsið verður þökulögð. Stéttar verða steyptar út að gangstétt. Bílastæði verða malbikuð.
Snjóbræðsla er í steyptum stéttum og bílaplani næst húsinu. Ekki er snjóbræðsla í aukstæðum.
Sorptunnuskýli eru forsteypt, 2 með hverri íbúð.
Gert er ráð fyrir bílhleðslutenglum utanhúss við hverja íbúð en fullnaðarfrágangur er EKKI innifalin í verði. Kaupandi dregur sjálfur rafmagnskapal og setur upp hleðslustöð.
Frágangur innanhúss
Íbúðum verður skilað með handslökkvitæki, lyfjakassa og reykskynjurum samkv. teikningum.
Gólf íbúða er 12 cm járnbent steinsteypa á jarðhæð. Gólfhitalagnir eru ísteyptar.
Yfir 1 hæð eru 140 mm CLT einingar með plastdúk. Gólfhitalagnir eru settar í 60 mm flot undir gólfefni.
8 mm vandað harðparket frá Ebson ehf (Ocean Light natural) með hljóðdeyfidúk er á gólfum íbúða og flísar á baðherbergisgólfum, (Viken Beige) 60x60.
Bílskúrsflísar eru (30x30).
Stigar eru teppalagðir með slitsterku efni ljósbrúnt að lit.
Veggir eru ýmist klæddir með 1 eða 2 lögum af 12,5 mm gipsplötum, spartlaðir og málaðir í ljósum lit (REYR) litakort Sæju í Slippfélaginu. Baðherbergisveggir skilast 2 flísalagðir, (60x60) og 2 málaðir.
Loft verða klædd með hljóðdempandi plötum í herbergjum en böð, geymslur, bílskúrar, forstofa og gangur á 1 hæð eru spörsluð og máluð. Í alrými á annari hæð kemur hljóðdempandi dúkur í hvítum lit.
Innréttingar
Allar innréttingar koma frá GKS.
Eldhús/böð , Hnotulíki, innréttingar og tæki frá Nobilia í Þýskalandi.
Innbyggður ísskápur/frystir, sléttfellt helluborð, gufugleypir blæs beint út og innbyggð uppþvottavél fylgir öllum íbúðum.
Vaskar í eldhúsum eru sléttfelldir steyptir, svartir að lit með svörtum blöndunnartækjum. Mjúklokun á skúffum og skápum á baði og eldhúsi, hnífaparabakki og ruslafata fylgir. Blöndunartæki af vandaðri gerð.
Baðherbergisinnrétting 100 cm með hvítri heilli plötu og handlaug. Speglaskápar með lýsingu ofan við vask. Stakur skápur við hlið handlaugar 50 cm breiður. Innrétting fyrir þvottavél/þurrkara er á baðherbergi á 1 hæð, skúffur fyrir neðan og skápar fyrir ofan. 2 stk 50 cm skápar er við hlið þessarar einingar.
Baðherbergi á 2. hæð er með 80 cm innréttingu og speglaskáp fyrir ofan.
Fataskápar eru úr Hnotulíki með 120 cm svörtum handföngum.
Skápar í hjónaherbergi eru 100+100 cm, fataslá, hillur og 4 innbyggðar skúffur í hvorum skáp. Fataskápur barnaherbergi 80 cm. Fataslá, hillur og 4 innbyggðar skúffur.
Forstofuskápar er 100+90 cm.
Innihurðir eru yfirfelldar hvítar, mött áferð.
Lýsing
Baðherbergi er með loftljósi og lýsingu í speglaskáp á 1. hæð en ofaná speglaskáp á annari hæð.
Alrými á annari hæð er með innfelldri lýsingu og dimmer. En dósum fyrir borðstofuljós og öðrum þess háttar.
Loftræsting
Vélrænt útsog er úr öllum votrýmum svo og úr öllum eldhússviftum.
Pípulagnir
Hiti er í öllum gólfum.
Varmaskiptir er á neysluvatni.
Snjóbræðsla er á lokuðu frostlögskerfi.
- Minniháttar sprungur geta myndast á máluðum flötum nýbygginga á fyrstu mánuðum eftir afhendingu og telst slík sprungumyndun ekki til ágalla.
- Kaupandi greiður skipulagsgjald þegar það verður lagt á 0,3% af brunabótamati eignar.
Byggingaverktaki: BF Byggingar ehf
Hönnun: Anna Margrét Hauksdóttir Arkitekt AVH ehf
Rafverktaki: Rafeyri ehf
Pípulögn: Bútur ehf
Málning: MSM ehf
Múrari: S. Guðmundsson ehf
Blikksmíði/loftræsting: Blikkrás ehf
Nánari upplýsingar veita:
Sigurpáll á sigurpall@kasafasteignir.is eða í síma 696-1006.
Helgi Steinar á helgi@kasafasteignir.is eða í síma 666-0999.
Sibba á sibba@kasafasteignir.is eða í síma 864-0054.
------------
Skoðunarskylda:
Í lögum um fasteignakaup nr. 40/2002 er kveðið á um ríka skoðunarskyldu kaupenda á fasteignum. Kasa fasteignir benda væntanlegum kaupendum á að kynna sér vel ástand fasteigna fyrir kauptilboðsgerð og leita til þar til bærra sérfræðinga um nánari skoðun ef þurfa þykir.
Forsendur söluyfirlits:
Söluyfirlit er samið af fasteignasala í samræmi við ákvæði laga nr. 70/2015. Þær upplýsingar sem fram koma í söluyfirliti þessu eru sóttar í opinberar skrár, til seljanda sjálfs og eftir atvikum til húsfélags. Seljandi veitir upplýsingar um eign í samræmi við upplýsingaskyldu laga um fasteignakaup nr. 40/2002. Fasteignasali sannreynir að þær upplýsingar séu réttar með sjónskoðun á eigninni. Fasteignasali getur ekki fullyrt um ástand og eiginleika þeirra hluta fasteigna sem ekki eru aðgengilegir og sjást ekki berum augum, t.d. lagnir, dren, skólp og þak.
Gjöld sem kaupandi þarf að standa straum af vegna kaupanna:
1. Stimpilgjald sýslumanns af kaupsamningi, fyrstu kaup (0,4%), almenn kaup (0,8%), lögaðilar (1,6%) af heildarfasteignamati eignar.
2. Þinglýsingargjald af kaupsamningi, veðskuldabréfi, mögulegu veðleyfi o.fl. - kr. 2.700 af hverju skjali.
3. Lántökugjald lánastofnunar er skv. verðskrá viðkomandi lánastofnunar. Nánari upplýsingar á t.d. heimasíðu lánastofnana.
4. Umsýslugjald til fasteignasölu skv. kauptilboði.
Margrétarhagi 1A - Glæsileg og skemmtilega hönnuð 3-4 herbergja 159,6 fm endaraðhúsaíbúð í nýju 5 íbúða raðhúsi í Hagahverfi.
Eignin er skemmtilega hönnuð þar sem svefnrými eru á jarðhæð, stofa og eldhús á efrihæð og rúmgóð verönd á þaki eignar.
Eignin, sem er á þremur hæðum skiptist í:
Jarðhæð: Forstofa, gangur, þrjú svefnherbergi, baðherbergi með þvottaaðstöðu og geymslu.
Miðhæð: Eldhús, borðstofa, stofa og baðherbergi ásamt vestur svölum.
Efsta hæð: Sólstofa og þaksvalir.
Forstofa: Harð parketi gólfi og rúmgóður fataskápur.
Eldhús: Vönduð innrétting í hnotulíki með grárri bekkplötu og svörtum vaski. Mjúklokun á skúffum og skápum. Hnífaparabakki og ruslafata fylgir. Innbyggður ísskápur með frysti og innbyggð uppþvottavél fylgja með við sölu eignar. Helluborð er sléttfellt og gufugleypir blæs út. Úr eldhús er gengið út á vestursvalir.
Svefnherbergi: Eru þrjú, tvö þeirra með fataskápum, eitt þeirra er skráð sem geymsla en nýtist vel sem herbergi. Úr hjónaherbergi er hurð út á baklóð.
Baðherbergi: Eru tvö í eigninni. Eitt er á jarðhæðinni, þar eru flísar á gólfi og á tveimur veggjum, upphengt salerni, handklæðaofn og walk-in sturta með gleri. Innrétting er í hnotulíki með svartri plötu og handlaug. Speglaskápur með lýsingu er fyrir ofan handlaug og stakur skápur við hlið innréttingar. Innrétting fyrir þvottavél/þurrkara er á baðherberginu, skúffur fyrir neðan og skápar fyrir ofan. Tvöfaldur skápur er við hliðina á innréttingunni.
Baðherbergið á efri hæð er með flísum á gólfi og tveimur veggjum, upphengdu salerni, handklæðaofni og walk-in sturtu með föstu gleri. Innrétting er í hnotulíki með speglaskáp fyrir ofan.
Stofa er með stórum gluggum til þriggja átta. Stofa er skv. teikningum 24,5 fm að stærð. Virkilega skemmtilegt útsýni er úr stofu.
Sólstofa er á þriðju hæðinni með gluggum til þriggja átta og hurð út á um 55 fm þaksvalir sem eru hellulagðar með ljósum gúmmí hellum. Möguleiki er á að setja heitan pott og útisturtu á þaksvölum.
Geymsla: Þar eru inntökin fyrir eignina og rafmagnstaflan. Flísar á gólfi.
- Íbúðin selst fullbúin og er tilbúin til afhendingar.
- Vandaðar innréttingar frá GKS og eru í hnotulíki.
- Harðparket verður á alrýmum, flísar á baðherbergjum og geymslu og teppi á stiga.
- Hljóðdempandi plötur verða í svefnherbergjum og hljóðdempandi dúkur í alrými á annarri hæð. Önnur loft verða máluð.
- Rúmlega 55 m² þaksvalir þar sem möguleiki er að koma fyrir heitum potti og útisturtu
Skilalýsing eignar
Frágangur utanhúss
Húsið skilast fullbúið að utan. Burðarvirki hússins eru umhverfisvænar CLT einingar frá Binderholts í Austurríki.
Veggir eru 100 mm þykkir, klæddir með öndunnardúk undir 100 mm þykka harðpressaða steinull sem lokast með þar til gerðum brunadúk og lektum undir klæðningu.
Þök/þaksvalir eru einangruð með 110 mm -150 mm harðpressaðri steinull og ofan á það koma 2 lög af eldsoðnum tjörupappa.
Gólf þaksvala klæðast með ljósum gúmmíhellum.
Gengið er frá öllum lögnum fyrir heitanpott að staðsetningu hans svo og niðurfalli s.b. teikningu. Þetta á einnig við um útisturtu sem gert er ráð fyrir á þaksvölum. Kaupandi sér sjálfur um hitastýringu og tengingu fyrir pott.
Klæðning - húsið verður klætt með stallaðri klæðningu frá Joriside Tegund JI Sonora Vario Týpur 1-2 og 6. Litur er RAL 7022. Hluta til kemur slétt klæðning í lit RAL 1035 (pearl beige)
(https://www.joriside.com/en-gb/product-overview-joris-ide/product-overview/facade/facade-profiles/ji-sonora-vario-1--324)
Þak - CLT Einingar með rakavarnarpappa, steinullareinangrun og 2 lögum af eldsoðnum tjörupappa.
Ljósar gúmmíhellur koma á svalir.
Gluggar og Hurðir
Gluggar og útidyrahurðir eru vandaðir ál/trégluggar með tvöföldu einangrunargleri frá Ideal combi í Danmörku.
Sólargler í gluggum til suðurs og austurs
Loftræstiventlar eru í flestum gluggum.
Bílskúrshurðir eru með rafmagnsopnun.
Litur er RAL 1035 að utan og hvítir að innan.
Lóð umhverfis húsið verður þökulögð. Stéttar verða steyptar út að gangstétt. Bílastæði verða malbikuð.
Snjóbræðsla er í steyptum stéttum og bílaplani næst húsinu. Ekki er snjóbræðsla í aukstæðum.
Sorptunnuskýli eru forsteypt, 2 með hverri íbúð.
Gert er ráð fyrir bílhleðslutenglum utanhúss við hverja íbúð en fullnaðarfrágangur er EKKI innifalin í verði. Kaupandi dregur sjálfur rafmagnskapal og setur upp hleðslustöð.
Frágangur innanhúss
Íbúðum verður skilað með handslökkvitæki, lyfjakassa og reykskynjurum samkv. teikningum.
Gólf íbúða er 12 cm járnbent steinsteypa á jarðhæð. Gólfhitalagnir eru ísteyptar.
Yfir 1 hæð eru 140 mm CLT einingar með plastdúk. Gólfhitalagnir eru settar í 60 mm flot undir gólfefni.
8 mm vandað harðparket frá Ebson ehf (Ocean Light natural) með hljóðdeyfidúk er á gólfum íbúða og flísar á baðherbergisgólfum, (Viken Beige) 60x60.
Bílskúrsflísar eru (30x30).
Stigar eru teppalagðir með slitsterku efni ljósbrúnt að lit.
Veggir eru ýmist klæddir með 1 eða 2 lögum af 12,5 mm gipsplötum, spartlaðir og málaðir í ljósum lit (REYR) litakort Sæju í Slippfélaginu. Baðherbergisveggir skilast 2 flísalagðir, (60x60) og 2 málaðir.
Loft verða klædd með hljóðdempandi plötum í herbergjum en böð, geymslur, bílskúrar, forstofa og gangur á 1 hæð eru spörsluð og máluð. Í alrými á annari hæð kemur hljóðdempandi dúkur í hvítum lit.
Innréttingar
Allar innréttingar koma frá GKS.
Eldhús/böð , Hnotulíki, innréttingar og tæki frá Nobilia í Þýskalandi.
Innbyggður ísskápur/frystir, sléttfellt helluborð, gufugleypir blæs beint út og innbyggð uppþvottavél fylgir öllum íbúðum.
Vaskar í eldhúsum eru sléttfelldir steyptir, svartir að lit með svörtum blöndunnartækjum. Mjúklokun á skúffum og skápum á baði og eldhúsi, hnífaparabakki og ruslafata fylgir. Blöndunartæki af vandaðri gerð.
Baðherbergisinnrétting 100 cm með hvítri heilli plötu og handlaug. Speglaskápar með lýsingu ofan við vask. Stakur skápur við hlið handlaugar 50 cm breiður. Innrétting fyrir þvottavél/þurrkara er á baðherbergi á 1 hæð, skúffur fyrir neðan og skápar fyrir ofan. 2 stk 50 cm skápar er við hlið þessarar einingar.
Baðherbergi á 2. hæð er með 80 cm innréttingu og speglaskáp fyrir ofan.
Fataskápar eru úr Hnotulíki með 120 cm svörtum handföngum.
Skápar í hjónaherbergi eru 100+100 cm, fataslá, hillur og 4 innbyggðar skúffur í hvorum skáp. Fataskápur barnaherbergi 80 cm. Fataslá, hillur og 4 innbyggðar skúffur.
Forstofuskápar er 100+90 cm.
Innihurðir eru yfirfelldar hvítar, mött áferð.
Lýsing
Baðherbergi er með loftljósi og lýsingu í speglaskáp á 1. hæð en ofaná speglaskáp á annari hæð.
Alrými á annari hæð er með innfelldri lýsingu og dimmer. En dósum fyrir borðstofuljós og öðrum þess háttar.
Loftræsting
Vélrænt útsog er úr öllum votrýmum svo og úr öllum eldhússviftum.
Pípulagnir
Hiti er í öllum gólfum.
Varmaskiptir er á neysluvatni.
Snjóbræðsla er á lokuðu frostlögskerfi.
- Minniháttar sprungur geta myndast á máluðum flötum nýbygginga á fyrstu mánuðum eftir afhendingu og telst slík sprungumyndun ekki til ágalla.
- Kaupandi greiður skipulagsgjald þegar það verður lagt á 0,3% af brunabótamati eignar.
Byggingaverktaki: BF Byggingar ehf
Hönnun: Anna Margrét Hauksdóttir Arkitekt AVH ehf
Rafverktaki: Rafeyri ehf
Pípulögn: Bútur ehf
Málning: MSM ehf
Múrari: S. Guðmundsson ehf
Blikksmíði/loftræsting: Blikkrás ehf
Nánari upplýsingar veita:
Sigurpáll á sigurpall@kasafasteignir.is eða í síma 696-1006.
Helgi Steinar á helgi@kasafasteignir.is eða í síma 666-0999.
Sibba á sibba@kasafasteignir.is eða í síma 864-0054.
------------
Skoðunarskylda:
Í lögum um fasteignakaup nr. 40/2002 er kveðið á um ríka skoðunarskyldu kaupenda á fasteignum. Kasa fasteignir benda væntanlegum kaupendum á að kynna sér vel ástand fasteigna fyrir kauptilboðsgerð og leita til þar til bærra sérfræðinga um nánari skoðun ef þurfa þykir.
Forsendur söluyfirlits:
Söluyfirlit er samið af fasteignasala í samræmi við ákvæði laga nr. 70/2015. Þær upplýsingar sem fram koma í söluyfirliti þessu eru sóttar í opinberar skrár, til seljanda sjálfs og eftir atvikum til húsfélags. Seljandi veitir upplýsingar um eign í samræmi við upplýsingaskyldu laga um fasteignakaup nr. 40/2002. Fasteignasali sannreynir að þær upplýsingar séu réttar með sjónskoðun á eigninni. Fasteignasali getur ekki fullyrt um ástand og eiginleika þeirra hluta fasteigna sem ekki eru aðgengilegir og sjást ekki berum augum, t.d. lagnir, dren, skólp og þak.
Gjöld sem kaupandi þarf að standa straum af vegna kaupanna:
1. Stimpilgjald sýslumanns af kaupsamningi, fyrstu kaup (0,4%), almenn kaup (0,8%), lögaðilar (1,6%) af heildarfasteignamati eignar.
2. Þinglýsingargjald af kaupsamningi, veðskuldabréfi, mögulegu veðleyfi o.fl. - kr. 2.700 af hverju skjali.
3. Lántökugjald lánastofnunar er skv. verðskrá viðkomandi lánastofnunar. Nánari upplýsingar á t.d. heimasíðu lánastofnana.
4. Umsýslugjald til fasteignasölu skv. kauptilboði.