Upplýsingar
Byggt 2024
159,6 m²
4 herb.
2 baðherb.
3 svefnh.
Lýsing
EIGNAVER 460-6060.
Margrétarhagi 1 a Akureyri. * Nýbygging *
Glæsileg og skemmtilega hönnuð 4ra herbergja 159,6 fm. íbúð í raðhúsi á góðum stað í Hagahverfi. Vönduð eign með frábæru útsýni.
Byggingaraðili: BF.byggingar ehf.
Margrétarhagi 1 er glæsilegt og skemmtilega hannað 5 íbúða raðhús á þremur hæðum.
Íbúðirnar eru ýmist þriggja herbergja með bílskúr eða fjögurra herbergja án bílskúrs.
Allar íbúðir eru með rúmlega 57 m² þaksvalir þar sem möguleiki er að koma fyrir heitum potti og útisturtu.
Íbúðirnar afhendast fullbúnar skv. skilalýsingu.
Afhendingartími, haust 2024.
Íbúð A er fjögurra herbergja, samtals 159,6 m², þaksvalir eru 57,3 m².
Eignin er á þremur hæðum, á jarðhæð er forstofa, bílgeymsla, gangur, baðherbergi með aðstöðu fyrir þvottavél og þurrkara, og þrjú svefnherbergi.
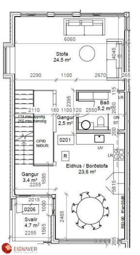
Miðhæðin skiptist í stofu, baðherbergi, eldhús og borðstofu ásamt útgöngu út á svalir til vesturs.
Á þriðju hæð er sólstofa og þaksvalir.
Íbúðum verður skilað fullfrágengnum sem og sameign og lóð. Afhending haust 2024
- Fallegar og vandaðar innréttingar frá GKS úr hnotulíki
- Vönduð gólfefni, harðparket á öllum rýmum utan votrýma, fallegar flísar á baðherbergjum og bílskúr.
- Loft svefnherbergja með hljóðdempandi plötum og sérstakur hljóðvistardúkur í loftum alrýmis á II. hæð.
- Rúmgóð bílastæði, hiti í stéttum og bílastæði næst íbúð.
- Glæsilegar þaksvalir með útsýni til allra átta og þar er gert ráð fyrir heitum potti og útisturtu.
Frágangur utanhúss
Húsið skilast fullbúið að utan. Burðarvirki hússins eru umhverfisvænar CLT einingar frá Binderholts í Austurríki.
Þök/þaksvalir eru einangruð með 110 mm -150 mm harðpressaðri steinull og ofan á það koma 2 lög af eldsoðnum tjörupappa.
Gólf þaksvala klæðast með ljósum gúmíhellum.
Gengið er frá öllum lögnum fyrir heitanpott að staðsetningu hans svo og niðurfalli s.b. teikningu. Þetta á einnig við um útisturtu sem gert er ráð fyrir á þaksvölum.
Kaupandi sér sjálfur um hitastýringu og tengingu fyrir pott.
Klæðning
Húsið verður klætt með stallaðri klæðningu frá Joriside Tegund JI Sonora Vario
Gluggar og Hurðir
Gluggar og útidyrahurðir eru vandaðir ál/trégluggar með tvöföldu einangrunargleri frá Ideal combi í Danmörku.
Sólargler í gluggum til suðurs og austurs. Loftræstiventlar eru í flestum gluggum.
Bílskúrshurðir eru með rafmagnsopnun.
Lóð
Lóð umhverfis húsið verður þökulögð. Stéttar verða steyptar út að gangstétt. Bílastæði verða malbikuð.
Snjóbræðsla er í steyptum stéttum og bílaplani næst húsinu. Ekki er snjóbræðsla í aukastæðum.
Sorptunnuskýli eru forsteypt, 2 með hverri íbúð.
Steyptar verandir með snjóbræðslu eru austan við húsið með aðgengi frá hjónaherbergi.
Gert er ráð fyrir bílhleðslutenglum utanhúss við hverja íbúð en fullnaðarfrágangur er EKKI innifalin í verði. Kaupandi dregur sjálfur rafmagnskapal og setur upp hleðslustöð.
Frágangur innanhúss
8 mm vandað harðparket frá Ebson ehf (Ocean Light natural) með hljóðdeyfidúk er á gólfum íbúða og flísar á baðherbergisgólfum, (Viken Beige) 60x60.
Bílskúrsflísar (íbúðir B, C og D) eru 30x30.
Stigar eru teppalagðir með slitsterku efni ljósbrúnt að lit.
Veggir
Veggir eru ýmist klæddir með 1 eða 2 lögum af 12,5 mm gipsplötum , spartlaðir og málaðir í ljósum lit (REYR) litakort Sæju í Slippfélaginu. Baðherbergisveggir
skilast 2 flísalagðir, (60x60) og 2 málaðir.
Loft
Loft verða klædd með hljóðdempandi plötum í herbergjum en böð, geymslur, bílskúrar, forstofa og gangur á 1 hæð eru spörsluð og máluð.
Í alrými á annari hæð kemur hljóðdempandi dúkur í hvítum lit.
Innréttingar
Allar innréttingar koma frá GKS.
Eldhús/böð , Hnotulíki, innréttingar og tæki frá Nobilia í Þýskalandi.
Innbyggður ísskápur/frystir, sléttfellt helluborð, gufugleypir blæs beint út. og innbyggð uppþvottavél fylgir öllum íbúðum.
Vaskar í eldhúsum eru sléttfelldir steyptir, svartir að lit með svörtum blöndunnartækjum. Mjúklokun á skúffum og skápum á baði og eldhúsi, hnífaparabakki og ruslafata fylgir.
Blöndunartæki af vandaðri gerð
Baðherbergi neðri hæð;
Baðherbergisinnrétting 100 cm með hvítri heilli plötu og handlaug. Speglaskápar með lýsingu ofan við vask. Baðherbergisveggir skilast 2 flísalagðir, (60x60) og 2 málaðir.
Innrétting fyrir þvottavél/þurrkara er á baðherbergi á 1 hæð, skúffur fyrir neðan og skápar fyrir ofan.
Baðherbergi á 2. hæð er með 80 cm innréttingu og speglaskáp fyrir ofan. Baðherbergisveggir skilast 2 flísalagðir, (60x60) og 2 málaðir.
Fataskápar eru úr Hnotulíki. Með 120 cm svörtum handföngum.
Innihurðir
Innihurðir eru yfirfelldar hvítar, mött áferð.
Lýsing
Baðherbergi er með loftljósi og lýsingu í speglaskáp á 1. hæð en ofaná speglaskáp á annari hæð.
Alrými á annari hæð er með innfelldri lýsingu og dimmer. En dósum fyrir borðstofuljós og öðrum þess háttar.
Loftræsting
Vélrænt útsog er úr öllum votrýmum svo og úr öllum eldhússviftum.
Pípulagnir
Varmaskiptir er á neysluvatni
Snjóbræðsla er á lokuðu frostlögskerfi.
3víddar teikningar eru eingöngu til hliðsjónar
Kaupandi greiðir skipulagsgjald þegar það verður lagt á, 0,3% af brunabótamati eignar.
Nánari upplýsingar hjá eftirtöldum aðilum :
Begga S: 845-0671 / begga@eignaver.is
Tryggvi s: 862-7919 / tryggvi@eignaver.is
Arnar s: 898-7011 / arnar@eignaver.is
Margrétarhagi 1 a Akureyri. * Nýbygging *
Glæsileg og skemmtilega hönnuð 4ra herbergja 159,6 fm. íbúð í raðhúsi á góðum stað í Hagahverfi. Vönduð eign með frábæru útsýni.
Byggingaraðili: BF.byggingar ehf.
Margrétarhagi 1 er glæsilegt og skemmtilega hannað 5 íbúða raðhús á þremur hæðum.
Íbúðirnar eru ýmist þriggja herbergja með bílskúr eða fjögurra herbergja án bílskúrs.
Allar íbúðir eru með rúmlega 57 m² þaksvalir þar sem möguleiki er að koma fyrir heitum potti og útisturtu.
Íbúðirnar afhendast fullbúnar skv. skilalýsingu.
Afhendingartími, haust 2024.
Íbúð A er fjögurra herbergja, samtals 159,6 m², þaksvalir eru 57,3 m².
Eignin er á þremur hæðum, á jarðhæð er forstofa, bílgeymsla, gangur, baðherbergi með aðstöðu fyrir þvottavél og þurrkara, og þrjú svefnherbergi.
Miðhæðin skiptist í stofu, baðherbergi, eldhús og borðstofu ásamt útgöngu út á svalir til vesturs.
Á þriðju hæð er sólstofa og þaksvalir.
Íbúðum verður skilað fullfrágengnum sem og sameign og lóð. Afhending haust 2024
- Fallegar og vandaðar innréttingar frá GKS úr hnotulíki
- Vönduð gólfefni, harðparket á öllum rýmum utan votrýma, fallegar flísar á baðherbergjum og bílskúr.
- Loft svefnherbergja með hljóðdempandi plötum og sérstakur hljóðvistardúkur í loftum alrýmis á II. hæð.
- Rúmgóð bílastæði, hiti í stéttum og bílastæði næst íbúð.
- Glæsilegar þaksvalir með útsýni til allra átta og þar er gert ráð fyrir heitum potti og útisturtu.
Frágangur utanhúss
Húsið skilast fullbúið að utan. Burðarvirki hússins eru umhverfisvænar CLT einingar frá Binderholts í Austurríki.
Þök/þaksvalir eru einangruð með 110 mm -150 mm harðpressaðri steinull og ofan á það koma 2 lög af eldsoðnum tjörupappa.
Gólf þaksvala klæðast með ljósum gúmíhellum.
Gengið er frá öllum lögnum fyrir heitanpott að staðsetningu hans svo og niðurfalli s.b. teikningu. Þetta á einnig við um útisturtu sem gert er ráð fyrir á þaksvölum.
Kaupandi sér sjálfur um hitastýringu og tengingu fyrir pott.
Klæðning
Húsið verður klætt með stallaðri klæðningu frá Joriside Tegund JI Sonora Vario
Gluggar og Hurðir
Gluggar og útidyrahurðir eru vandaðir ál/trégluggar með tvöföldu einangrunargleri frá Ideal combi í Danmörku.
Sólargler í gluggum til suðurs og austurs. Loftræstiventlar eru í flestum gluggum.
Bílskúrshurðir eru með rafmagnsopnun.
Lóð
Lóð umhverfis húsið verður þökulögð. Stéttar verða steyptar út að gangstétt. Bílastæði verða malbikuð.
Snjóbræðsla er í steyptum stéttum og bílaplani næst húsinu. Ekki er snjóbræðsla í aukastæðum.
Sorptunnuskýli eru forsteypt, 2 með hverri íbúð.
Steyptar verandir með snjóbræðslu eru austan við húsið með aðgengi frá hjónaherbergi.
Gert er ráð fyrir bílhleðslutenglum utanhúss við hverja íbúð en fullnaðarfrágangur er EKKI innifalin í verði. Kaupandi dregur sjálfur rafmagnskapal og setur upp hleðslustöð.
Frágangur innanhúss
8 mm vandað harðparket frá Ebson ehf (Ocean Light natural) með hljóðdeyfidúk er á gólfum íbúða og flísar á baðherbergisgólfum, (Viken Beige) 60x60.
Bílskúrsflísar (íbúðir B, C og D) eru 30x30.
Stigar eru teppalagðir með slitsterku efni ljósbrúnt að lit.
Veggir
Veggir eru ýmist klæddir með 1 eða 2 lögum af 12,5 mm gipsplötum , spartlaðir og málaðir í ljósum lit (REYR) litakort Sæju í Slippfélaginu. Baðherbergisveggir
skilast 2 flísalagðir, (60x60) og 2 málaðir.
Loft
Loft verða klædd með hljóðdempandi plötum í herbergjum en böð, geymslur, bílskúrar, forstofa og gangur á 1 hæð eru spörsluð og máluð.
Í alrými á annari hæð kemur hljóðdempandi dúkur í hvítum lit.
Innréttingar
Allar innréttingar koma frá GKS.
Eldhús/böð , Hnotulíki, innréttingar og tæki frá Nobilia í Þýskalandi.
Innbyggður ísskápur/frystir, sléttfellt helluborð, gufugleypir blæs beint út. og innbyggð uppþvottavél fylgir öllum íbúðum.
Vaskar í eldhúsum eru sléttfelldir steyptir, svartir að lit með svörtum blöndunnartækjum. Mjúklokun á skúffum og skápum á baði og eldhúsi, hnífaparabakki og ruslafata fylgir.
Blöndunartæki af vandaðri gerð
Baðherbergi neðri hæð;
Baðherbergisinnrétting 100 cm með hvítri heilli plötu og handlaug. Speglaskápar með lýsingu ofan við vask. Baðherbergisveggir skilast 2 flísalagðir, (60x60) og 2 málaðir.
Innrétting fyrir þvottavél/þurrkara er á baðherbergi á 1 hæð, skúffur fyrir neðan og skápar fyrir ofan.
Baðherbergi á 2. hæð er með 80 cm innréttingu og speglaskáp fyrir ofan. Baðherbergisveggir skilast 2 flísalagðir, (60x60) og 2 málaðir.
Fataskápar eru úr Hnotulíki. Með 120 cm svörtum handföngum.
Innihurðir
Innihurðir eru yfirfelldar hvítar, mött áferð.
Lýsing
Baðherbergi er með loftljósi og lýsingu í speglaskáp á 1. hæð en ofaná speglaskáp á annari hæð.
Alrými á annari hæð er með innfelldri lýsingu og dimmer. En dósum fyrir borðstofuljós og öðrum þess háttar.
Loftræsting
Vélrænt útsog er úr öllum votrýmum svo og úr öllum eldhússviftum.
Pípulagnir
Varmaskiptir er á neysluvatni
Snjóbræðsla er á lokuðu frostlögskerfi.
3víddar teikningar eru eingöngu til hliðsjónar
Kaupandi greiðir skipulagsgjald þegar það verður lagt á, 0,3% af brunabótamati eignar.
Nánari upplýsingar hjá eftirtöldum aðilum :
Begga S: 845-0671 / begga@eignaver.is
Tryggvi s: 862-7919 / tryggvi@eignaver.is
Arnar s: 898-7011 / arnar@eignaver.is