Upplýsingar
Verðsaga
Byggt 2022
64,3 m²
4 herb.
1 baðherb.
3 svefnh.
Sameiginl. inngangur
Lyfta
Opið hús: 15. október 2025
kl. 17:00
til 17:30
Opið hús: Jöfursbás 11B, 112 Reykjavík, Íbúð merkt: 01 03 08. Eignin verður sýnd miðvikudaginn 15. október 2025 milli kl. 17:00 og kl. 17:30.
Lýsing
Afar vel skipulögð 4ra herbergja íbúð við Jöfursbás 11B, Gufuneshverfi, Grafarvogi.
* Húsið var byggt 2022
* Frábær fyrstu kaup
* Kaupendur á aldrinum 18-40 ára eru í forgangi samkv. kvöð á eigninni.
Nánari upplýsingar veita:
Evert Guðmundsson Lgf. í síma 823-3022 eða evert@palssonfasteignasala.is
Páll Pálsson Lgf. í síma 775-4000 eða palli@palssonfasteignasala.is
www.eignavakt.is
www.verdmat.is
Góð ráð fyrir kaupendur / seljendur
Birt stærð eignar samkv. Fasteignaskrá Íslands er 64,30 m2 og fyrirhugað fasteignmat 2026 er 60.350.000 kr
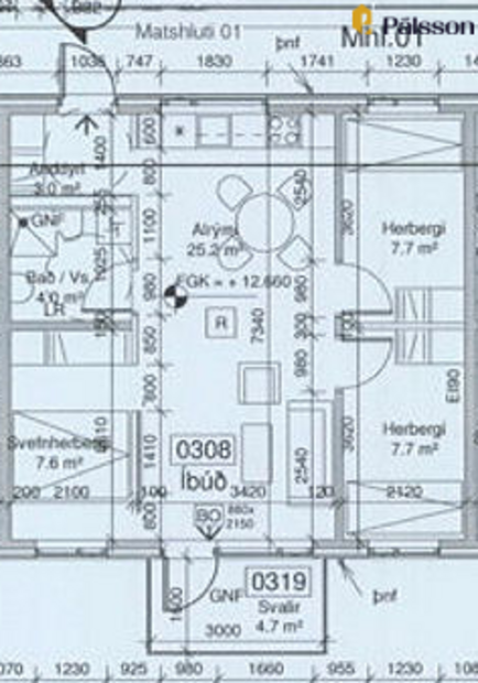
Anddyri er flísalagt með skáp og fatahengi.
Eldhús, borðstofa og stofa eru í björtu alrými með parket á gólfi. Í eldhúsi er Innrétting með tengi fyrir uppþvottavél, bakarofn, helluborði og viftu.
Út frá stofu er útgengt út á svalir til suðurs.
Baðherbergi er með innréttingu með handlaug og skúffum, upphengdu wc, "walk-in" sturtu með hengi og tengi fyrir þvottavél og þurrkara. Flísar á gólfi og sturtu
Svefnherbergi 1 er með parket á gólfi og fataskáp.
Svefnherbergi 2 er með parket á gólfi og fataskáp.
Svefnherbergi 3 er með parket á gólfi og fataskáp.
Sameiginleg hjólageymsla og þvottahús er á jarðhæð.
Í sameign er einnig vinnuaðstaða/veislusalur sem íbúar geta leigt og pósthús.
Íbúðirnar hafa haft afnot af matjurtargarði sem Reykjavíkurborg lánar Jöfursbás 11.
Íbúðir Þorpsins vistfélags eru á sjávarlóð í nýju hverfi í Gufunesi. Frá lóðinni er glæsileg sjávarsýn og útsýni yfir Geldinganes og Viðey. Í hverfinu og meðfram lóðinni verða göngu- og hjólastígar meðfram ströndinni sem tengjast grónum íbúðasvæðum í Grafarvogi.
Íbúðarhúsin mynda garðrými fyrir skjólgott torg, leikvöll, boltavelli og grasfleti. Torgið verður við aðalinngang húsanna við sameiginleg rými íbúa. Leik- og dvalaraðstaða er norðan megin gegnt ströndinni þar sem gert er ráð fyrir sparkvelli og götuboltasvæði. Tekið er tillit til sólarátta og byggð skipulögð þannig að garðrýmin eru í góðu skjóli fyrir veðri og vindum. Við innganginn er sólríkt miðlægt torg fyrir framan sameigileg rými þar sem er veislusalur/kaffihús/vinnurými, sameiginlegt þvottahús og pósthús/búr fyrir aðsendan póst og vörur. Við torgið er leiksvæði fyrir yngri börn en sparkvöllur og götuboltasvæði er í garði á móti sjó. Á torginu er einnig hjóla- og vagnageymsla. Handan götunnar eru matjurtagarðarfyrir íbúa og sérstök deilibílastæði. Matjurtagarðarnir verða til afnota fyrir íbúa til ræktunar fyrir þá sem það kjósa. Þar verður heimilt að gera vermireiti og gróðurskýli og er garðurinn ýmisst 20 fm. eða 40 fm.
Deiliskipulag fyrir Gufunes, nýjasta hverfi Reykjavíkur, byggir á verðlaunatillögu hollensku arkitektastofunnar jvantspijker + Felixx sem árið 2016 hreppti fyrstu verðlaun í hugmyndasamkeppni um Gufunessvæðið. Í vinningstillögunni segir að Gufunes eigi að verða eins konar ventill fyrir ungt fólk sem kýs grósku og borgarbrag í stað úthverfa. Tillagan nýtir óhefluð umhverfisgæði og staðaranda sem grunn að samfélagi þar sem tækifæri, hagkvæmni og upplifun verða í forgrunni. Leiðarljós og markmið uppbyggingar nýs hverfis í Gufunesi eru:
Í Gufunesi verður blönduð byggð fyrir íbúðir, smærri atvinnurekstur, skapandi iðnað, menningu, menntun, sýningar- og atburði, ferðamannaiðnað og sjálfbærar samgöngur. Gufunesið verður þannig einstakt hverfi í borginni þar sem iðnaðarmannvirki, manngert landslag, afþreying- og útivist og stórfengleg fjallasýn við sjávarsíðu mynda órjúfanlega heild.
Gjöld sem kaupandi þarf að standa straum af vegna kaupanna:
1. Stimpilgjald af kaupsamningi - 0.8% af heildarfasteignamati / 1.6% fyrir lögaðila. (0.4% við fyrstu kaup einstaklinga).
2. Þinglýsingagjald af kaupsamningi, veðskuldabréfi, veðleyfi o.fl.- kr. 2.700 af hverju skjali.
3. Lántökugjald lánastofnunar - samanber gjaldskrá viðkomandi lánastofnunar.
4. Umsýsluþóknun til fasteignasölu, sbr.kauptilboð.
Um skoðunarskyldu:
Í lögum um fasteignakaup nr. 40/2002 er kveðið á um ríka skoðunarskyldu kaupenda á fasteignum. Pálsson fasteignasala bendir væntanlegum kaupendum á að kynna sér vel ástand fasteigna við skoðun og fyrir tilboðsgerð og ef þurfa þykir að leita til sérfræðinga um nánari ástandsskoðun.
* Húsið var byggt 2022
* Frábær fyrstu kaup
* Kaupendur á aldrinum 18-40 ára eru í forgangi samkv. kvöð á eigninni.
Nánari upplýsingar veita:
Evert Guðmundsson Lgf. í síma 823-3022 eða evert@palssonfasteignasala.is
Páll Pálsson Lgf. í síma 775-4000 eða palli@palssonfasteignasala.is
www.eignavakt.is
www.verdmat.is
Góð ráð fyrir kaupendur / seljendur
Birt stærð eignar samkv. Fasteignaskrá Íslands er 64,30 m2 og fyrirhugað fasteignmat 2026 er 60.350.000 kr
Anddyri er flísalagt með skáp og fatahengi.
Eldhús, borðstofa og stofa eru í björtu alrými með parket á gólfi. Í eldhúsi er Innrétting með tengi fyrir uppþvottavél, bakarofn, helluborði og viftu.
Út frá stofu er útgengt út á svalir til suðurs.
Baðherbergi er með innréttingu með handlaug og skúffum, upphengdu wc, "walk-in" sturtu með hengi og tengi fyrir þvottavél og þurrkara. Flísar á gólfi og sturtu
Svefnherbergi 1 er með parket á gólfi og fataskáp.
Svefnherbergi 2 er með parket á gólfi og fataskáp.
Svefnherbergi 3 er með parket á gólfi og fataskáp.
Sameiginleg hjólageymsla og þvottahús er á jarðhæð.
Í sameign er einnig vinnuaðstaða/veislusalur sem íbúar geta leigt og pósthús.
Íbúðirnar hafa haft afnot af matjurtargarði sem Reykjavíkurborg lánar Jöfursbás 11.
Íbúðir Þorpsins vistfélags eru á sjávarlóð í nýju hverfi í Gufunesi. Frá lóðinni er glæsileg sjávarsýn og útsýni yfir Geldinganes og Viðey. Í hverfinu og meðfram lóðinni verða göngu- og hjólastígar meðfram ströndinni sem tengjast grónum íbúðasvæðum í Grafarvogi.
Íbúðarhúsin mynda garðrými fyrir skjólgott torg, leikvöll, boltavelli og grasfleti. Torgið verður við aðalinngang húsanna við sameiginleg rými íbúa. Leik- og dvalaraðstaða er norðan megin gegnt ströndinni þar sem gert er ráð fyrir sparkvelli og götuboltasvæði. Tekið er tillit til sólarátta og byggð skipulögð þannig að garðrýmin eru í góðu skjóli fyrir veðri og vindum. Við innganginn er sólríkt miðlægt torg fyrir framan sameigileg rými þar sem er veislusalur/kaffihús/vinnurými, sameiginlegt þvottahús og pósthús/búr fyrir aðsendan póst og vörur. Við torgið er leiksvæði fyrir yngri börn en sparkvöllur og götuboltasvæði er í garði á móti sjó. Á torginu er einnig hjóla- og vagnageymsla. Handan götunnar eru matjurtagarðarfyrir íbúa og sérstök deilibílastæði. Matjurtagarðarnir verða til afnota fyrir íbúa til ræktunar fyrir þá sem það kjósa. Þar verður heimilt að gera vermireiti og gróðurskýli og er garðurinn ýmisst 20 fm. eða 40 fm.
Deiliskipulag fyrir Gufunes, nýjasta hverfi Reykjavíkur, byggir á verðlaunatillögu hollensku arkitektastofunnar jvantspijker + Felixx sem árið 2016 hreppti fyrstu verðlaun í hugmyndasamkeppni um Gufunessvæðið. Í vinningstillögunni segir að Gufunes eigi að verða eins konar ventill fyrir ungt fólk sem kýs grósku og borgarbrag í stað úthverfa. Tillagan nýtir óhefluð umhverfisgæði og staðaranda sem grunn að samfélagi þar sem tækifæri, hagkvæmni og upplifun verða í forgrunni. Leiðarljós og markmið uppbyggingar nýs hverfis í Gufunesi eru:
Í Gufunesi verður blönduð byggð fyrir íbúðir, smærri atvinnurekstur, skapandi iðnað, menningu, menntun, sýningar- og atburði, ferðamannaiðnað og sjálfbærar samgöngur. Gufunesið verður þannig einstakt hverfi í borginni þar sem iðnaðarmannvirki, manngert landslag, afþreying- og útivist og stórfengleg fjallasýn við sjávarsíðu mynda órjúfanlega heild.
Gjöld sem kaupandi þarf að standa straum af vegna kaupanna:
1. Stimpilgjald af kaupsamningi - 0.8% af heildarfasteignamati / 1.6% fyrir lögaðila. (0.4% við fyrstu kaup einstaklinga).
2. Þinglýsingagjald af kaupsamningi, veðskuldabréfi, veðleyfi o.fl.- kr. 2.700 af hverju skjali.
3. Lántökugjald lánastofnunar - samanber gjaldskrá viðkomandi lánastofnunar.
4. Umsýsluþóknun til fasteignasölu, sbr.kauptilboð.
Um skoðunarskyldu:
Í lögum um fasteignakaup nr. 40/2002 er kveðið á um ríka skoðunarskyldu kaupenda á fasteignum. Pálsson fasteignasala bendir væntanlegum kaupendum á að kynna sér vel ástand fasteigna við skoðun og fyrir tilboðsgerð og ef þurfa þykir að leita til sérfræðinga um nánari ástandsskoðun.
Ár
Fasteignamat
Kaupverð
Stærð
Fermetraverð
28. maí. 2022
18.350.000 kr.
41.056.000 kr.
64.3 m²
638.507 kr.
Byggt á upplýsingum úr Þjóðskrá Íslands frá 2006-2025