Löggiltir fasteignasalar innan Félags fasteignasala:
Hannes Steindórsson
Bogi Molby Pétursson
Guðrún Antonsdóttir
Heimir Hallgrímsson
Hrafnkell P. H. Pálmason
Viðar Marinósson
Elías Haraldsson
Kristján Þórir Hauksson
Albert Bjarni Úlfarsson
Ragnar Þorsteinsson
Þórey Ólafsdóttir
Andri Freyr Halldórsson
Upplýsingar
Verðsaga
Byggt 2014
138,6 m²
5 herb.
1 baðherb.
4 svefnh.
Þvottahús
Sérinngangur
Lýsing
LIND fasteignasala og Helga Pálsdóttir löggiltur fasteignasali kynnir 4-5 herbergja 138,6 m2 íbúð við Austurkór 96, glæsileg útsýnis íbúð á þriðju (efstu) hæð í snyrtilegu fjölbýlishúsi með sér inngangi af sameiginlegum opnum stigagangi. Stórar svalir með glæsilegu útsýni yfir gólfvöllinn, Snæfellsnesið og Esjuna og víðar.
Nánari lýsing.
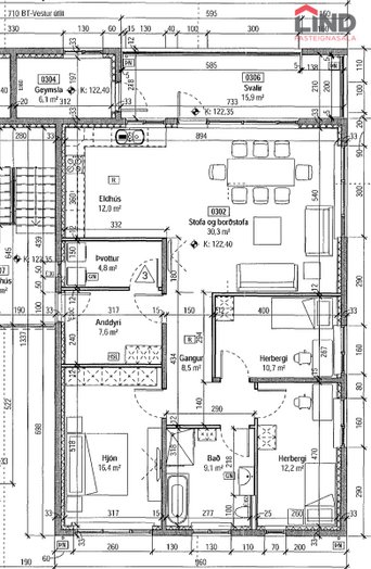
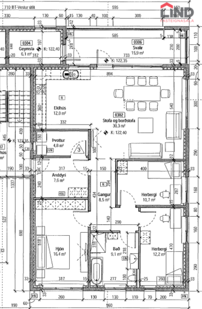
Flísalögð forstofa með fataskáp með rennihurðum, flísalagt gólf.
Þvottahús/geymsla með flísalögðu gólfi , tengi fyrir þvottavél og þurrkara, þvottasnúrur og hillur.
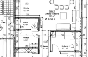
Eldhúsið er afar rúmgott með góðu vinnuplássi og fallegri nýlegri HTH innréttingu, innbyggður ísskápur með frysti ásamt innbyggðri uppþvottavél, stór tækjaskápur, stór eyja sem hægt er að sitja við, span helluborð, parket á gólfi,
Stofa/borðstofa með parketi á gólfi og útgengt út á rúmgóðar svalir með einstöku útsýni, innaf svölunum er góð 6,1 m2 parketlagt herbergi ( geymsla ) með glugga og ofni.
Hjónaherbergi með góðum fataskápum með rennihurðum á heilum vegg með parketi á gólfi.
Tvö rúmgóð barnaherbergi með fataskápum og parketi á gólfi
Baðherbergið er mjög rúmgott með flísum á gólfi og veggjum, baðkari, walk in sturtu og fallegri innréttingu, upphengt salerni og handklæðaofn, hiti í gólfi.
Sameiginleg hjóla og vagnageymsla á jarðhæð.
Bílastæði merkt á lóð með rafhleðslustaur.
Falleg vel staðsett eign á þessum vinsæla stað í Kópavoginum. Allar upplýsingar um eignina veitir Helga Pálsdóttir löggiltur fasteignasali í síma 822 2123 eða helga@fastlind.is
Nánari lýsing.
Flísalögð forstofa með fataskáp með rennihurðum, flísalagt gólf.
Þvottahús/geymsla með flísalögðu gólfi , tengi fyrir þvottavél og þurrkara, þvottasnúrur og hillur.
Eldhúsið er afar rúmgott með góðu vinnuplássi og fallegri nýlegri HTH innréttingu, innbyggður ísskápur með frysti ásamt innbyggðri uppþvottavél, stór tækjaskápur, stór eyja sem hægt er að sitja við, span helluborð, parket á gólfi,
Stofa/borðstofa með parketi á gólfi og útgengt út á rúmgóðar svalir með einstöku útsýni, innaf svölunum er góð 6,1 m2 parketlagt herbergi ( geymsla ) með glugga og ofni.
Hjónaherbergi með góðum fataskápum með rennihurðum á heilum vegg með parketi á gólfi.
Tvö rúmgóð barnaherbergi með fataskápum og parketi á gólfi
Baðherbergið er mjög rúmgott með flísum á gólfi og veggjum, baðkari, walk in sturtu og fallegri innréttingu, upphengt salerni og handklæðaofn, hiti í gólfi.
Sameiginleg hjóla og vagnageymsla á jarðhæð.
Bílastæði merkt á lóð með rafhleðslustaur.
Falleg vel staðsett eign á þessum vinsæla stað í Kópavoginum. Allar upplýsingar um eignina veitir Helga Pálsdóttir löggiltur fasteignasali í síma 822 2123 eða helga@fastlind.is
Ár
Fasteignamat
Kaupverð
Stærð
Fermetraverð
19. okt. 2023
78.100.000 kr.
94.500.000 kr.
138.6 m²
681.818 kr.
10. sep. 2014
15.450.000 kr.
41.700.000 kr.
138.6 m²
300.866 kr.
Byggt á upplýsingum úr Þjóðskrá Íslands frá 2006-2025